← Back to Burnley Borough Council

Status

Unknown Change of use
Received
30 Jun 2025
New dwellings
1

Summary

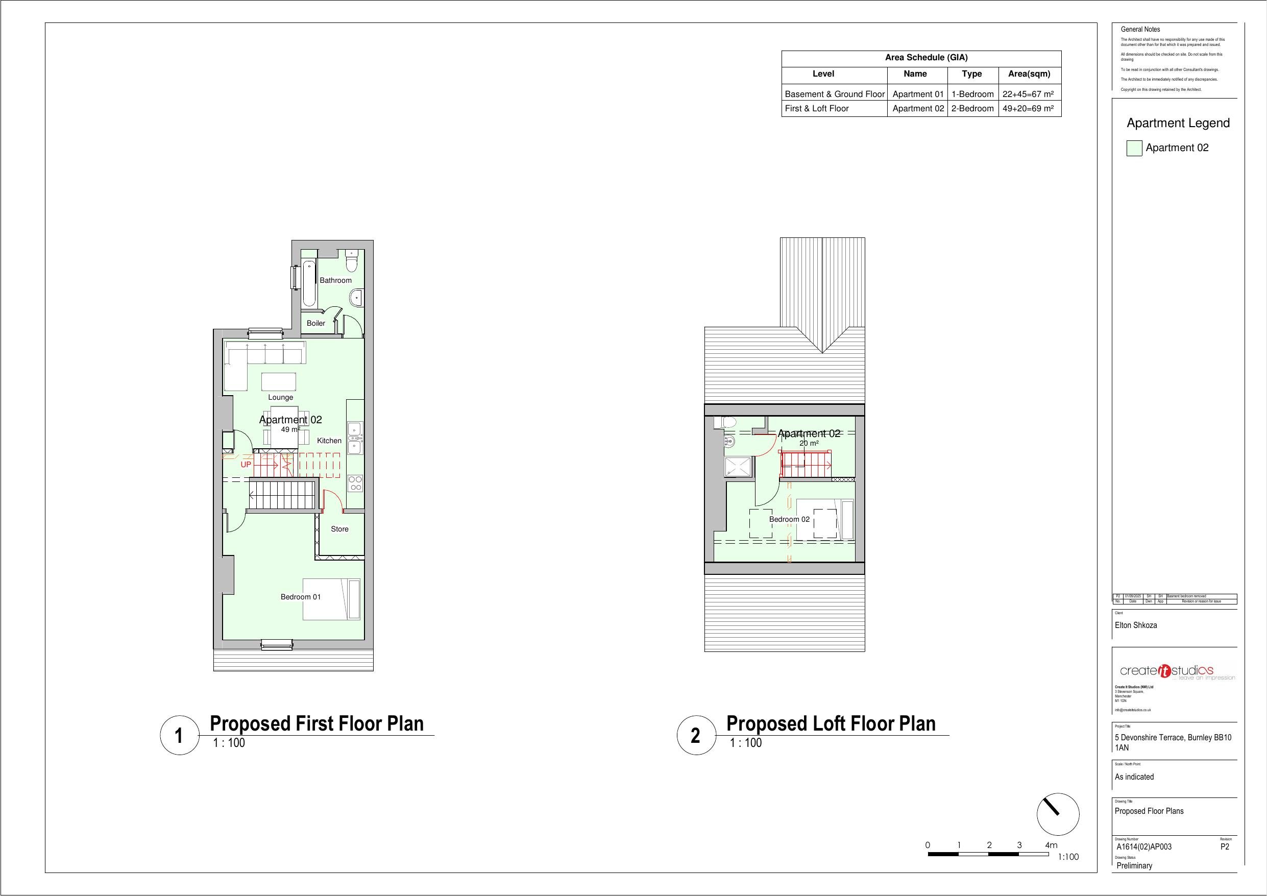
Conversion of single house into two self-contained apartments.

Full Proposal

Conversion of a single house into 2 self-contained apartments.

Documents

AMENDED PLAN CONSULTEE LETTER
Consultation
Not archived · Council Link
APPLICATION FORM
Application Form
Not archived · Council Link
CANAL & RIVER TRUST RESPONSE
Consultee Comment
Not archived · Council Link
CONSULTATION LIST
Other
Not archived · Council Link
CONSULTATION OTHER SERVICE UNITS
Consultation
Not archived · Council Link
CRTR RESPONSE
Other
Not archived · Council Link
DECISION NOTICE
Planning Decision
Not archived · Council Link
DESIGN AND ACCESS STATEMENT
Report
Not archived · Council Link
ENVIRONMENTAL HEALTH RESPONSE
Consultee Comment
Not archived · Council Link
EXISTING ELEVATIONS
Drawing
Not archived · Council Link
EXISTING FLOOR PLAN
Drawing
Not archived · Council Link
EXISTING FLOOR PLAN
Drawing
Not archived · Council Link
HIGHWAYS RESPONSE
Consultee Comment
Not archived · Council Link
LOCATION PLAN
Drawing
Not archived · Council Link
NEIGHBOUR CONSULTATION
Consultation
Not archived · Council Link
OFFICER REPORT
Officer Report
Not archived · Council Link
PROPOSED ELEVATIONS
Drawing
Not archived · Council Link
PROPOSED FLOOR PLAN
Amended Drawing
Not archived · Council Link
Amended Drawing
Archived · Council Link
Amended Drawing
Archived · Council Link
Amended Drawing
Archived · Council Link
Drawing
Archived · Council Link
SITE AREA SECTION
Drawing
Not archived · Council Link
STANDARD ACKNOWLEDGEMENT
Correspondence
Not archived · Council Link
STANDARD CONSULTATION
Consultation
Not archived · Council Link
STANDARD CONSULTATION
Consultation
Not archived · Council Link
STANDARD CONSULTATION
Consultation
Not archived · Council Link
SUPERSEDED APPLICATION FORM
Application Form
Not archived · Council Link
WARD COUNCILLOR CONSULTATION
Consultation
Not archived · Council Link

Take Action

Make your voice heard. Authorities need to hear from people who support new homes.

✉️ Write Email in Support View on Council Portal