← Back to Caerphilly County Borough Council

Status

Awaiting decision Change of use
Received
19 Nov 2025
New dwellings
1

Full Proposal

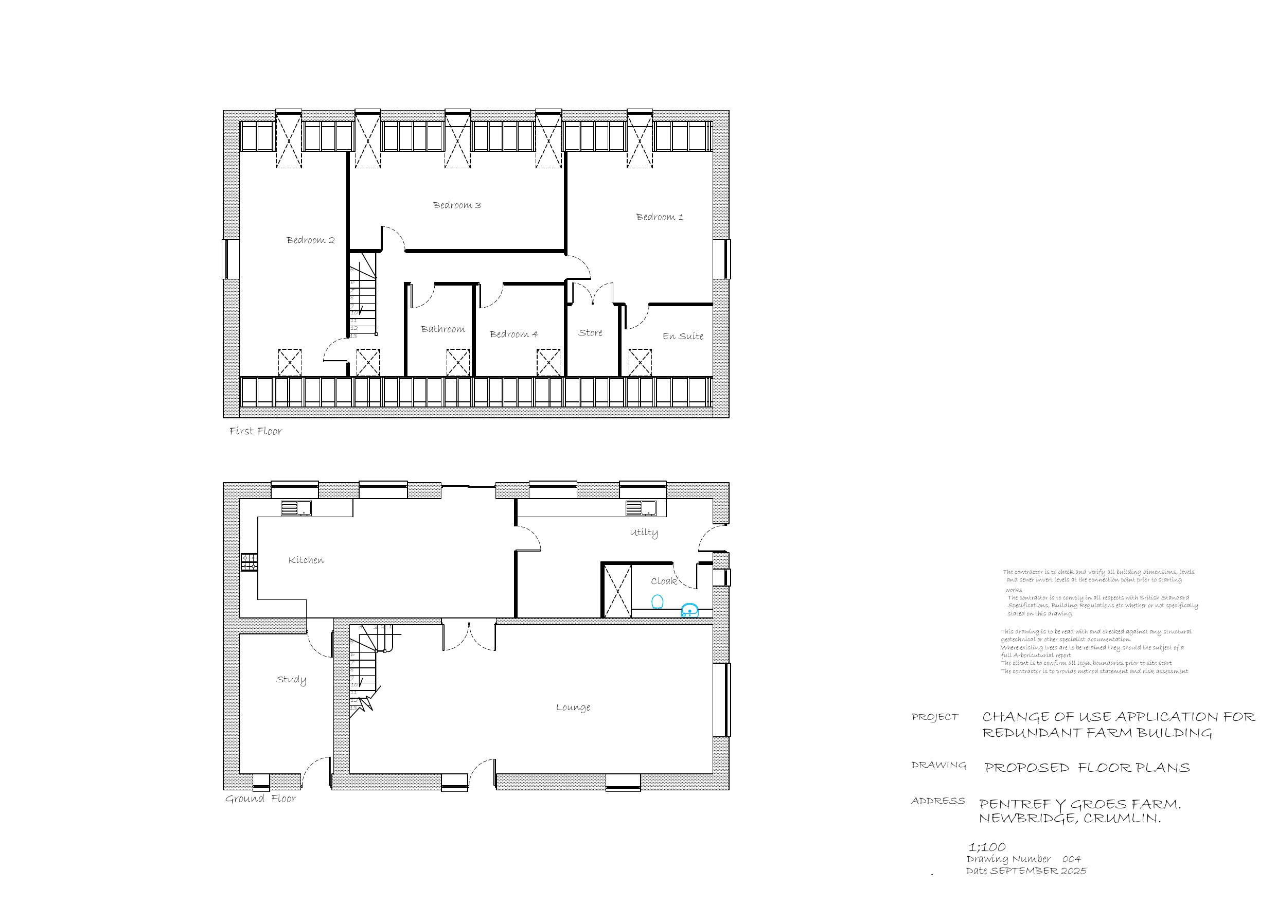
Change the use of existing redundant farm building to a dwelling house

Documents

APPLICATION FORM
Application Form
Not archived · Council Link
ECOLOGY COMMENTS
Consultee Comment
Not archived · Council Link
ENVIRONMENTAL HEALTH MANAGER COMMENTS
Consultee Comment
Not archived · Council Link
EXISTING ELEVATIONS
Drawing
Not archived · Council Link
EXISTING FLOOR PLANS
Drawing
Not archived · Council Link
GREEN INFRASTRUCTURE STATEMENT
Report
Not archived · Council Link
PROJECT DESIGN STATEMENT
Correspondence
Not archived · Council Link
PROPOSED ELEVATIONS
OS Extract
Not archived · Council Link
OS Extract
Archived · Council Link
SITE NOTICE
Site Notice
Not archived · Council Link

Take Action

Make your voice heard. Authorities need to hear from people who support new homes.

✉️ Write Email in Support View on Council Portal