← Back to Cambridge City & South Cambridgeshire

Status

Awaiting decision New housing
Received
09 Sep 2024
New dwellings
4

Full Proposal

Erection of 4no self-build dwellinghouses (Plots 3, 4, 5 and 6).

Documents

ACKNOWLEDGEMENT LETTER
Application Officer Correspondence
Not archived · Council Link
APPLICATION FORM - NO PERSONAL INFO
Application Information
Not archived · Council Link
ATTACHMENT SUMMARY FROM PORTAL
Attachment Summary
Not archived · Council Link
BIODIVERSITY MANAGEMENT PLAN
Application Information
Not archived · Council Link
BLOCK PLAN
Drawings
Not archived · Council Link
CERTIFICATE B
Application Information
Not archived · Council Link
COND5 ARCHAEOLOGICAL EVALUATION
Application Information
Not archived · Council Link
COND5 DECISION NOTICE
Application Information
Not archived · Council Link
COND6 DECISION NOTICE
Application Information
Not archived · Council Link
COND7 DECISION NOTICE
Application Information
Not archived · Council Link
COND7 DRAINAGE CALCULATIONS
Application Information
Not archived · Council Link
COND7 GEOTECHNICAL SITE INVESTIGATION REPORT
Application Information
Not archived · Council Link
COND7 PROPOSED DRAINAGE
Drawings
Not archived · Council Link
CONDD DECISION NOTICE
Application Information
Not archived · Council Link
CONDD FOUL DRAINAGE DESIGN
Drawings
Not archived · Council Link
DESIGN AND ACCESS STATEMENT
Design and Access Statement
Not archived · Council Link
ECOLOGY
Consultee Comments
Not archived · Council Link
ENVIRONMENTAL HEALTH
Consultee Comments
Not archived · Council Link
EOT REQUEST
Extension of Time Request
Not archived · Council Link
FEE CALCULATION
Application Information
Not archived · Council Link
INVALID CHASE
Application Information
Not archived · Council Link
INVALID LETTER
Application Information
Not archived · Council Link
LOCAL HIGHWAY AUTHORITY
Consultee Comments
Not archived · Council Link
LOCATION PLAN
Drawings
Not archived · Council Link
MAP OF NOTIFIED NEIGHBOURS
Neighbour/Consultee Notification List
Not archived · Council Link
OL DECISION NOTICE
Application Information
Not archived · Council Link
OL DECISION NOTICE
Application Information
Not archived · Council Link
OL SECTION 106 AGREEMENT
Application Information
Not archived · Council Link
PARISH
Consultee Comments
Not archived · Council Link
PARISH - DRY DRAYTON
Consultee Comments
Not archived · Council Link
PLOT 3 - PROPOSED ELEVATIONS
Drawings
Not archived · Council Link
PLOT 3 - PROPOSED FLOOR PLAN
Drawings
Not archived · Council Link
PLOT 3 - PROPOSED SITE LAYOUT
Drawings
Not archived · Council Link
PLOT 3 DECISION NOTICE
Application Information
Not archived · Council Link
PLOT 3 ELEVATIONS AS PROPOSED
Drawings
Not archived · Council Link
PLOT 3 GARDEN PLAN WITH FENCING
Drawings
Not archived · Council Link
PLOT 3 LANDSCAPE SPECIFICATION
Application Information
Not archived · Council Link
PLOT 3 NMA1 DECISION NOTICE
Application Information
Not archived · Council Link
PLOT 3 PLAN DETAIL
Drawings
Not archived · Council Link
PLOT 3 PLAN DETAIL
Drawings
Not archived · Council Link
PLOT 3 PLANT LIST
Application Information
Not archived · Council Link
PLOT 3 PROPOSED ELEVATIONS
Drawings
Not archived · Council Link
PLOT 3 REM DECISION NOTICE
Application Information
Not archived · Council Link
PLOT 3 S73 DECISION NOTICE
Application Information
Not archived · Council Link
PLOT 3 SITE AND LOCATION PLAN
Drawings
Not archived · Council Link
PLOT 4 CONDC DECISION NOTICE
Application Information
Not archived · Council Link
PLOT 4 CONDC PLAN AS PROPOSED
Drawings
Not archived · Council Link
PLOT 4 CONDC PRODUCT DATA SHEET
Application Information
Not archived · Council Link
PLOT 4 NMA1 DECISION NOTICE
Application Information
Not archived · Council Link
PLOT 4 NMA1 PROPOSED ELEVATIONS
Drawings
Not archived · Council Link
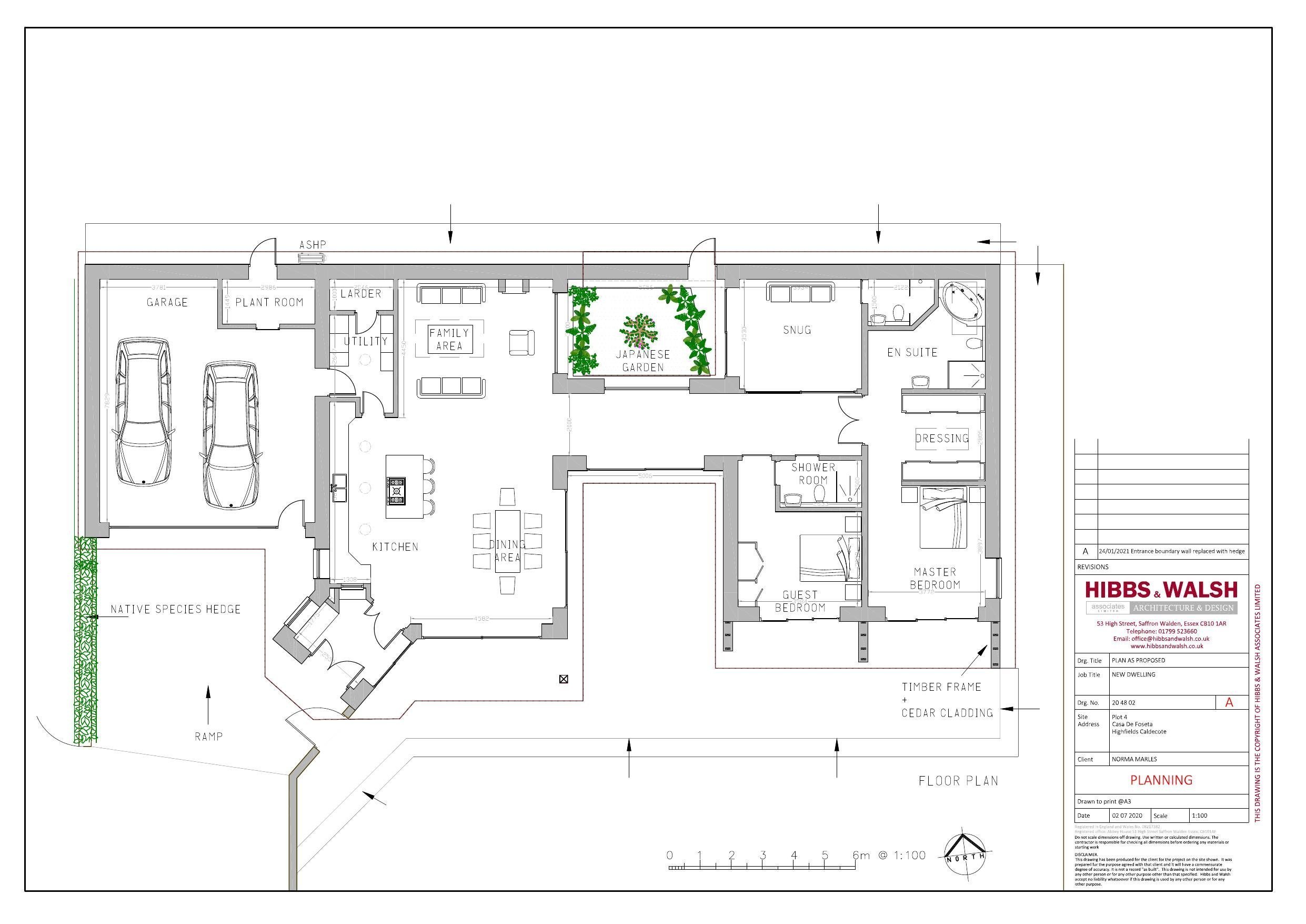
PLOT 4 PLAN AS PROPOSED
Drawings
Not archived · Council Link
PLOT 4 PROPOSED ELEVATIONS
Drawings
Not archived · Council Link
PLOT 4 PROPOSED ELEVATIONS
Drawings
Not archived · Council Link
PLOT 4 PROPOSED FLOOR PLAN
Drawings
Not archived · Council Link
PLOT 4 PROPOSED ROOF PLAN
Drawings
Not archived · Council Link
PLOT 4 RM DECISION NOTICE
Application Information
Not archived · Council Link
PLOT 4 S73 DECISION NOTICE
Application Information
Not archived · Council Link
PLOT 4 SITE AND LOCATION PLAN
Drawings
Not archived · Council Link
PLOT 5 COND2 BOUNDARY ELEVATIONS
Drawings
Not archived · Council Link
PLOT 5 COND2 DECISION NOTICE
Application Information
Not archived · Council Link
PLOT 5 COND2 LANDSCAPE DETAILS
Drawings
Not archived · Council Link
PLOT 5 CONDD SEWAGE TREATMENT PLANT SERVING
Application Information
Not archived · Council Link
PLOT 5 PROPOSED SITE LAYOUT
Drawings
Not archived · Council Link
PLOT 5 RM BLOCK PLAN
Drawings
Not archived · Council Link
PLOT 5 RM DECISION NOTICE
Application Information
Not archived · Council Link
PLOT 5 RM PROPOSED ELEVATIONS
Drawings
Not archived · Council Link
PLOT 5 RM PROPOSED FLOOR PLAN
Drawings
Not archived · Council Link
PLOT 5 RM PROPOSED ROOF PLAN
Drawings
Not archived · Council Link
PLOT 6 DC DECISION LETTER
Application Information
Not archived · Council Link
PLOT 6 HARD LANDSCAPING PROPOSAL
Drawings
Not archived · Council Link
PLOT 6 RM DECISION NOTICE
Application Information
Not archived · Council Link
PLOT 6 RM PROPOSED ELEVATIONS
Drawings
Not archived · Council Link
PLOT 6 SOFT LANDSCAPING PROPOSALS
Drawings
Not archived · Council Link
PROPOSED SITE PLAN
Drawings
Not archived · Council Link
REVISED LOCATION PLAN
Drawings
Not archived · Council Link
SITE AND LOCATION PLAN
Drawings
Not archived · Council Link
SITE NOTICE
Application Press/Site Notices
Not archived · Council Link
SUSTAINABILITY
Consultee Comments
Not archived · Council Link
TREES
Consultee Comments
Not archived · Council Link

Take Action

Make your voice heard. Authorities need to hear from people who support new homes.

✉️ Write Email in Support View on Council Portal