← Back to Cambridge City & South Cambridgeshire

Status

Awaiting decision New housing
Received
04 Nov 2024
New dwellings
8

Full Proposal

Demolition and replacement of an existing commercial unit with 8 new dwellings and new office premises.

Documents

15 CHERRY ORCHARD
Third Party Comments
Not archived · Council Link
2 RUSHDEN CLOSE
Third Party Comments
Not archived · Council Link
2 RUSHDEN CLOSE
Third Party Comments
Not archived · Council Link
28 GEOFFREY BISHOP AVENUE
Third Party Comments
Not archived · Council Link
6 HOME END
Third Party Comments
Not archived · Council Link
8 RUSHDEN CLOSE
Third Party Comments
Not archived · Council Link
ACKNOWLEDGEMENT LETTER
Application Officer Correspondence
Not archived · Council Link
ANGLIAN WATER
Consultee Comments
Not archived · Council Link
ANGLIAN WATER
Consultee Comments
Not archived · Council Link
APPLICATION FORM - NO PERSONAL INFO
Application Information
Not archived · Council Link
ARCHAEOLOGY
Consultee Comments
Not archived · Council Link
ARCHAEOLOGY COMMENTS
Consultee Comments
Not archived · Council Link
ATTACHMENT SUMMARY FROM PORTAL
Application Information
Not archived · Council Link
ATTIC FLOOR PLAN SURVEY
Drawings
Not archived · Council Link
BIODIVERSITY METRIC
Application Information
Not archived · Council Link
BNE - CONSERVATION
Consultee Comments
Not archived · Council Link
BNE - CONSERVATION
Consultee Comments
Not archived · Council Link
BNE LANDSCAPE
Consultee Comments
Not archived · Council Link
CAMBRIDGESHIRE AND PETERBOROUGH INTEGRATED CARE
Consultee Comments
Not archived · Council Link
CAMBRIDGESHIRE AND PETERBOROUGH INTEGRATED CARE
Consultee Comments
Not archived · Council Link
CONTAMINATED LAND
Consultee Comments
Not archived · Council Link
COVER LETTER
Application Information
Not archived · Council Link
COVERING EMAIL AMENDED
Application Information
Not archived · Council Link
DESIGN AND ACCESS STATEMENT AMENDED
Application Information
Not archived · Council Link
DESIGN, ACCESS AND HERITAGE STATEMENT
Design and Access Statement
Not archived · Council Link
DESIGNING OUT CRIME TEAM
Consultee Comments
Not archived · Council Link
DRAINAGE
Consultee Comments
Not archived · Council Link
EAST AND WEST ELEVATION SURVEY
Drawings
Not archived · Council Link
ECOLOGY
Consultee Comments
Not archived · Council Link
ECOLOGY
Consultee Comments
Not archived · Council Link
ECOLOGY RESPONSE AMENDED
Application Information
Not archived · Council Link
ENVIRONMENTAL HEALTH
Consultee Comments
Not archived · Council Link
ENVIRONMENTAL HEALTH
Consultee Comments
Not archived · Council Link
ENVIRONMENTAL HEALTH
Consultee Comments
Not archived · Council Link
EOT REQUEST
Extension of Time Request
Not archived · Council Link
EOT REQUEST
Extension of Time Request
Not archived · Council Link
EOT REQUEST
Extension of Time Request
Not archived · Council Link
EOT REQUEST
Extension of Time Request
Not archived · Council Link
EOT REQUEST
Extension of Time Request
Not archived · Council Link
EXISTING GROUND FLOOR PLAN
Drawings
Not archived · Council Link
FEE CALCULATION
Application Information
Not archived · Council Link
FILE COPY OF AMENDMENT LETTER
Application Officer Correspondence
Not archived · Council Link
FIRST FLOOR PLAN SURVEY
Drawings
Not archived · Council Link
FLOOD RISK ASSESSMENT
Application Survey / Assessment / Statement
Not archived · Council Link
FULBOURN FORUM COMMENTS
Third Party Comments
Not archived · Council Link
FULBOURN FORUM FOR COMMUNITY ACTION
Third Party Comments
Not archived · Council Link
FULBOURN PARISH
Consultee Comments
Not archived · Council Link
HOUSING STRATEGY
Consultee Comments
Not archived · Council Link
HOUSING STRATEGY
Consultee Comments
Not archived · Council Link
LANDSCAPE
Consultee Comments
Not archived · Council Link
LANDSCAPE COMMENTS
Consultee Comments
Not archived · Council Link
LOCAL HIGHWAY AUTHORITY
Consultee Comments
Not archived · Council Link
LOCAL HIGHWAY AUTHORITY
Consultee Comments
Not archived · Council Link
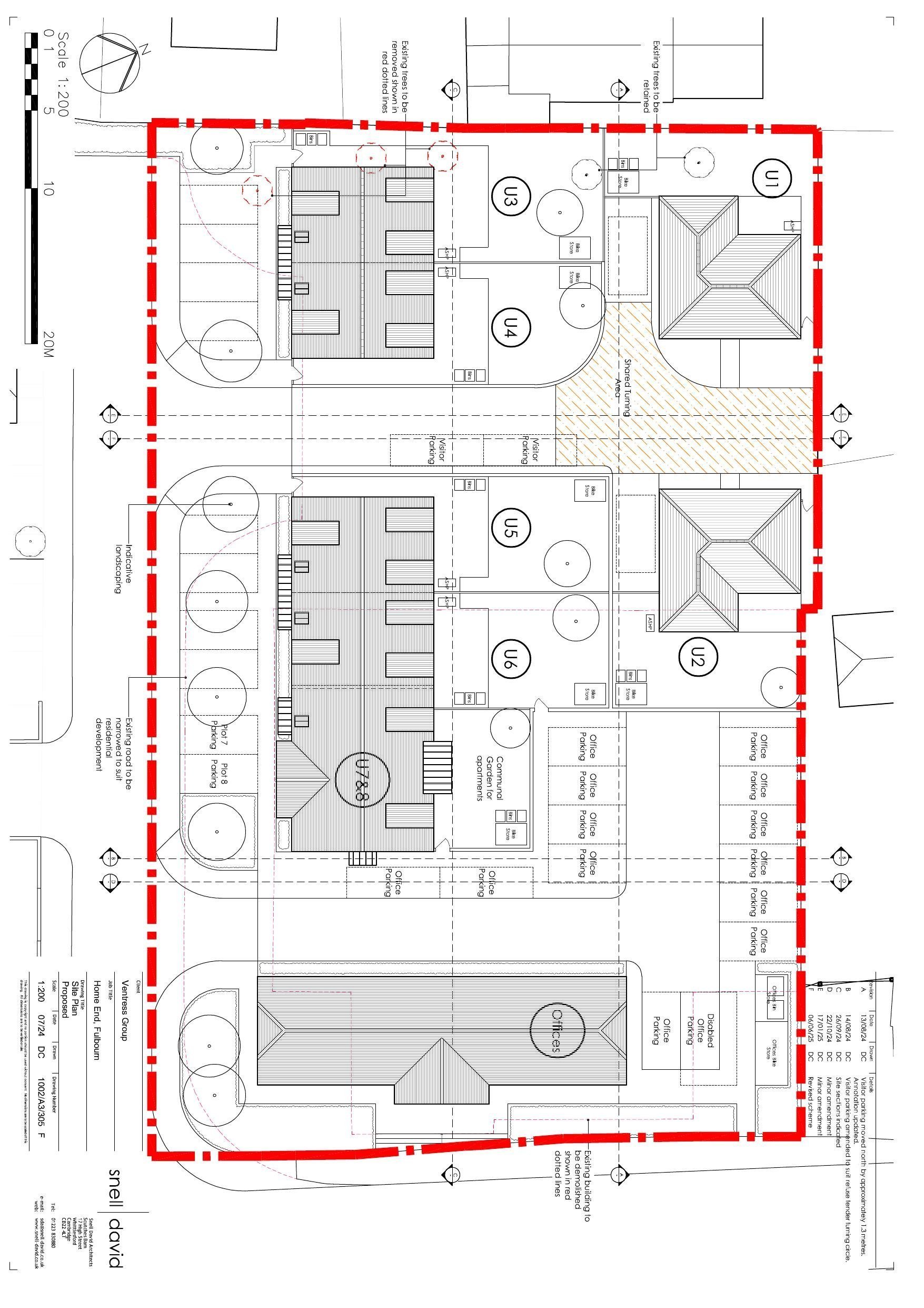
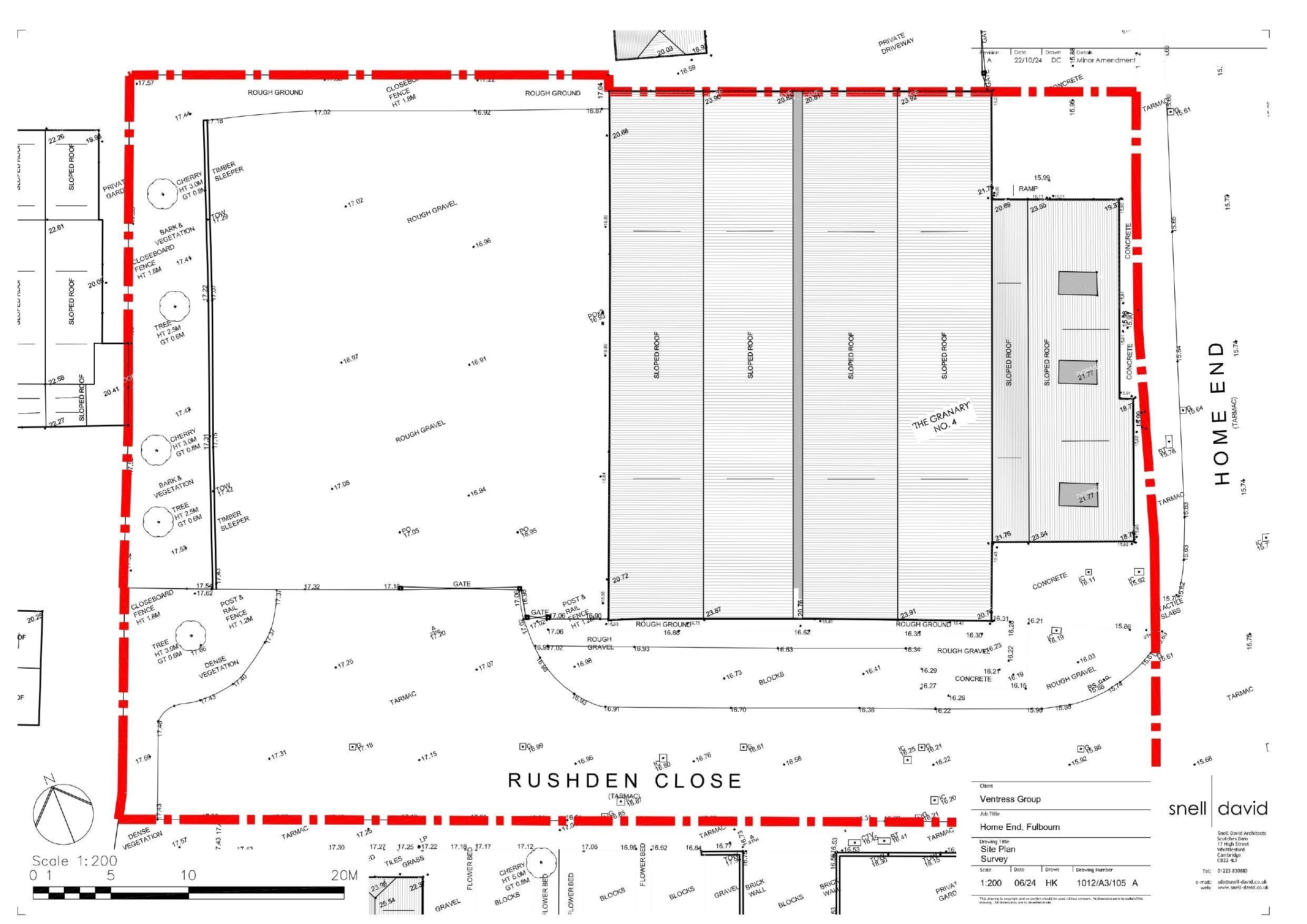
LOCATION PLAN
Drawings
Not archived · Council Link
MAP OF NOTIFIED NEIGHBOURS
Neighbour/Consultee Notification List
Not archived · Council Link
MEMO REGARDING CONTAMINATED LAND
Application Information
Not archived · Council Link
NATURAL ENGLAND
Consultee Comments
Not archived · Council Link
NATURAL ENGLAND
Consultee Comments
Not archived · Council Link
NATURAL ENGLAND
Consultee Comments
Not archived · Council Link
NHS CAMBRIDGESHIRE & PETERBOROUGH INTEGRATED CARE SYSTEM
Consultee Comments
Not archived · Council Link
NORTH AND SOUTH ELEVATION SURVEY
Drawings
Not archived · Council Link
OFFICE ELEVATIONS AMENDED
Drawings
Not archived · Council Link
OFFICES FLOOR PLANS AMENDED
Drawings
Not archived · Council Link
PARISH
Consultee Comments
Not archived · Council Link
PLANNING STATEMENT
Application Information
Not archived · Council Link
PLOTS 7, 8 AND 9 OFFICES ROOF PLAN PROPOSED
Drawings
Not archived · Council Link
POLICE ARCHITECTURAL LIAISON OFFICER
Consultee Comments
Not archived · Council Link
PRELIMINARY ECOLOGICAL APPRAISAL
Application Information
Not archived · Council Link
PRELIMINARY ECOLOGICAL APPRAISAL AND BNG PLAN AMENDED
Application Information
Not archived · Council Link
REVISED INFORMATION COVER LETTER 14.07.25 AMENDED
Application Information
Not archived · Council Link
SITE INVESTIGATION REPORT PAGE 1-50
Application Information
Not archived · Council Link
SITE INVESTIGATION REPORT PAGE 51-100
Application Information
Not archived · Council Link
SITE NOTICE
Application Press/Site Notices
Not archived · Council Link
SITE NOTICE
Application Press/Site Notices
Not archived · Council Link
Drawings
Archived · Council Link
Drawings
Archived · Council Link
SITE SECTIONS AMENDED
Drawings
Not archived · Council Link
SITE SECTIONS AMENDED
Drawings
Not archived · Council Link
SITE SECTIONS AMENDED
Drawings
Not archived · Council Link
STATUTORY BIODIVERSITY METRIC CALCULATION AMENDED
Application Information
Not archived · Council Link
STATUTORY BIODIVERSITY METRIC CONDITION ASSESSMENT AMENDED
Application Information
Not archived · Council Link
STREET SCENE AMENDED
Drawings
Not archived · Council Link
STREET SCENES PROPOSED
Drawings
Not archived · Council Link
STREET SCENES PROPOSED
Drawings
Not archived · Council Link
STREET SCENES PROPOSED
Drawings
Not archived · Council Link
SUSTAINABILITY
Consultee Comments
Not archived · Council Link
SUSTAINABILITY
Consultee Comments
Not archived · Council Link
TRANSPORT STATEMENT AMENDED
Application Information
Not archived · Council Link
TRANSPORT STATEMENT PAGE 1-35
Application Survey / Assessment / Statement
Not archived · Council Link
TRANSPORT STATEMENT PAGE 36-62
Application Survey / Assessment / Statement
Not archived · Council Link
TREES
Consultee Comments
Not archived · Council Link
TREES
Consultee Comments
Not archived · Council Link
TREES
Consultee Comments
Not archived · Council Link
TREES
Consultee Comments
Not archived · Council Link
TREES
Consultee Comments
Not archived · Council Link
UNIT 1 ELEVATIONS AMENDED
Drawings
Not archived · Council Link
UNIT 1 ELEVATIONS PROPOSED
Drawings
Not archived · Council Link
UNIT 1 FLOOR PLANS AMENDED
Drawings
Not archived · Council Link
UNIT 1 FLOOR PLANS PROPOSED
Drawings
Not archived · Council Link
UNIT 2 ELEVATIONS AMENDED
Drawings
Not archived · Council Link
UNIT 2 ELEVATIONS PROPOSED
Drawings
Not archived · Council Link
UNIT 2 FLOOR PLANS AMENDED
Drawings
Not archived · Council Link
UNIT 2 FLOOR PLANS PROPOSED
Drawings
Not archived · Council Link
UNITS 3 & 4 ELEVATIONS AMENDED
Drawings
Not archived · Council Link
UNITS 3 & 4 FLOOR PLANS AMENDED
Drawings
Not archived · Council Link
UNITS 3, 4, 5 AND 6 ELEVATIONS PROPOSED
Drawings
Not archived · Council Link
UNITS 3, 4, 5 AND 6 FLOOR PLANS PROPOSED
Drawings
Not archived · Council Link
UNITS 5, 6, 7 & 8 ELEVATIONS AMENDED
Drawings
Not archived · Council Link
UNITS 5, 6, 7 & 8 FLOOR PLANS AMENDED
Drawings
Not archived · Council Link
UNITS 7, 8 AND 9 OFFICES ELEVATIONS PROPOSED
Drawings
Not archived · Council Link
UNITS 7, 8 AND 9 OFFICES ELEVATIONS PROPOSED
Drawings
Not archived · Council Link
UNITS 7, 8 AND 9 OFFICES FIRST FLOOR PLAN PROPOSED
Drawings
Not archived · Council Link
UNITS 7, 8 AND 9 OFFICES GROUND FLOOR PLAN PROPOSED
Drawings
Not archived · Council Link
URBAN DESIGN
Consultee Comments
Not archived · Council Link
URBAN DESIGN
Consultee Comments
Not archived · Council Link
WASTE - SHARED SERVICE
Consultee Comments
Not archived · Council Link
WASTE - SHARED SERVICE
Consultee Comments
Not archived · Council Link

Take Action

Make your voice heard. Authorities need to hear from people who support new homes.

✉️ Write Email in Support View on Council Portal