← Back to Cambridge City & South Cambridgeshire

Status

Awaiting decision Change of use
Received
02 Dec 2025
New dwellings
0

Full Proposal

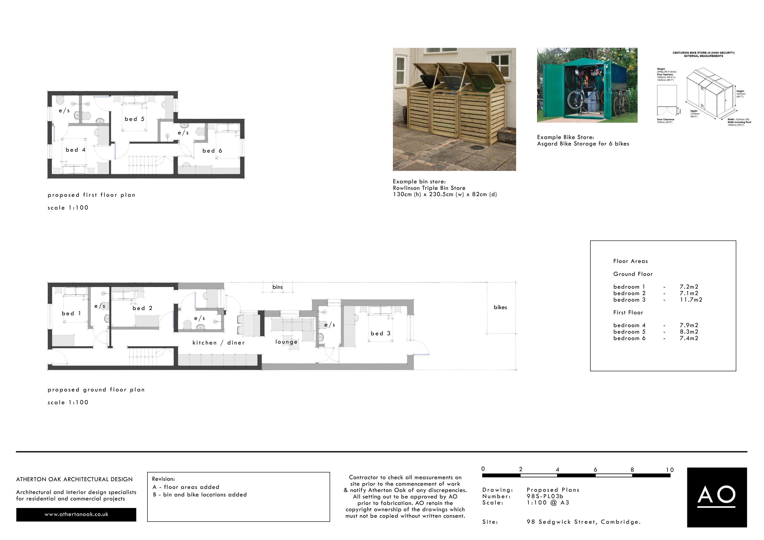
Change of use from residential to a 6 bed, 6 person HMO, together with a single storey rear extension and internal replan

Documents

ACKNOWLEDGEMENT LETTER
Application Officer Correspondence
Not archived · Council Link
APPLICATION FORM - NO PERSONAL INFO
Application Information
Not archived · Council Link
ATTACHMENT SUMMARY FROM PORTAL
Attachment Summary
Not archived · Council Link
CONSERVATION
Consultee Comments
Not archived · Council Link
DRAINAGE
Consultee Comments
Not archived · Council Link
ENVIRONMENTAL QUALITY AND GROWTH
Consultee Comments
Not archived · Council Link
EOT REQUEST
Extension of Time Request
Not archived · Council Link
EXISTING ELEVATIONS
Drawings
Not archived · Council Link
EXISTING PLANS
Drawings
Not archived · Council Link
FEE CALCULATION
Application Information
Not archived · Council Link
FLOOD RISK ASSESSMENT
Application Information
Not archived · Council Link
HERITAGE STATEMENT
Application Information
Not archived · Council Link
INVALID LETTER
Application Information
Not archived · Council Link
LOCAL HIGHWAY AUTHORITY
Consultee Comments
Not archived · Council Link
LOCATION AND PROPOSED BLOCK PLAN
Drawings
Not archived · Council Link
MAP OF NOTIFIED NEIGHBOURS
Neighbour/Consultee Notification List
Not archived · Council Link
PROPOSED ELEVATIONS
Drawings
Not archived · Council Link
Drawings
Archived · Council Link
Drawings
Archived · Council Link
SITE NOTICE
Application Press/Site Notices
Not archived · Council Link
WASTE - SHARED SERVICE
Consultee Comments
Not archived · Council Link

Take Action

Make your voice heard. Authorities need to hear from people who support new homes.

✉️ Write Email in Support View on Council Portal