← Back to Cambridge City & South Cambridgeshire

Status

Awaiting decision Change of use
Received
22 Dec 2025
New dwellings
1

Full Proposal

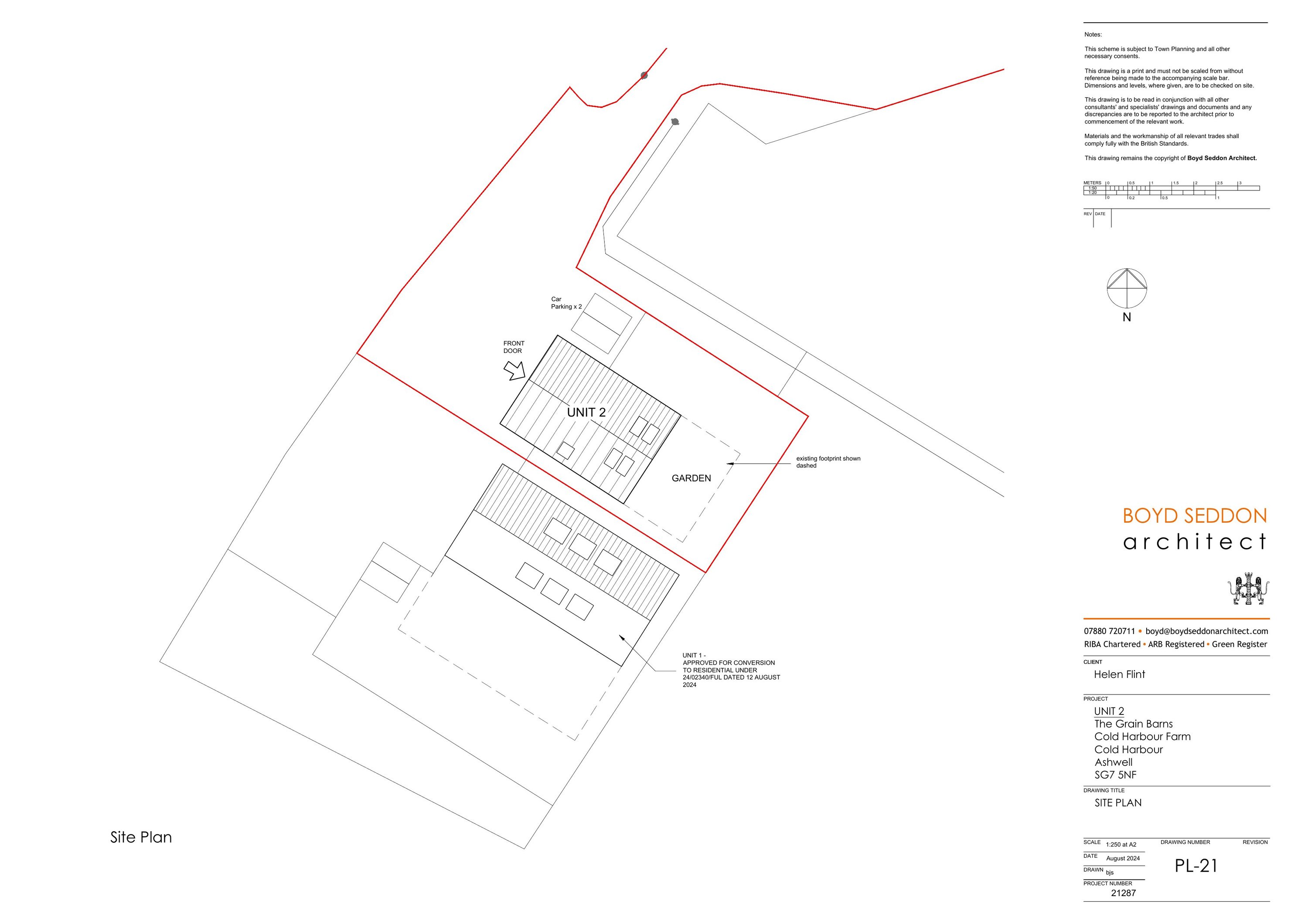
Conversion of barn to one dwelling with associated gardens and parking area.

Documents

ACKNOWLEDGEMENT LETTER
Application Officer Correspondence
Not archived · Council Link
APPLICATION FORM - NO PERSONAL INFO
Application Information
Not archived · Council Link
APPLICATION VALID
Application Officer Correspondence
Not archived · Council Link
ATTACHMENT SUMMARY FROM PORTAL
Attachment Summary
Not archived · Council Link
BAT ROOST ASSESSMENT
Application Survey / Assessment / Statement
Not archived · Council Link
BAT SURVEY REPORT
Application Survey / Assessment / Statement
Not archived · Council Link
CLIMATE, WASTE & ENVIRONMENT
Consultee Comments
Not archived · Council Link
CONTAMINATED LAND
Consultee Comments
Not archived · Council Link
DEFINITIVE MAP TEAM
Consultee Comments
Not archived · Council Link
DRAINAGE
Consultee Comments
Not archived · Council Link
ECOLOGY
Consultee Comments
Not archived · Council Link
EXISTING PLAN, ELEVATIONS AND SECTION
Drawings
Not archived · Council Link
FEE CALCULATION
Application Information
Not archived · Council Link
GROUND AND FIRST FLOOR PLANS
Drawings
Not archived · Council Link
LOCAL HIGHWAY AUTHORITY
Consultee Comments
Not archived · Council Link
MAP OF NOTIFIED NEIGHBOURS
Neighbour/Consultee Notification List
Not archived · Council Link
PARISH
Consultee Comments
Not archived · Council Link
PLANNING, DESIGN AND ACCESS STATEMENT
Application Survey / Assessment / Statement
Not archived · Council Link
PROPOSED ELEVATIONS
Drawings
Not archived · Council Link
PROPOSED SECTIONS
Drawings
Not archived · Council Link
RECEIPT
Application Officer Correspondence
Not archived · Council Link
Drawings
Archived · Council Link
SITE NOTICE
Application Press/Site Notices
Not archived · Council Link
SITE NOTICE
Application Press/Site Notices
Not archived · Council Link
Drawings
Archived · Council Link
WASTE - SHARED SERVICE
Consultee Comments
Not archived · Council Link
WASTE - SHARED SERVICE
Consultee Comments
Not archived · Council Link

Take Action

Make your voice heard. Authorities need to hear from people who support new homes.

✉️ Write Email in Support View on Council Portal