← Back to Cambridge City & South Cambridgeshire

Status

Awaiting decision Commercial
Received
Last month
New dwellings
0

Full Proposal

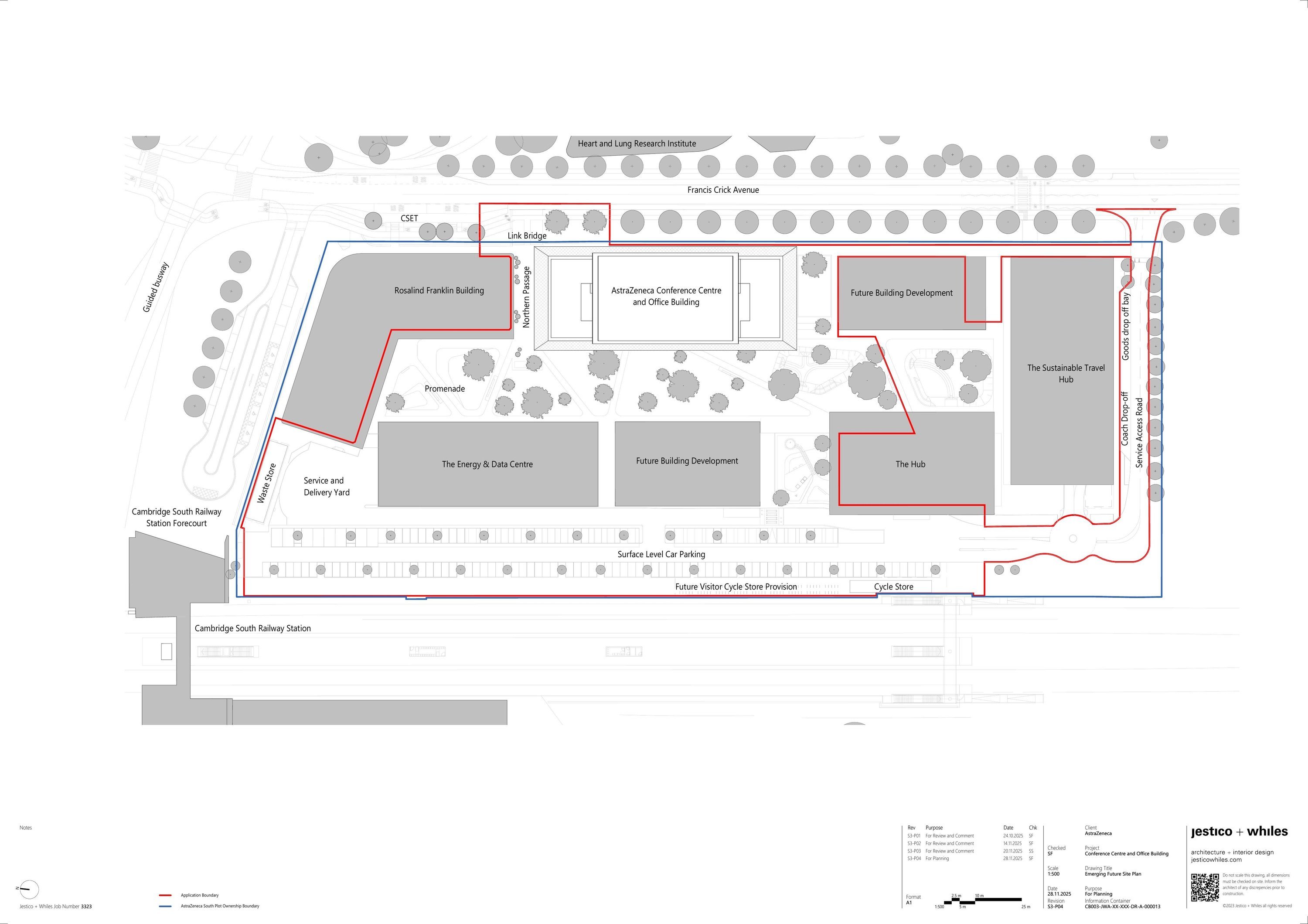
Demolition of existing structures and redevelopment for a Conference Centre (Use Class F1) and Office (Use Class E(g)(i)). Including hard and soft landscaping, servicing, access and associated infrastructure.

Documents

ACKNOWLEDGEMENT LETTER
Application Officer Correspondence
Not archived · Council Link
AIR QUALITY ASSESSMENT
Application Survey / Assessment / Statement
Not archived · Council Link
ANGLIAN WATER
Consultee Comments
Not archived · Council Link
APPLICATION FORM - NO PERSONAL INFO
Application Information
Not archived · Council Link
ARBORICULTURAL IMPACT ASSESSMENT
Application Survey / Assessment / Statement
Not archived · Council Link
ARCHAEOLOGY COMMENTS
Consultee Comments
Not archived · Council Link
ATTACHMENT SUMMARY FROM PORTAL
Attachment Summary
Not archived · Council Link
BIODIVERSITY NET GAIN ASSESSMENT
Application Survey / Assessment / Statement
Not archived · Council Link
BIODIVERSITY NET GAIN CALCULATIONS
Application Information
Not archived · Council Link
CAMBRIDGESHIRE CONSTABULARY
Consultee Comments
Not archived · Council Link
CONSULTEE COMMENT SUBMITTED ONLINE
Consultee Comments
Not archived · Council Link
COVER LETTER
Application Information
Not archived · Council Link
DESIGN AND ACCESS STATEMENT (PART 1 OF 3) PAGE 1-50
Design and Access Statement
Not archived · Council Link
DESIGN AND ACCESS STATEMENT (PART 1 OF 3) PAGE 51-63
Design and Access Statement
Not archived · Council Link
DESIGN AND ACCESS STATEMENT (PART 2 OF 3)
Design and Access Statement
Not archived · Council Link
DESIGN AND ACCESS STATEMENT (PART 3 OF 3)
Design and Access Statement
Not archived · Council Link
ECOLOGY
Consultee Comments
Not archived · Council Link
ENERGY STATEMENT (1 OF 3)
Application Survey / Assessment / Statement
Not archived · Council Link
ENERGY STATEMENT (2 OF 3)
Application Survey / Assessment / Statement
Not archived · Council Link
ENERGY STATEMENT (3 OF 3)
Application Survey / Assessment / Statement
Not archived · Council Link
Drawings
Archived · Council Link
FEE CALCULATION
Application Information
Not archived · Council Link
FLOOD RISK ASSESSMENT
Application Survey / Assessment / Statement
Not archived · Council Link
FOUL SEWAGE AND UTILITIES ASSESSMENT
Application Survey / Assessment / Statement
Not archived · Council Link
GENERAL ARRANGEMENT PLAN FIFTH FLOOR
Drawings
Not archived · Council Link
GENERAL ARRANGEMENT PLAN FIRST FLOOR
Drawings
Not archived · Council Link
GENERAL ARRANGEMENT PLAN FOURTH FLOOR
Drawings
Not archived · Council Link
GENERAL ARRANGEMENT PLAN GROUND FLOOR
Drawings
Not archived · Council Link
GENERAL ARRANGEMENT PLAN ROOF
Drawings
Not archived · Council Link
GENERAL ARRANGEMENT PLAN SECOND FLOOR
Drawings
Not archived · Council Link
GENERAL ARRANGEMENT PLAN SIXTH FLOOR
Drawings
Not archived · Council Link
GENERAL ARRANGEMENT PLAN THIRD FLOOR
Drawings
Not archived · Council Link
GROUND CONDITION AND CONTAMINATION REPORT
Application Information
Not archived · Council Link
GROUND FLOOR - LANDSCAPE GENERAL ARRANGEMENT PLAN
Drawings
Not archived · Council Link
GROUND FLOOR CONFERENCE CENTRE LANDSCAPE GENERAL ARRANGEMENT PLAN
Drawings
Not archived · Council Link
HEALTH IMPACT ASSESSMENT
Application Survey / Assessment / Statement
Not archived · Council Link
INVALID LETTER
Application Information
Not archived · Council Link
LANDSCAPE SECTIONS
Drawings
Not archived · Council Link
LLFA
Consultee Comments
Not archived · Council Link
LOCAL HIGHWAY AUTHORITY
Consultee Comments
Not archived · Council Link
LOCATION PLAN
Drawings
Not archived · Council Link
LOCATION PLAN - PROPOSED
Drawings
Not archived · Council Link
MAP OF NOTIFIED NEIGHBOURS
Neighbour/Consultee Notification List
Not archived · Council Link
NOISE IMPACT ASSESSMENT
Application Survey / Assessment / Statement
Not archived · Council Link
OPERATIONAL WASTE MANAGEMENT AND MINIMISATION STRATEGY
Application Information
Not archived · Council Link
PLANNING STATEMENT
Application Survey / Assessment / Statement
Not archived · Council Link
PLANTING PLAN
Drawings
Not archived · Council Link
PRELIMINARY ECOLOGICAL APPRAISAL
Application Survey / Assessment / Statement
Not archived · Council Link
PROPOSED ELEVATIONS EAST AND WEST
Drawings
Not archived · Council Link
PROPOSED ELEVATIONS NORTH AND SOUTH
Drawings
Not archived · Council Link
PROPOSED SECTION 3
Drawings
Not archived · Council Link
PROPOSED SECTIONS 1 AND 2
Drawings
Not archived · Council Link
Drawings
Archived · Council Link
PUBLIC ART STRATEGY
Application Information
Not archived · Council Link
S106 OFFICER COMMENTS
Consultee Comments
Not archived · Council Link
SITE NOTICE
Application Press/Site Notices
Not archived · Council Link
SITE PROPOSED SECTION
Drawings
Not archived · Council Link
SOUTH PLOT OUTLINE LOGISTICS DELIVERY AND SERVICING PLAN
Application Information
Not archived · Council Link
STATEMENT OF COMMUNITY INVOLVEMENT PAGE 1-50
Application Survey / Assessment / Statement
Not archived · Council Link
STATEMENT OF COMMUNITY INVOLVEMENT PAGE 51-80
Application Survey / Assessment / Statement
Not archived · Council Link
SURFACE AND FOUL WATER DRAINAGE STRATEGY (1 OF 2) PAGE 1-50
Application Survey / Assessment / Statement
Not archived · Council Link
SURFACE AND FOUL WATER DRAINAGE STRATEGY (1 OF 2) PAGE 102-152
Application Survey / Assessment / Statement
Not archived · Council Link
SURFACE AND FOUL WATER DRAINAGE STRATEGY (1 OF 2) PAGE 152-205
Application Survey / Assessment / Statement
Not archived · Council Link
SURFACE AND FOUL WATER DRAINAGE STRATEGY (1 OF 2) PAGE 206-226
Application Survey / Assessment / Statement
Not archived · Council Link
SURFACE AND FOUL WATER DRAINAGE STRATEGY (1 OF 2) PAGE 51-101
Application Survey / Assessment / Statement
Not archived · Council Link
SURFACE AND FOUL WATER DRAINAGE STRATEGY (2 OF 2) PAGE 1-50
Application Survey / Assessment / Statement
Not archived · Council Link
SURFACE AND FOUL WATER DRAINAGE STRATEGY (2 OF 2) PAGE 102-152
Application Survey / Assessment / Statement
Not archived · Council Link
SURFACE AND FOUL WATER DRAINAGE STRATEGY (2 OF 2) PAGE 152-203
Application Survey / Assessment / Statement
Not archived · Council Link
SURFACE AND FOUL WATER DRAINAGE STRATEGY (2 OF 2) PAGE 204-252
Application Survey / Assessment / Statement
Not archived · Council Link
SURFACE AND FOUL WATER DRAINAGE STRATEGY (2 OF 2) PAGE 51-101
Application Survey / Assessment / Statement
Not archived · Council Link
SUSTAINABILITY
Consultee Comments
Not archived · Council Link
SUSTAINABILITY STATEMENT PAGE 1-50
Application Survey / Assessment / Statement
Not archived · Council Link
SUSTAINABILITY STATEMENT PAGE 102-126
Application Survey / Assessment / Statement
Not archived · Council Link
SUSTAINABILITY STATEMENT PAGE 51-101
Application Survey / Assessment / Statement
Not archived · Council Link
TOWNSCAPE AND VISUAL APPRAISAL (10 OF 10)
Drawings
Not archived · Council Link
TOWNSCAPE AND VISUAL APPRAISAL (2 OF 10)
Application Survey / Assessment / Statement
Not archived · Council Link
TOWNSCAPE AND VISUAL APPRAISAL (3 OF 10)
Drawings
Not archived · Council Link
TOWNSCAPE AND VISUAL APPRAISAL (4 OF 10)
Drawings
Not archived · Council Link
TOWNSCAPE AND VISUAL APPRAISAL (5 OF 10)
Drawings
Not archived · Council Link
TOWNSCAPE AND VISUAL APPRAISAL (6 OF 10)
Drawings
Not archived · Council Link
TOWNSCAPE AND VISUAL APPRAISAL (7 OF 10)
Drawings
Not archived · Council Link
TOWNSCAPE AND VISUAL APPRAISAL (8 OF 10)
Drawings
Not archived · Council Link
TOWNSCAPE AND VISUAL APPRAISAL (9 OF 10)
Drawings
Not archived · Council Link
TOWNSCAPE AND VISUAL APPRAISAL PAGE 1-50
Application Survey / Assessment / Statement
Not archived · Council Link
TOWNSCAPE AND VISUAL APPRAISAL PAGE 51-59
Application Survey / Assessment / Statement
Not archived · Council Link
TRANSPORT ASSESSMENT TEAM
Consultee Comments
Not archived · Council Link
TRANSPORT ASSESSMENT TEAM
Consultee Comments
Not archived · Council Link
TRAVEL PLAN
Application Information
Not archived · Council Link
TREES
Consultee Comments
Not archived · Council Link
TYPICAL LANDSCAPE DETAILS - SHEET 2
Drawings
Not archived · Council Link
TYPICAL LANDSCAPE DETAILS SHEET 1
Drawings
Not archived · Council Link
VENTILATION AND EXTRACTION STATEMENT
Application Survey / Assessment / Statement
Not archived · Council Link
WASTE - SHARED SERVICE
Consultee Comments
Not archived · Council Link

Take Action

Make your voice heard. Authorities need to hear from people who support new homes.

✉️ Write Email in Support View on Council Portal