← Back to Cambridge City & South Cambridgeshire

Status

Awaiting decision House extension
Received
18 days ago
New dwellings
0

Full Proposal

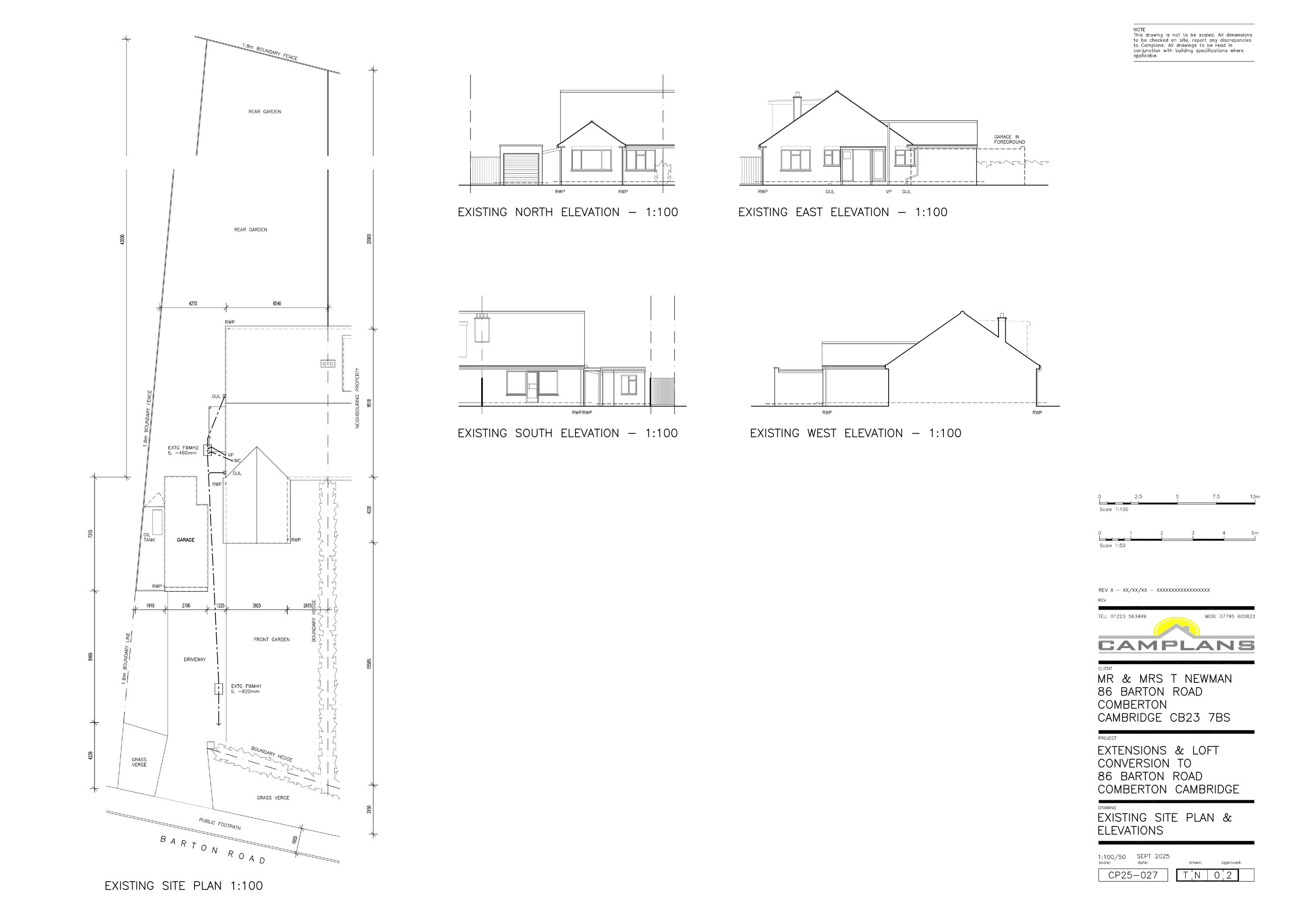
Garage demolition, single storey front and side extension, roof extension with front and rear flat roof dormers.

Documents

ACKNOWLEDGEMENT LETTER
Application Officer Correspondence
Not archived · Council Link
APPLICATION FORM - NO PERSONAL INFO
Application Information
Not archived · Council Link
ATTACHMENT SUMMARY FROM PORTAL
Attachment Summary
Not archived · Council Link
EXISTING GROUND FLOOR
Drawings
Not archived · Council Link
FEE CALCULATION
Application Information
Not archived · Council Link
LOCATIONPLAN
Drawings
Not archived · Council Link
MAP OF NOTIFIED NEIGHBOURS
Neighbour/Consultee Notification List
Not archived · Council Link
PROPOSED GROUND AND FIRST FLOOR PLANS
Drawings
Not archived · Council Link
Drawings
Archived · Council Link

Take Action

Make your voice heard. Authorities need to hear from people who support new homes.

✉️ Write Email in Support View on Council Portal