← Back to Cambridge City & South Cambridgeshire

Status

Awaiting decision New housing
Received
16 days ago
New dwellings
1

Full Proposal

Erection of 1 No. single storey self/custom build dwelling together with access.

Documents

ACKNOWLEDGEMENT LETTER
Application Officer Correspondence
Not archived · Council Link
AMENDMENT SUMMARY
Application Information
Not archived · Council Link
APPLICATION FORM NO PERSONAL DATA
Application Information
Not archived · Council Link
ARBORICULTURAL REPORT
Application Information
Not archived · Council Link
ATTACHMENT SUMMARY FROM PORTAL
Attachment Summary
Not archived · Council Link
DESIGN AND ACCESS STATEMENT
Application Information
Not archived · Council Link
EXISTING BLOCK PLAN
Drawings
Not archived · Council Link
FEE CALCULATION
Application Information
Not archived · Council Link
HERITAGE STATEMENT
Application Information
Not archived · Council Link
INVALID LETTER
Application Information
Not archived · Council Link
MAP OF NOTIFIED NEIGHBOURS
Neighbour/Consultee Notification List
Not archived · Council Link
PRELIMINARY ECOLOGICAL APPRAISAL REPORT
Application Information
Not archived · Council Link
PROPOSED BLOCK PLAN
Drawings
Not archived · Council Link
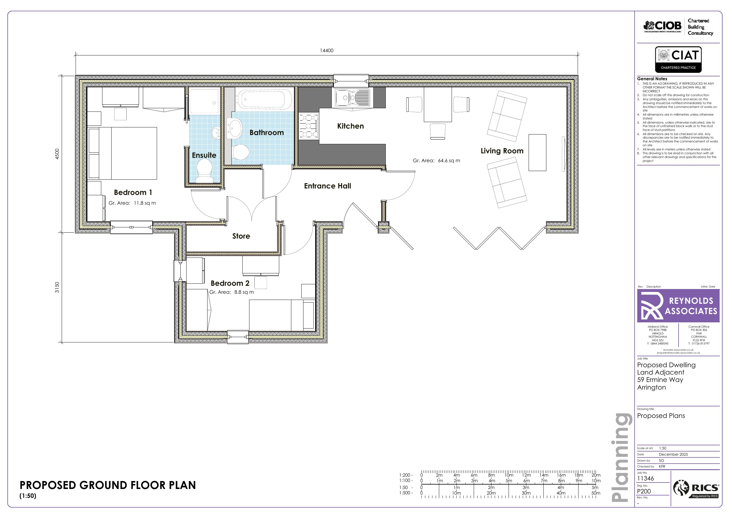
PROPOSED ELEVATIONS
Drawings
Not archived · Council Link
Drawings
Archived · Council Link
Drawings
Archived · Council Link
Drawings
Archived · Council Link

Take Action

Make your voice heard. Authorities need to hear from people who support new homes.

✉️ Write Email in Support View on Council Portal