← Back to Cannock Chase District Council
CH/25/0013
Cannock Chase District Council · AGILE
Status
Decision made
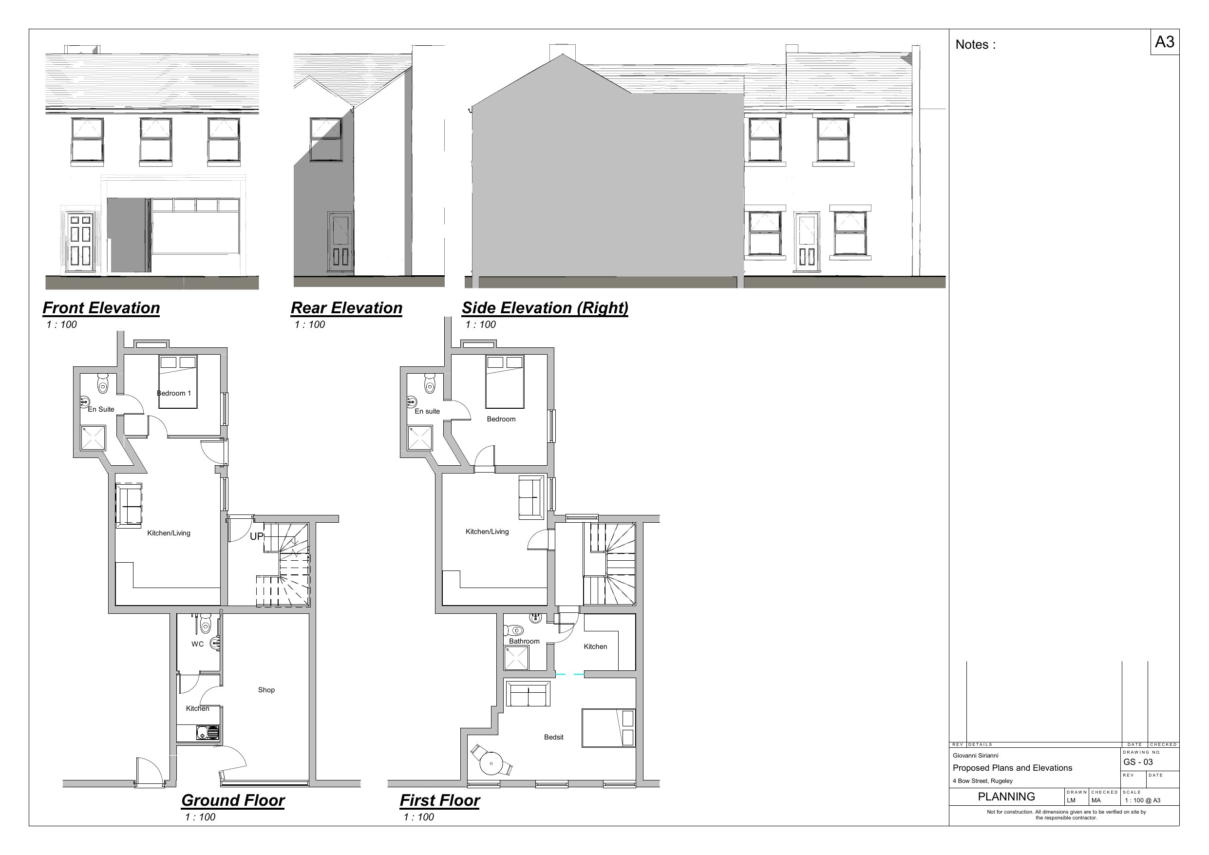
Change of use
Received
17 Jan 2025
New dwellings
3
Full Proposal
Application for the change of use of C3 residential to a 3 x 1 bed flat and raising of section of the rear roof
Documents
Take Action
Make your voice heard. Authorities need to hear from people who support new homes.