← Back to Canterbury City Council

Status

Awaiting decision Commercial
Received
n/a
New dwellings
0

Full Proposal

Erection of a two-storey hotel building, conversion and alterations to the existing stable block to provide holiday let accommodation, erection and siting of 2no. tree houses and 5no.lodges for holiday let accommodation, erection of single-storey spa building with outdoor pool, conversion and extension of existing squash court building to provide restaurant, bar, golf shop, and staff living accommodation, with formation of access.

Documents

APPLICATION FORM - WITHOUT PERSONAL DATA
Application Form
Not archived · Council Link
ARBORICULTURAL REPORT
Associated Document
Not archived · Council Link
ASSESSMENT OF LANDSCAPE
Associated Document
Not archived · Council Link
BARHAM PARISH COUNCIL
Public Comment
Not archived · Council Link
BIODIVERSITY STATEMENT
Associated Document
Not archived · Council Link
BRUCE SANDERS
Public Comment
Not archived · Council Link
CCC TRANSPORT
Consultee Comment
Not archived · Council Link
CLLR TERENCE HODGES
Public Comment
Not archived · Council Link
COMMUNITY INFRASTRUCTURE LEVY - COMPLETED FORM
CIL
Not archived · Council Link
DEMOLITION OF FIRST FLOOR PLAN
Drawing
Not archived · Council Link
DEMOLITION OF GROUND FLOOR PLAN
Drawing
Not archived · Council Link
DR LINDA KEEN
Public Comment
Not archived · Council Link
DRAINAGE
Associated Document
Not archived · Council Link
ECOLOGICAL REPORT
Associated Document
Not archived · Council Link
ENV AGENCY
Consultee Comment
Not archived · Council Link
ENVIRONMENTAL AGENCY
Consultee Comment
Not archived · Council Link
ENVIRONMENTAL HEALTH
Consultee Comment
Not archived · Council Link
EXECUTIVE SUMMARY
Planning Statement
Not archived · Council Link
EXISTING FIRST FLOOR PLAN
Drawing
Not archived · Council Link
EXISTING FIRST FLOOR PLANS
Drawing
Not archived · Council Link
EXISTING FLOOR PLANS
Drawing
Not archived · Council Link
EXISTING GROUND FLOOR PLAN
Drawing
Not archived · Council Link
EXISTING MASTER PLAN
Drawing
Not archived · Council Link
EXISTING NORTH AND EAST ELEVATIONS
Drawing
Not archived · Council Link
EXISTING NORTH AND WEST ELEVATIONS
Drawing
Not archived · Council Link
EXISTING ROOF PLANS
Drawing
Not archived · Council Link
EXISTING SOUT AND EAST ELEVATIONS
Drawing
Not archived · Council Link
EXISTING SOUTH AND WEST ELEVATIONS
Drawing
Not archived · Council Link
FIRE AND RESCUE
Consultee Comment
Not archived · Council Link
FLOOD AND WATER MANAGEMENT
Consultee Comment
Not archived · Council Link
FLOODING AND DRAINAGE REPORT
Associated Document
Not archived · Council Link
HERITAGE STATEMENT
Associated Document
Not archived · Council Link
KCC ECOLOGY
Consultee Comment
Not archived · Council Link
KCC FLOOD
Consultee Comment
Not archived · Council Link
KCC FLOOD AND WATER MANAGEMENT
Consultee Comment
Not archived · Council Link
KCC HIGHWAYS
Consultee Comment
Not archived · Council Link
KENT DOWNS NATIONAL LANDSCAPE
Consultee Comment
Not archived · Council Link
KENT POLICE
Consultee Comment
Not archived · Council Link
LANDSCAPING DETAILS
Associated Document
Not archived · Council Link
LANDSCAPING DETAILS
Photo
Not archived · Council Link
MR BRUCE SANDERS
Public Comment
Not archived · Council Link
MR KEVIN LAWTON-BARRETT
Public Comment
Not archived · Council Link
MR LEON BALDERSON
Public Comment
Not archived · Council Link
MRS SARAH WARR
Public Comment
Not archived · Council Link
NATURAL ENGLAND
Consultee Comment
Not archived · Council Link
NATURAL ENGLAND ANNEX A
Consultee Comment
Not archived · Council Link
PHOTOGRAPHS OF VIEWPOINTS
Photo
Not archived · Council Link
PLANNING STATEMENT
Design and Access
Not archived · Council Link
PROPOSED FIRST FLOOR PLAN
Drawing
Not archived · Council Link
PROPOSED FIRST FLOOR PLAN
Drawing
Not archived · Council Link
PROPOSED FIRST FLOOR PLAN
Drawing
Not archived · Council Link
Drawing
Archived · Council Link
PROPOSED FRONT ELEVATION
Drawing
Not archived · Council Link
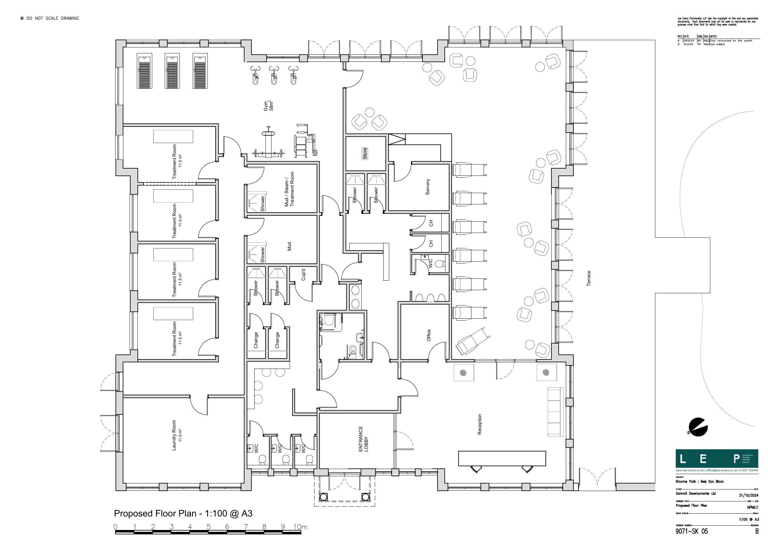
PROPOSED GROUND FLOOR PLAN
Drawing
Not archived · Council Link
PROPOSED GROUND FLOOR PLAN
Drawing
Not archived · Council Link
PROPOSED GROUND FLOOR PLAN
Drawing
Not archived · Council Link
PROPOSED MASTER PLAN
Drawing
Not archived · Council Link
PROPOSED MASTER PLAN
Drawing
Not archived · Council Link
PROPOSED NORTH AND EAST ELEVATIONS
Drawing
Not archived · Council Link
PROPOSED NORTH AND EAST ELEVATIONS
Drawing
Not archived · Council Link
PROPOSED NORTH AND WEST ELEVATIONS
Drawing
Not archived · Council Link
PROPOSED NORTH AND WEST ELEVATIONS
Drawing
Not archived · Council Link
PROPOSED REAR ELEVATION
Drawing
Not archived · Council Link
PROPOSED REFUSED STRATEGY
Drawing
Not archived · Council Link
PROPOSED ROOF PLAN
Drawing
Not archived · Council Link
PROPOSED ROOF PLANS
Drawing
Not archived · Council Link
PROPOSED SECTIONS
Drawing
Not archived · Council Link
PROPOSED SECTIONS
Drawing
Not archived · Council Link
PROPOSED SIDE ELEVATIONS
Drawing
Not archived · Council Link
Drawing
Archived · Council Link
PROPOSED SOUTH AND EAST ELEVATIONS
Drawing
Not archived · Council Link
PROPOSED SOUTH AND WEST ELEVATIONS
Drawing
Not archived · Council Link
PROPOSED WEST AND SOUTH ELEVATIONS
Drawing
Not archived · Council Link
PROTECTIVE SPECIES REPORT
Associated Document
Not archived · Council Link
PROW
Consultee Comment
Not archived · Council Link
TECHNICAL RESPONSE - FLOODING
Associated Document
Not archived · Council Link
TECHNICAL RESPONSE - HIGHWAYS
Superseded
Not archived · Council Link
TECHNICAL RESPONSE - HIGHWAYS
Associated Document
Not archived · Council Link
THE LOCATION PLAN
OS Extract
Not archived · Council Link
TRANSPORT ASSESSMENT
Associated Document
Not archived · Council Link
TREE PROTECTION PLAN AND SURVEY
Superseded
Not archived · Council Link
TREE PROTECTION PLAN AND SURVEY
Superseded
Not archived · Council Link
TREE PROTECTION PLAN AND SURVEY
Superseded
Not archived · Council Link
TREE PROTECTION PLAN AND SURVEY
Superseded
Not archived · Council Link
TREE PROTECTION PLAN AND SURVEY
Superseded
Not archived · Council Link
TREE PROTECTION PLAN AND SURVEY (SHEET 1 OF 4)
Revised Drawing
Not archived · Council Link
TREE PROTECTION PLAN AND SURVEY (SHEET 2 OF 4 W/UPDATED LEGEND)
Revised Drawing
Not archived · Council Link
TREE PROTECTION PLAN AND SURVEY (SHEET 2 OF 4)
Revised Drawing
Not archived · Council Link
TREE PROTECTION PLAN AND SURVEY (SHEET 3 OF 4 W/UPDATED LEGEND))
Revised Drawing
Not archived · Council Link
TREE PROTECTION PLAN AND SURVEY (SHEET 3 OF 4)
Revised Drawing
Not archived · Council Link
TREE PROTECTION PLAN AND SURVEY (SHEET 4 OF 4 W/UPDATED LEGEND)
Revised Drawing
Not archived · Council Link
TREE PROTECTION PLAN AND SURVEY (SHEET 4 OF 4)
Revised Drawing
Not archived · Council Link
TREE PROTECTION PLAN AND SURVEY (SHET 1 OF 4 W/UPDATED LEGEND)
Revised Drawing
Not archived · Council Link
TREE SURVEY
Superseded
Not archived · Council Link
TREE SURVEY
Superseded
Not archived · Council Link
TREE SURVEY
Superseded
Not archived · Council Link
TREEHOUSE AND CABIN DESIGN
Associated Document
Not archived · Council Link
TREES
Consultee Comment
Not archived · Council Link

Take Action

Make your voice heard. Authorities need to hear from people who support new homes.

✉️ Write Email in Support View on Council Portal