← Back to Canterbury City Council

Status

Awaiting decision Change of use
Received
n/a
New dwellings
1

Full Proposal

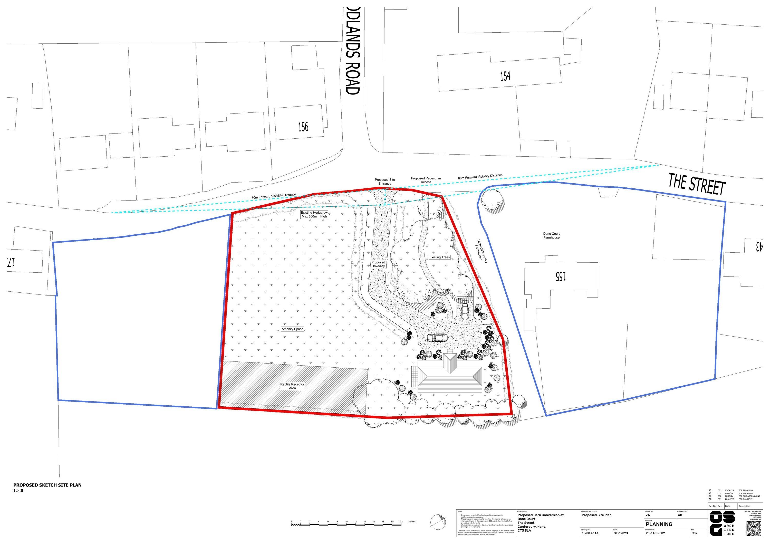
Outline application for the change of use of a barn to dwelling with all matters reserved apart from access.

Documents

APPLICATION FORM - WITHOUT PERSONAL DATA
Application Form
Not archived · Council Link
BASELINE HABITAT ASSESSMENT
Associated Document
Not archived · Council Link
BIODIVERSITY NET GAIN ASSESSMENT
Associated Document
Not archived · Council Link
BNG METRIC
Associated Document
Not archived · Council Link
CONDITION ASSESSMENT
Associated Document
Not archived · Council Link
CROSS SECTION
Drawing
Not archived · Council Link
DESIGN AND ACCESS STATEMENT
Design and Access
Not archived · Council Link
ECOLOGICAL APPRAISAL
Associated Document
Not archived · Council Link
ECOLOGICAL IMPACT ASSESSMENT
Associated Document
Not archived · Council Link
ECOLOGICAL IMPACT ASSESSMENT
Superseded
Not archived · Council Link
EXISTING FLOOR PLAN
Drawing
Not archived · Council Link
KCC ECOLOGY
Consultee Comment
Not archived · Council Link
KCC ECOLOGY
Consultee Comment
Not archived · Council Link
PROPOSED ACCESS ROAD
Drawing
Not archived · Council Link
Revised Drawing
Archived · Council Link
Superseded
Archived · Council Link
PROTECTIVE SPECIES REPORT
Associated Document
Not archived · Council Link
REPTILE RECEPTOR AREA
Drawing
Not archived · Council Link
STRUCTURAL REPORT
Associated Document
Not archived · Council Link
TRAFFIC COUNT REPORT
Associated Document
Not archived · Council Link
WILLIAM TURRELL
Public Comment
Not archived · Council Link
OS Extract
Archived · Council Link

Take Action

Make your voice heard. Authorities need to hear from people who support new homes.

✉️ Write Email in Support View on Council Portal