← Back to Canterbury City Council

Status

Decided New housing
Received
n/a
New dwellings
5

Summary

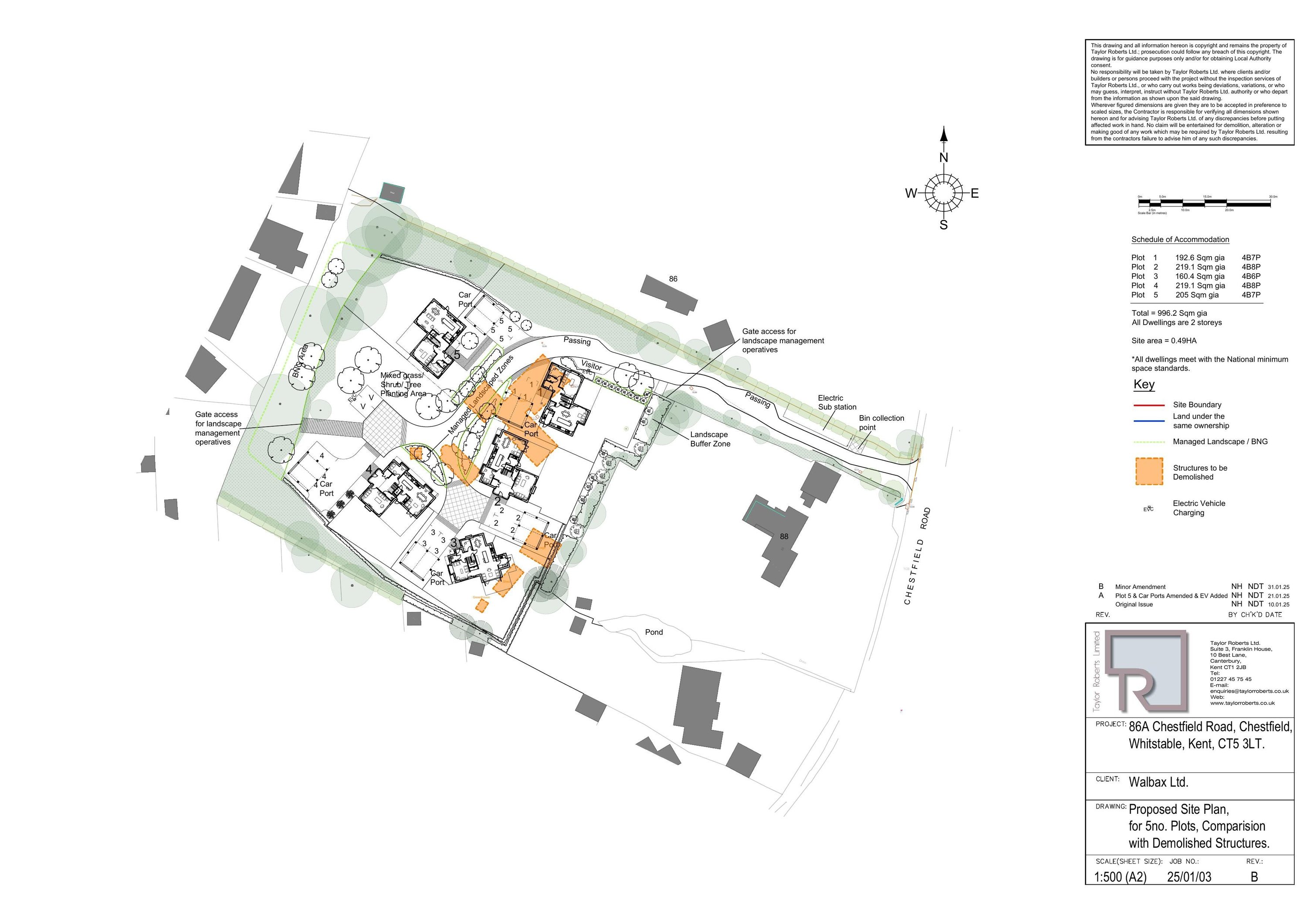
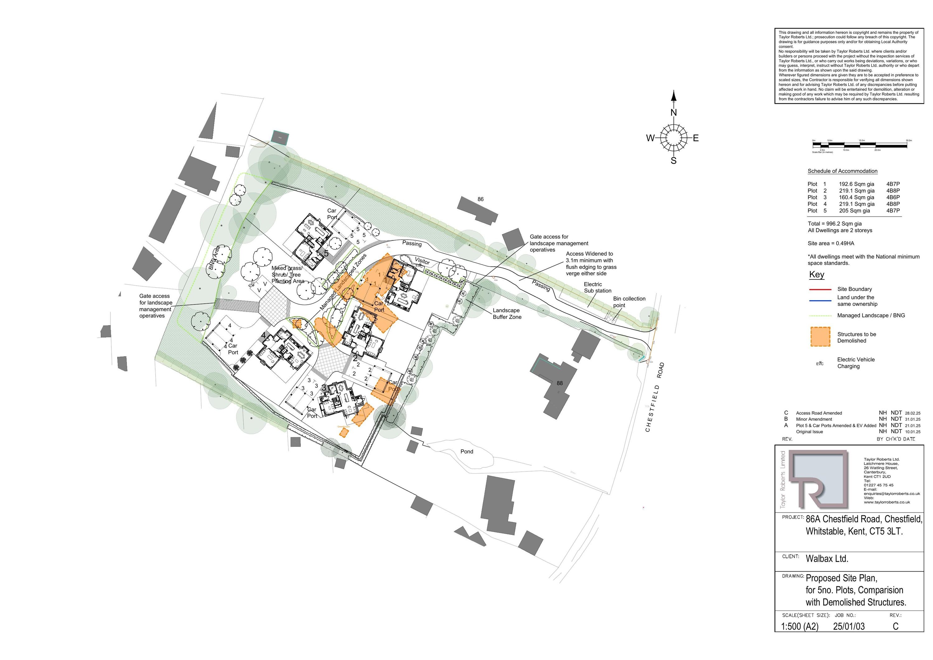
Construction of five detached two-storey dwellings with car barns following demolition of existing dwelling.

Full Proposal

5 detached two-storey dwellings with associated car barns following demolition of existing dwelling.

Documents

& EXISTING BLOCK PLAN
Superseded
Not archived · Council Link
& EXISTING BLOCK PLAN
OS Extract
Not archived · Council Link
APPLICATION FORM - WITHOUT PERSONAL DATA
Application Form
Not archived · Council Link
ARBORICULTURAL IMPACT STATEMENT
Associated Document
Not archived · Council Link
ARBORICULTURAL REPORT
Associated Document
Not archived · Council Link
BIODIVERSITY GAIN PLAN
Associated Document
Not archived · Council Link
BIODIVERSITY METRIC CALCULATION TOOL
Associated Document
Not archived · Council Link
BIODIVERSITY SURVEY AND REPORT
Associated Document
Not archived · Council Link
BNG MAPPING
Drawing
Not archived · Council Link
BNG METRIC (EXCEL VERSION)
Superseded
Not archived · Council Link
BNG METRIC (EXCEL VERSION)
Associated Document
Not archived · Council Link
BNG METRIC (EXCEL VERSION)
Superseded
Not archived · Council Link
BNG METRIC (EXCEL VERSION)
Superseded
Not archived · Council Link
COMMITTEE REPORT
Officer Report
Not archived · Council Link
COVERING LETTER
Associated Document
Not archived · Council Link
Decision
Decision
Not archived · Council Link
Design and Access
Design and Access
Not archived · Council Link
ENVIROMENTAL HEALTH
Consultee Comment
Not archived · Council Link
EXISTING ELEVATIONS
Drawing
Not archived · Council Link
EXISTING FLOOR PLANS.
Drawing
Not archived · Council Link
EXISTING SECTION
Drawing
Not archived · Council Link
Drawing
Archived · Council Link
EXISTING STREET SCENE
Drawing
Not archived · Council Link
FLOOD RISK ASSESSMENT
Associated Document
Not archived · Council Link
FORM 1
CIL
Not archived · Council Link
HERITAGE STATEMENT
Associated Document
Not archived · Council Link
HIGHWAYS AND TRANSPORTATION
Consultee Comment
Not archived · Council Link
INDICATIVE PLANTING PLAN
Drawing
Not archived · Council Link
KCC ECOLOGY
Consultee Comment
Not archived · Council Link
KCC ECOLOGY
Consultee Comment
Not archived · Council Link
KCC HIGHWAYS
Consultee Comment
Not archived · Council Link
KENT FIRE
Consultee Comment
Not archived · Council Link
KENT FIRE & RESCUE
Consultee Comment
Not archived · Council Link
KENT FIRE AND RESCUE
Consultee Comment
Not archived · Council Link
Planning Statement
Planning Statement
Not archived · Council Link
PROPOSED BLOCK PLAN
Superseded
Not archived · Council Link
PROPOSED BLOCK PLAN
Superseded
Not archived · Council Link
PROPOSED BLOCK PLAN
Revised Drawing
Not archived · Council Link
PROPOSED CAR PORTS
Drawing
Not archived · Council Link
Revised Drawing
Archived · Council Link
Superseded
Archived · Council Link
Superseded
Archived · Council Link
PROPOSED PLOT 1 FLOOR PLANS & ELEVATIONS
Drawing
Not archived · Council Link
PROPOSED PLOT 2 ELEVATIONS
Drawing
Not archived · Council Link
PROPOSED PLOT 2 FLOOR PLANS & ROOF PLAN
Drawing
Not archived · Council Link
PROPOSED PLOT 3 FLOOR PLANS & ELEVATIONS
Revised Drawing
Not archived · Council Link
PROPOSED PLOT 3 FLOOR PLANS & ELEVATIONS
Superseded
Not archived · Council Link
PROPOSED PLOT 4 ELEVATIONS
Drawing
Not archived · Council Link
PROPOSED PLOT 4 FLOOR PLANS & ROOF PLAN
Drawing
Not archived · Council Link
PROPOSED PLOT 5 FLOOR PLANS & ELEVATIONS
Drawing
Not archived · Council Link
Superseded
Archived · Council Link
Superseded
Archived · Council Link
Superseded
Archived · Council Link
Superseded
Archived · Council Link
Revised Drawing
Archived · Council Link
PROPOSED STREET SCENE
Drawing
Not archived · Council Link
SECTION 106
Finance
Not archived · Council Link
SOUTHERN WATER
Consultee Comment
Not archived · Council Link
SOUTHERN WATER
Consultee Comment
Not archived · Council Link
SWEPT PATH ANALYSIS
Drawing
Not archived · Council Link
TECHNICAL RESPONSE - ECOLOGY
Associated Document
Not archived · Council Link
TREE CONSTRAINTS PLAN
Drawing
Not archived · Council Link
TREE PROTECTION PLAN
Drawing
Not archived · Council Link
TREE REMOVALS PLAN
Drawing
Not archived · Council Link

Take Action

Make your voice heard. Authorities need to hear from people who support new homes.

✉️ Write Email in Support View on Council Portal