← Back to Canterbury City Council
CA/25/00261
Canterbury City Council · IDOX
Status
Awaiting decision
Change of use
Received
n/a
New dwellings
0
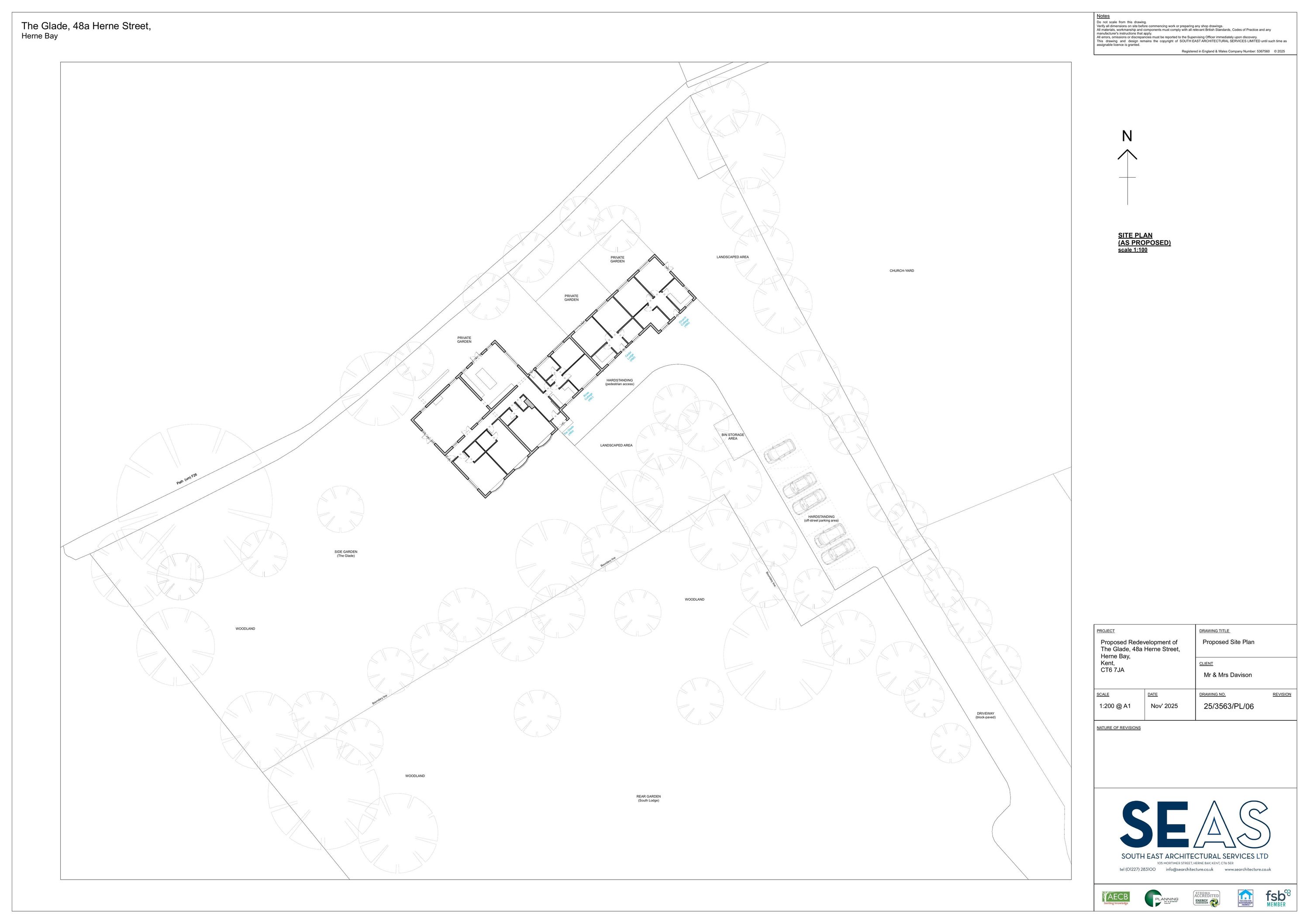
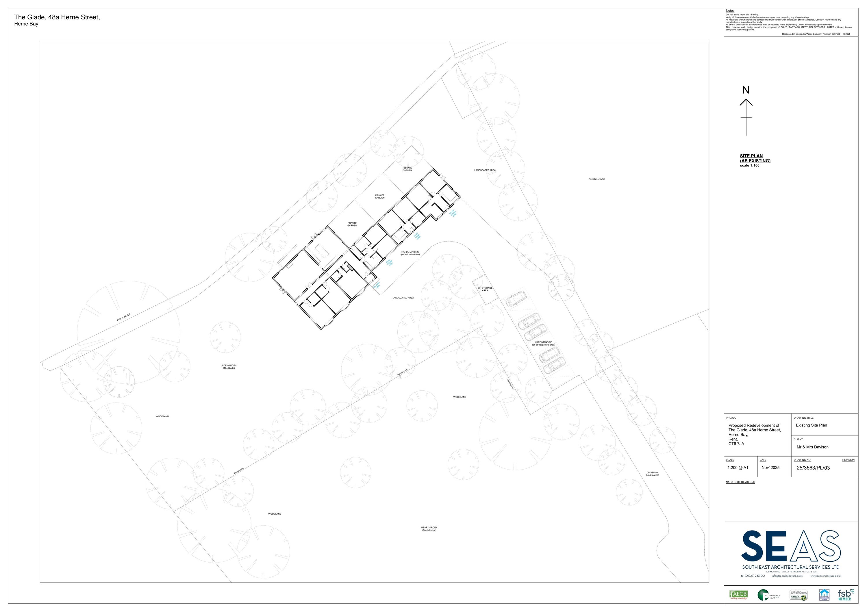
Summary
Change of use of former care home to single residential dwelling.
Full Proposal
Change of use from former care home to residential dwelling.
Documents
Take Action
Make your voice heard. Authorities need to hear from people who support new homes.