← Back to Canterbury City Council

Status

Awaiting decision New housing
Received
n/a
New dwellings
2

Summary

Two three-storey detached dwellings following demolition of existing dwelling.

Full Proposal

2 three-storey detached dwellings following demolition of existing dwelling.

Documents

APPLICATION FORM - WITHOUT PERSONAL DATA
Application Form
Not archived · Council Link
BNG METRIC
Associated Document
Not archived · Council Link
DESIGN AND ACCESS STATEMENT
Design and Access
Not archived · Council Link
ECOLOGY ASSESSMENT
Associated Document
Not archived · Council Link
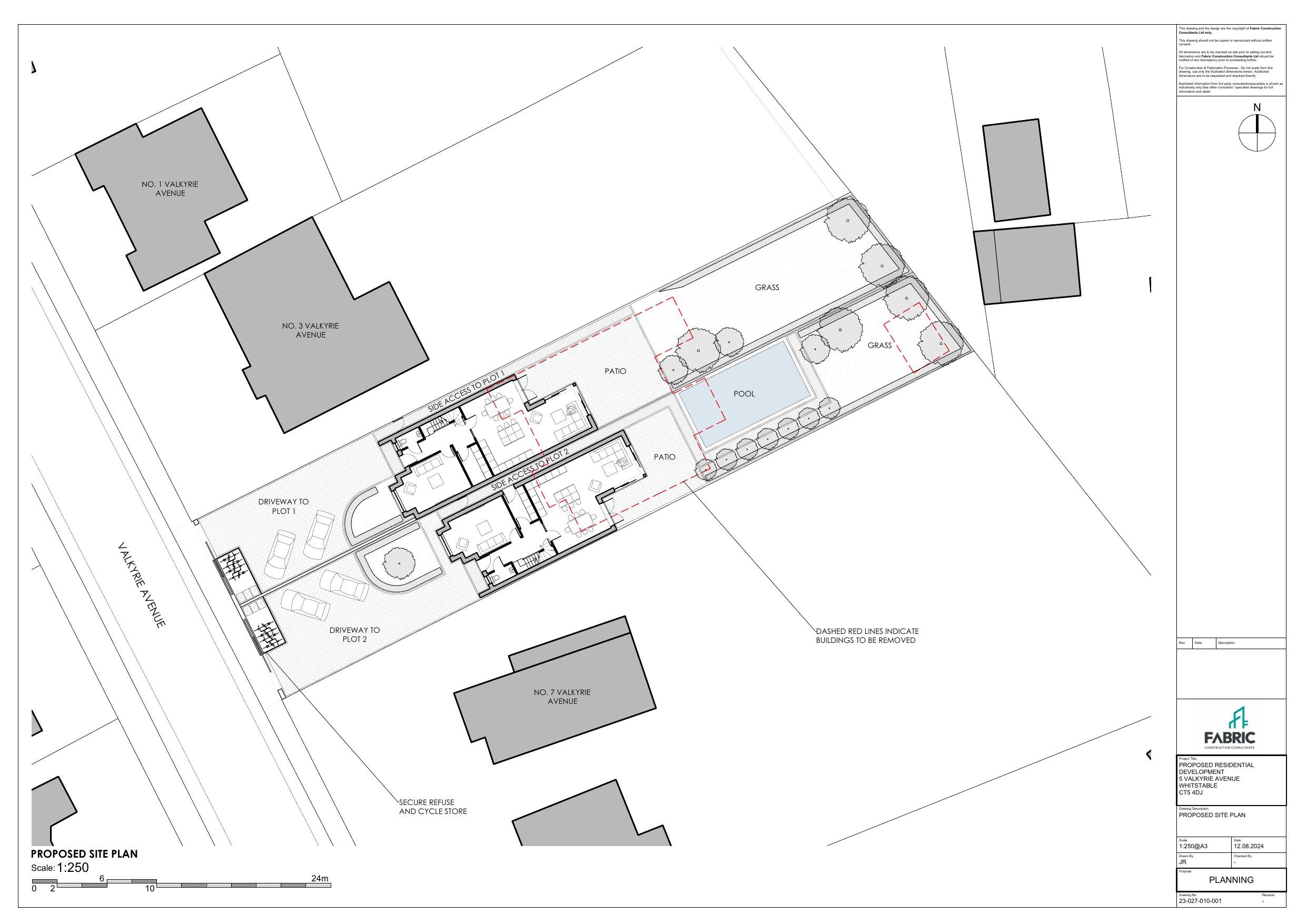
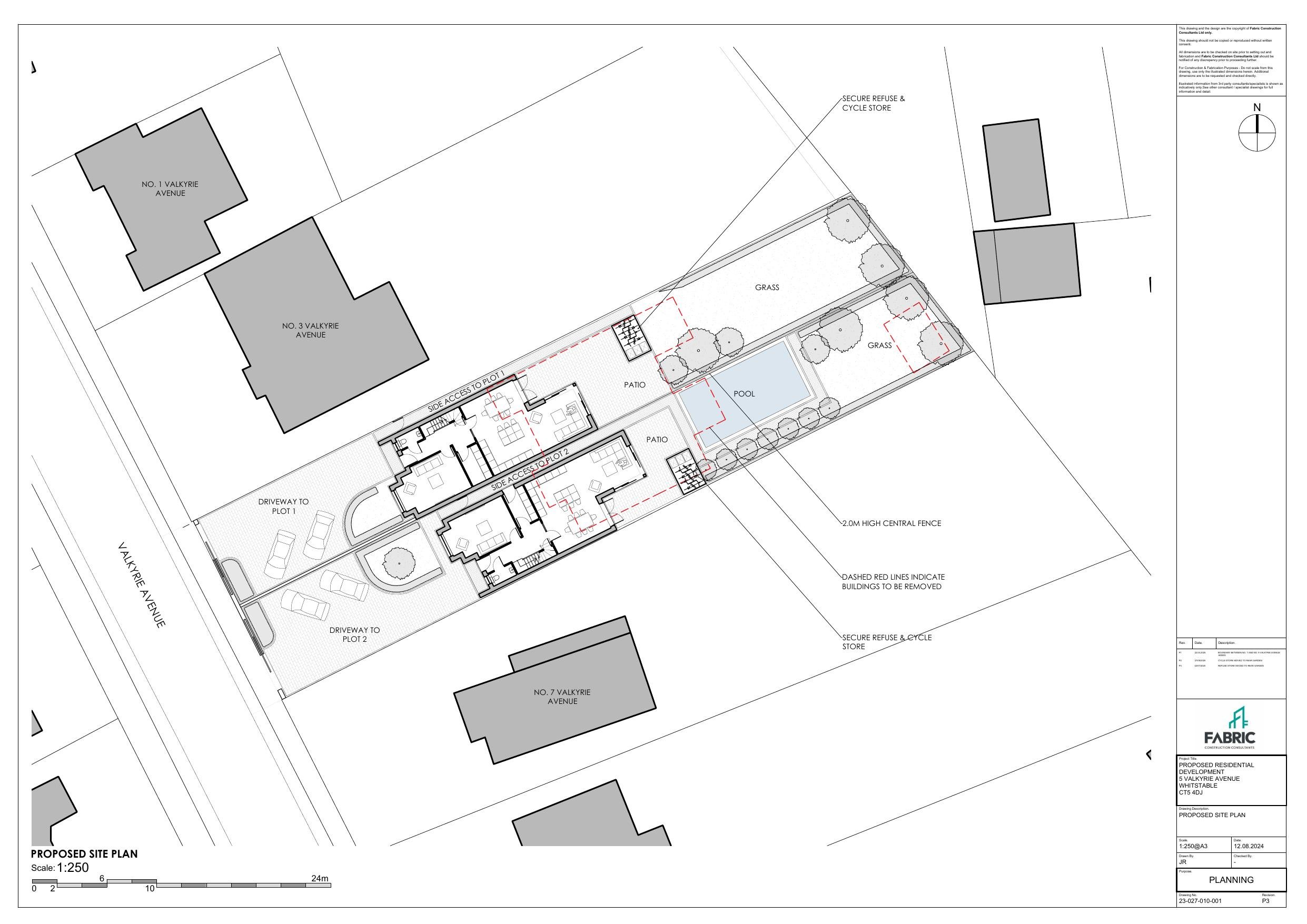
EXISTING AND PROPOSED BLOCK PLAN
Revised Drawing
Not archived · Council Link
EXISTING AND PROPOSED BLOCK PLAN
Superseded
Not archived · Council Link
EXISTING AND PROPOSED STREETSCENE
Revised Drawing
Not archived · Council Link
EXISTING AND PROPOSED STREETSCENE
Superseded
Not archived · Council Link
EXISTING ELEVATION FRONT AND SIDE
Drawing
Not archived · Council Link
EXISTING ELEVATION REAR AND SIDE
Drawing
Not archived · Council Link
EXISTING FLOOR PLAN
Drawing
Not archived · Council Link
FORM 1
CIL
Not archived · Council Link
KCC ECOLOGY
Consultee Comment
Not archived · Council Link
KCC ECOLOGY
Consultee Comment
Not archived · Council Link
MRS HANNAH G
Public Comment
Not archived · Council Link
MS STELLA OMARA
Public Comment
Not archived · Council Link
MS STELLA OMARA
Public Comment
Not archived · Council Link
OS Extract
OS Extract
Not archived · Council Link
PROPOSED ELEVATION FRONT AND SIDE
Superseded
Not archived · Council Link
PROPOSED ELEVATION REAR AND SIDE
Superseded
Not archived · Council Link
PROPOSED ELEVATION REAR AND SIDE
Superseded
Not archived · Council Link
PROPOSED FLOOR PLAN
Drawing
Not archived · Council Link
PROPOSED FLOOR PLAN
Drawing
Not archived · Council Link
PROPOSED FLOOR PLAN
Drawing
Not archived · Council Link
PROPOSED FRONT AND SIDE ELEVATIONS
Revised Drawing
Not archived · Council Link
PROPOSED REAR AND SIDE ELEVATIONS
Revised Drawing
Not archived · Council Link
PROPOSED SIDE ELEVATIONS
Revised Drawing
Not archived · Council Link
Superseded
Archived · Council Link
Revised Drawing
Archived · Council Link
SOUTHERN WATER
Consultee Comment
Not archived · Council Link
SOUTHERN WATER
Consultee Comment
Not archived · Council Link
Superseded
Superseded
Not archived · Council Link

Take Action

Make your voice heard. Authorities need to hear from people who support new homes.

✉️ Write Email in Support View on Council Portal