← Back to Canterbury City Council

Status

Awaiting decision Industrial
Received
n/a
New dwellings
0

Full Proposal

Erection of 23 commercial units to be used for general industrial, storage and distribution and office and light industrial together with parking, landscaping, and associated other works following the demolition of existing commercial units.

Documents

4378_P003-P9-PROPOSED SITE LAYOUT.
Revised Drawing
Not archived · Council Link
4378_P101-P3-PROPOSED ROOF PLAN-UNITS 1-3
Revised Drawing
Not archived · Council Link
4378_P102-P3-PROPOSED ELEVATIONS-UNITS 1-3
Revised Drawing
Not archived · Council Link
4378_P103-P3-PROPOSED SECTION-UNIT 1
Revised Drawing
Not archived · Council Link
4378_P104-P1-PROPOSED SECTION-UNIT 2
Revised Drawing
Not archived · Council Link
4378_P105-P2-PROPOSED CROSS SECTION-UNITS 1-3
Revised Drawing
Not archived · Council Link
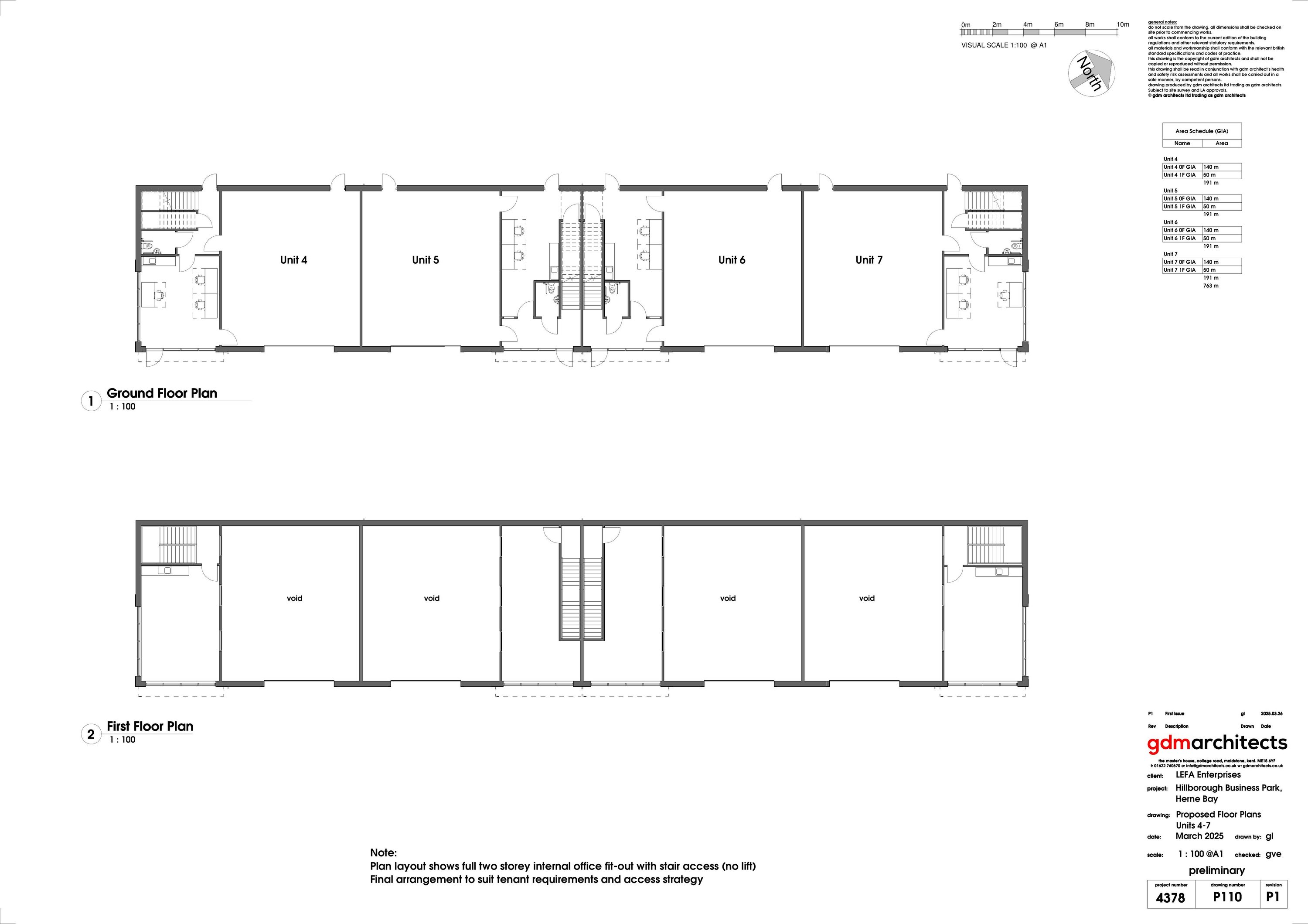
4378_P111-P2-PROPOSED ROOF PLAN-UNITS 4-7
Revised Drawing
Not archived · Council Link
4378_P112-P3-PROPOSED ELEVATIONS-UNITS 4-7
Revised Drawing
Not archived · Council Link
4378_P121-P2-PROPOSED ROOF PLAN-UNITS 8-9.
Revised Drawing
Not archived · Council Link
4378_P122-P2-PROPOSED ELEVATIONS-UNITS 8-9.
Revised Drawing
Not archived · Council Link
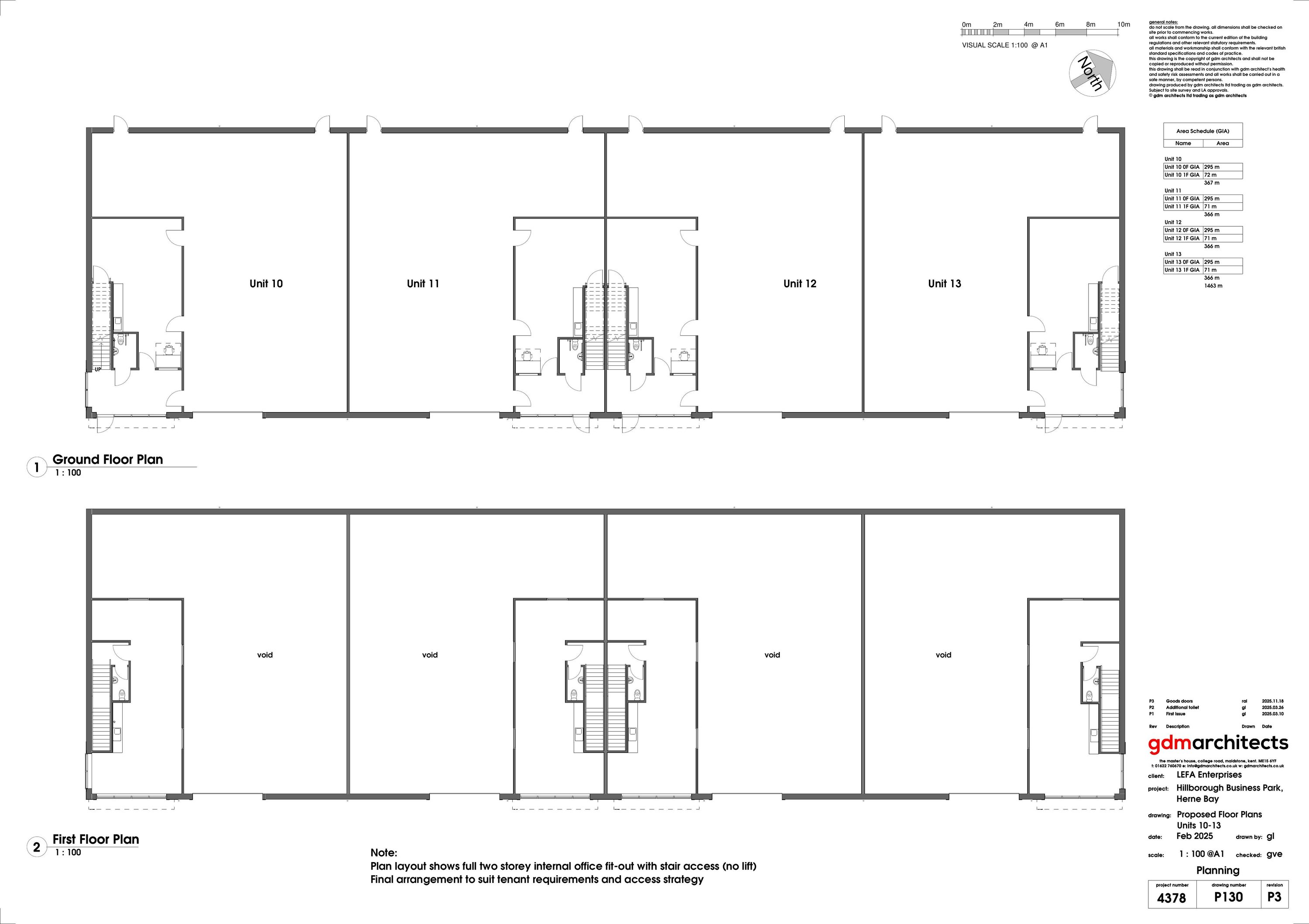
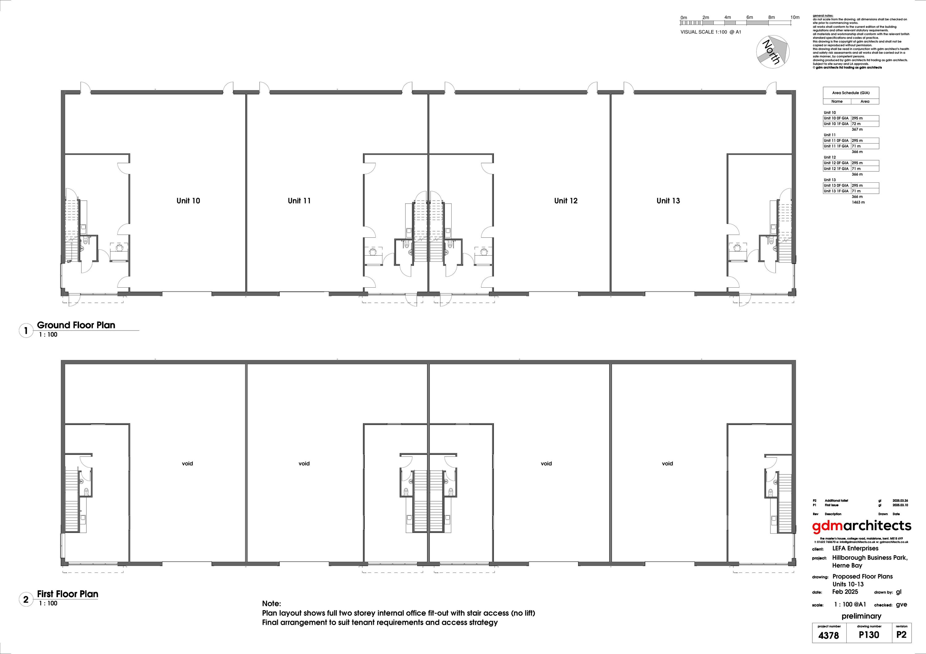
4378_P132-P2-PROPOSED ELEVATIONS-UNITS 10-13
Revised Drawing
Not archived · Council Link
AIR QUALITY
Consultee Comment
Not archived · Council Link
AIR QUALITY ASSESSMENT
Associated Document
Not archived · Council Link
AIR QUALITY ASSESSMENT
Associated Document
Not archived · Council Link
APPLICATION FORM - WITHOUT PERSONAL DATA
Application Form
Not archived · Council Link
ARCHAEOLOGICAL ASSESSMENT
Associated Document
Not archived · Council Link
BIODIVERSITY GAIN PLAN
Associated Document
Not archived · Council Link
BIODIVERSITY METRIC CALCULATION TOOL
Associated Document
Not archived · Council Link
BIODIVERSITY STATEMENT
Associated Document
Not archived · Council Link
CCC TRANSPORT
Consultee Comment
Not archived · Council Link
Design and Access
Design and Access
Not archived · Council Link
DR EMILY ELLIS
Public Comment
Not archived · Council Link
DRAINAGE RESPONSE 05.11.25
Revised Drawing
Not archived · Council Link
ENERGY STATEMENT
Associated Document
Not archived · Council Link
ENVIRONMENTAL HEALTH
Consultee Comment
Not archived · Council Link
ENVIRONMENTAL HEALTH
Consultee Comment
Not archived · Council Link
ENVIRONMENTAL HEALTH
Consultee Comment
Not archived · Council Link
EXISTING LAYOUT PLAN
Drawing
Not archived · Council Link
FENDLEY
Public Comment
Not archived · Council Link
FLOOD RISK ASSESSMENT
Associated Document
Not archived · Council Link
FORM 1
CIL
Not archived · Council Link
GONSALVEZ
Public Comment
Not archived · Council Link
GROUND FLOOR PLAN UNITS 18-21
Drawing
Not archived · Council Link
HIGHWAYS AND TRANSPORTATION
Consultee Comment
Not archived · Council Link
HILLBOROUGH BUSINESS PARK - PEER REVIEW RESPONSE
Revised Drawing
Not archived · Council Link
INTERNAL DRAINAGE BOARD
Consultee Comment
Not archived · Council Link
INTERNAL DRAINAGE BOARD
Consultee Comment
Not archived · Council Link
KCC ARCHAEOLOGY
Consultee Comment
Not archived · Council Link
KCC FLOOD
Consultee Comment
Not archived · Council Link
KCC FLOOD AND WATER
Consultee Comment
Not archived · Council Link
KCC- HIGHWAYS
Consultee Comment
Not archived · Council Link
KENNETH RICE
Public Comment
Not archived · Council Link
LAND CONTAMINATION ASSESSMENT
Associated Document
Not archived · Council Link
LAND CONTAMINATION ASSESSMENT
Associated Document
Not archived · Council Link
LETTER RE PEDESTRIAN ACCESS
Associated Document
Not archived · Council Link
MISS EVIE ARCHER
Public Comment
Not archived · Council Link
MISS HOLLY CHEESEMAN
Public Comment
Not archived · Council Link
MISS KATIE WARWICK
Public Comment
Not archived · Council Link
MR ADAM REVELEY
Public Comment
Not archived · Council Link
MR BARRY CARR
Public Comment
Not archived · Council Link
MR BEN KELLETT
Public Comment
Not archived · Council Link
MR BEN KELLETT
Public Comment
Not archived · Council Link
MR BENJAMIN CLACY
Public Comment
Not archived · Council Link
MR JACK FOAD
Public Comment
Not archived · Council Link
MR JUSTIN RATTENBURY
Public Comment
Not archived · Council Link
MR L SMITH
Public Comment
Not archived · Council Link
MR MARK FENDLEY
Public Comment
Not archived · Council Link
MR TONY NEWMAN
Public Comment
Not archived · Council Link
MRS A INGRAM
Public Comment
Not archived · Council Link
MRS ANNICK TRESLOVE
Public Comment
Not archived · Council Link
MRS GAIL OWEN
Public Comment
Not archived · Council Link
MRS JUNE ANITA BILLINGS
Public Comment
Not archived · Council Link
MRS VIRGINIA TILBROOK
Public Comment
Not archived · Council Link
MRS VIRGINIA TILBROOK
Public Comment
Not archived · Council Link
NOISE ASSESSMENT
Associated Document
Not archived · Council Link
NOISE ASSESSMENT
Associated Document
Not archived · Council Link
OS Extract
OS Extract
Not archived · Council Link
PEDESTRIAN ACCESS
Associated Document
Not archived · Council Link
Planning Statement
Planning Statement
Not archived · Council Link
PROPOSED ELEVATIONS UNIT 18-21
Drawing
Not archived · Council Link
PROPOSED ELEVATIONS UNIT 22 & 23
Drawing
Not archived · Council Link
PROPOSED ELEVATIONS UNITS 1,2&3
Superseded
Not archived · Council Link
PROPOSED ELEVATIONS UNITS 10,11,12&13
Drawing
Not archived · Council Link
PROPOSED ELEVATIONS UNITS 14,15,16&17
Superseded
Not archived · Council Link
PROPOSED ELEVATIONS UNITS 4,5,6&7
Superseded
Not archived · Council Link
PROPOSED ELEVATIONS UNITS 8 & 9
Superseded
Not archived · Council Link
PROPOSED FLOORS PLANS UNIT 1,2&3
Superseded
Not archived · Council Link
PROPOSED GROUND FLOOR PLAN UNITS 14,15,16&17
Drawing
Not archived · Council Link
PROPOSED LAYOUT PLAN
Superseded
Not archived · Council Link
PROPOSED ROOF PLAN UNITS 1-3
Superseded
Not archived · Council Link
PROPOSED ROOF PLAN UNITS 10-13
Drawing
Not archived · Council Link
PROPOSED ROOF PLAN UNITS 14-17
Drawing
Not archived · Council Link
PROPOSED ROOF PLAN UNITS 18 - 21
Drawing
Not archived · Council Link
PROPOSED ROOF PLAN UNITS 22-23
Drawing
Not archived · Council Link
PROPOSED ROOF PLAN UNITS 4-7
Superseded
Not archived · Council Link
PROPOSED ROOF PLAN UNITS 8-9
Superseded
Not archived · Council Link
PROPOSED SECTIONS
Drawing
Not archived · Council Link
PROPOSED SECTIONS
Drawing
Not archived · Council Link
PROPOSED SECTIONS
Drawing
Not archived · Council Link
PROPOSED SECTIONS
Drawing
Not archived · Council Link
PROPOSED SECTIONS
Superseded
Not archived · Council Link
PROPOSED SECTIONS
Drawing
Not archived · Council Link
SECTION - PROPOSED
Drawing
Not archived · Council Link
SOUTHERN WATER
Consultee Comment
Not archived · Council Link
SOUTHERN WATER
Consultee Comment
Not archived · Council Link
SOUTHERN WATER MAPS
Consultee Comment
Not archived · Council Link
TRANSPORT ASSESSMENT
Associated Document
Not archived · Council Link
TRANSPORT TECHNICAL NOTE
Revised Drawing
Not archived · Council Link

Take Action

Make your voice heard. Authorities need to hear from people who support new homes.

✉️ Write Email in Support View on Council Portal