← Back to Canterbury City Council

Status

Awaiting decision New housing
Received
n/a
New dwellings
1

Summary

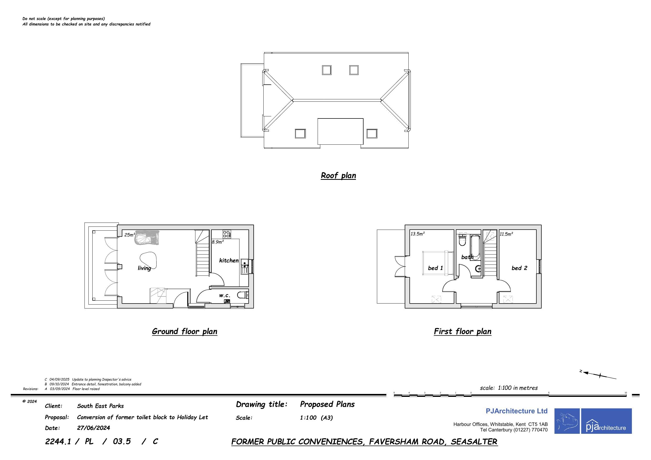
Build detached two-storey holiday accommodation following demolition of existing building.

Full Proposal

Detached two-storey residential holiday accommodation following demolition of existing building.

Documents

& PROPOSED BLOCK PLAN
OS Extract
Not archived · Council Link
APPLICATION FORM - WITHOUT PERSONAL DATA
Application Form
Not archived · Council Link
APPROPRIATE ASSESSMENT SWALE AND THANET
Associated Document
Not archived · Council Link
DOREEN GAVIN
Public Comment
Not archived · Council Link
EXISTING ELEVATIONS
Drawing
Not archived · Council Link
EXISTING FLOOR PLAN
Drawing
Not archived · Council Link
FLOOD RISK ASSESSMENT
Associated Document
Not archived · Council Link
FORM 1
CIL
Not archived · Council Link
MR KEITH PERKINS
Public Comment
Not archived · Council Link
MRS ELIZABETH SOUTHAM
Public Comment
Not archived · Council Link
MRS ELVA MILES
Public Comment
Not archived · Council Link
MRS LYNNE FORRESTER
Public Comment
Not archived · Council Link
PERSPECTIVE VIEW
Drawing
Not archived · Council Link
Photo
Photo
Not archived · Council Link
Planning Statement
Planning Statement
Not archived · Council Link
PRELIMINARY ECOLOGICAL ASSESSMENT
Associated Document
Not archived · Council Link
PROPOSED ELEVATIONS
Drawing
Not archived · Council Link
Drawing
Archived · Council Link
Drawing
Archived · Council Link
Drawing
Archived · Council Link
SOUTHERN WATER
Consultee Comment
Not archived · Council Link
SOUTHERN WATER MAPS
Consultee Comment
Not archived · Council Link
SPECIAL PROTECTION AREA STATEMENT
Associated Document
Not archived · Council Link

Take Action

Make your voice heard. Authorities need to hear from people who support new homes.

✉️ Write Email in Support View on Council Portal