← Back to Canterbury City Council

Status

Awaiting decision House extension
Received
n/a
New dwellings
0

Full Proposal

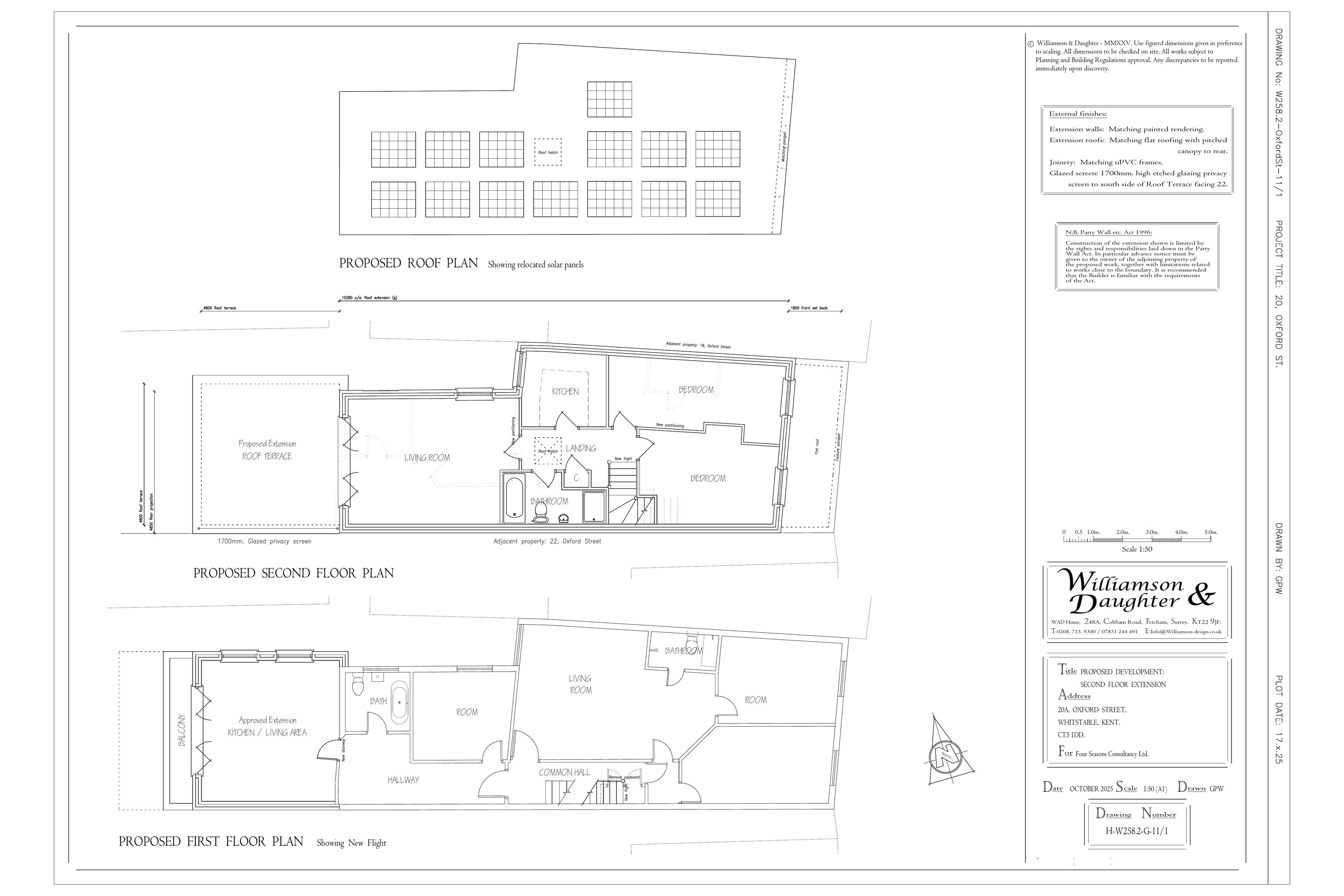
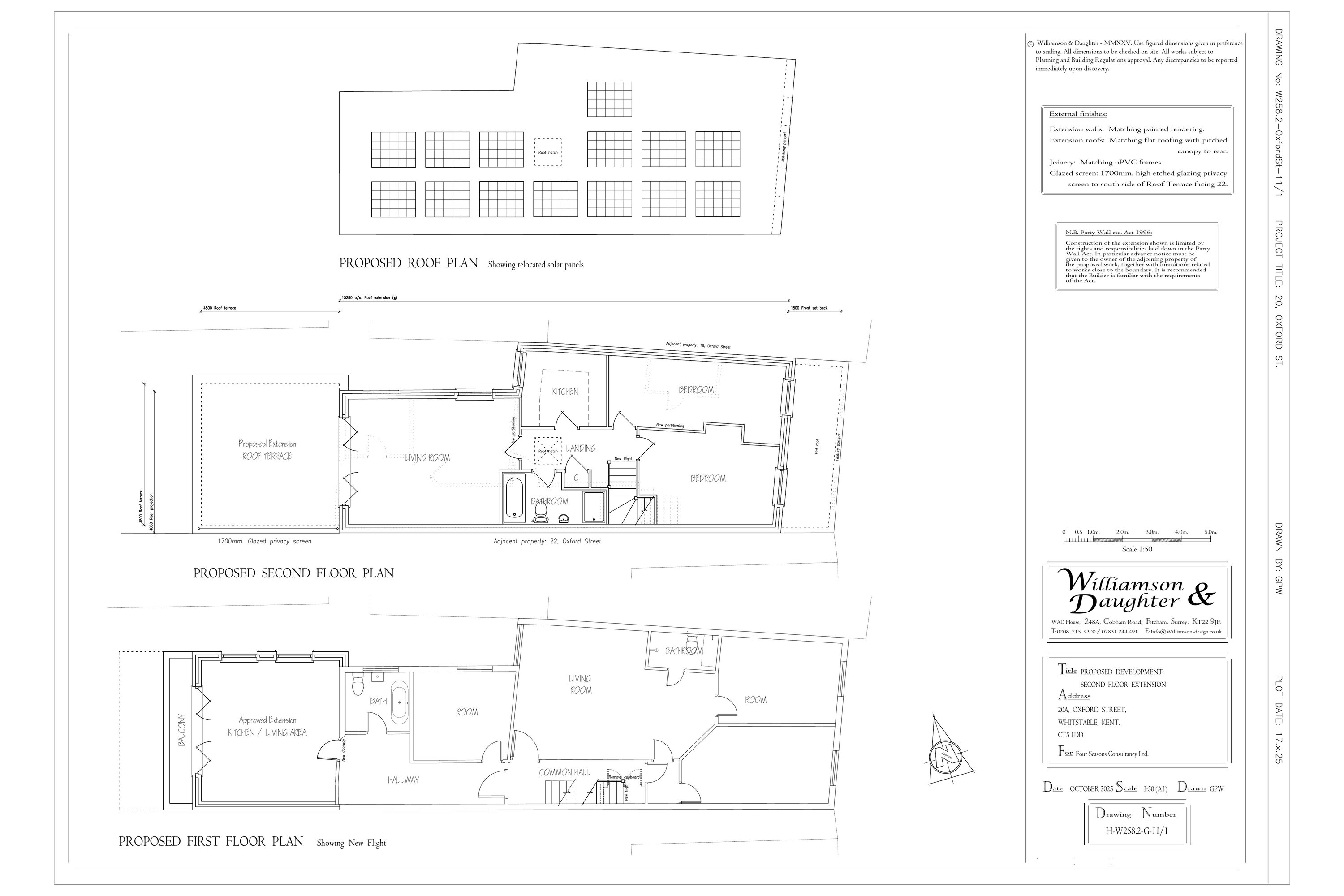
Three storey rear extension together with fourth storey extension (appearing as second storey extension from front elevation) to provide additional residential dwelling.

Documents

APPLICATION FORM - WITHOUT PERSONAL DATA
Application Form
Not archived · Council Link
BLOCK PLAN
Drawing
Not archived · Council Link
CLLR STUART HEAVER
Public Comment
Not archived · Council Link
CONCERNED RESIDENT AND NEIGHBOUR
Public Comment
Not archived · Council Link
DESIGN AND ACCESS STATEMENT AND HERITAGE STATEMENT
Design and Access
Not archived · Council Link
DR RICARDA VIDAL
Public Comment
Not archived · Council Link
EXISTING ELEVATIONS
Revised Drawing
Not archived · Council Link
EXISTING FLOOR PLAN
Revised Drawing
Not archived · Council Link
EXISTING FLOOR PLANS
Drawing
Not archived · Council Link
FLOOD RISK ASSESSMENT
Associated Document
Not archived · Council Link
FORM 1
CIL
Not archived · Council Link
MR ANTOINE BOO
Public Comment
Not archived · Council Link
MR JAMIE TREMELLING
Public Comment
Not archived · Council Link
MR TERENCE ALLEN
Public Comment
Not archived · Council Link
MRS CAROLINE TREMELLING
Public Comment
Not archived · Council Link
MRS KATARIINA KERR
Public Comment
Not archived · Council Link
MS LISA THI
Public Comment
Not archived · Council Link
MS RICHA G
Public Comment
Not archived · Council Link
MS THI NGUYEN
Public Comment
Not archived · Council Link
MS TIZIANA MAZZOLI
Public Comment
Not archived · Council Link
OS Extract
OS Extract
Not archived · Council Link
PROPOSED ELEVATIONS
Drawing
Not archived · Council Link
Drawing
Archived · Council Link

Take Action

Make your voice heard. Authorities need to hear from people who support new homes.

✉️ Write Email in Support View on Council Portal