← Back to Canterbury City Council

Status

Awaiting decision New housing
Received
n/a
New dwellings
1

Full Proposal

Two-storey detached dwelling, and subsequent demolition of existing dwelling

Documents

APPLICATION FORM - WITHOUT PERSONAL DATA
Application Form
Not archived · Council Link
COMMUNITY INFRASTRUCTURE LEVY - COMPLETED FORM
CIL
Not archived · Council Link
DESIGN AND ACCESS STATEMENT
Design and Access
Not archived · Council Link
ENVIRONMENT AGENCY
Consultee Comment
Not archived · Council Link
EXISTING ELEVATIONS
Drawing
Not archived · Council Link
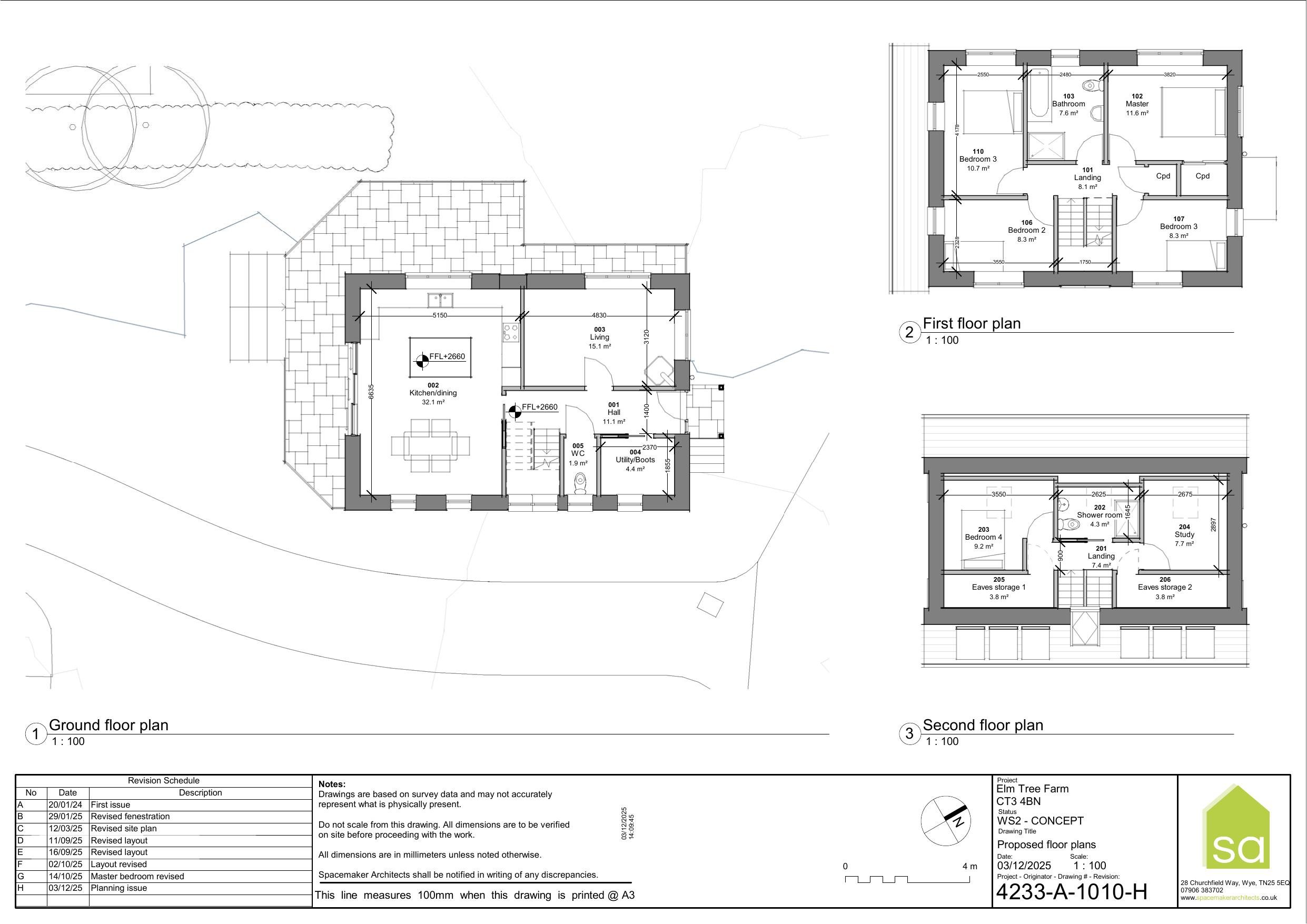
EXISTING FLOOR PLANS
Drawing
Not archived · Council Link
Drawing
Archived · Council Link
FLOOD RISK ASSESSMENT
Associated Document
Not archived · Council Link
KCC HIGHWAYS
Consultee Comment
Not archived · Council Link
PROPOSED ELEVATIONS
Drawing
Not archived · Council Link
Drawing
Archived · Council Link
Drawing
Archived · Council Link
SOUTHERN WATER
Consultee Comment
Not archived · Council Link
SOUTHERN WATER
Consultee Comment
Not archived · Council Link
SUSTAINABILITY STATEMENT
Associated Document
Not archived · Council Link
THE LOCATION PLAN
OS Extract
Not archived · Council Link

Take Action

Make your voice heard. Authorities need to hear from people who support new homes.

✉️ Write Email in Support View on Council Portal