← Back to Canterbury City Council

Status

Awaiting decision Commercial
Received
n/a
New dwellings
0

Full Proposal

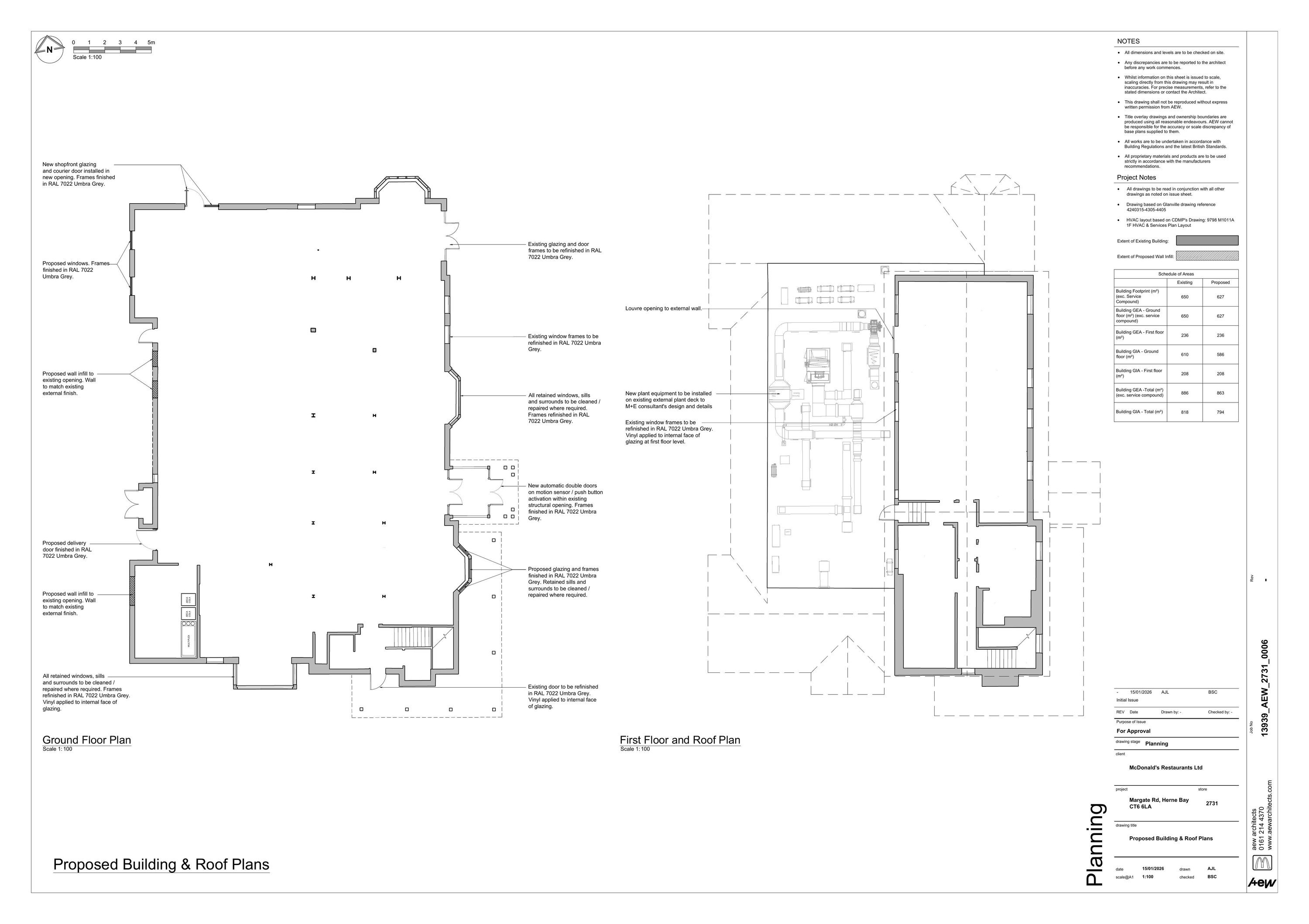
Proposed alterations to fenestrations at ground and first floor levels of existing restaurant; replacement cladding; installation of new and replacement plant to first floor flat roof; erection of rear refuse service enclosure following demolition of existing single storey rear extension; alterations to parking, landscaping and boundary treatments.

Documents

APPLICATION FORM - WITHOUT PERSONAL DATA
Application Form
Not archived · Council Link
BIODIVERSITY METRIC CALCULATION TOOL
Associated Document
Not archived · Council Link
BIODIVERSITY METRIC CALCULATION TOOL
Associated Document
Not archived · Council Link
BIODIVERSITY SURVEY AND REPORT
Associated Document
Not archived · Council Link
COMMUNITY INFRASTRUCTURE LEVY - COMPLETED FORM
CIL
Not archived · Council Link
ENVIRONMENTAL HEALTH
Consultee Comment
Not archived · Council Link
EXISTING BUILDING AND ROOF DEMOLITION PLANS
Drawing
Not archived · Council Link
EXISTING BUILDING WORKS DEMOLITION ELEVATIONS
Drawing
Not archived · Council Link
EXISTING ELEVATIONS
Drawing
Not archived · Council Link
EXISTING FLOOR PLANS
Drawing
Not archived · Council Link
EXISTING SITE DEMOLITION WORKS PLANS
Drawing
Not archived · Council Link
Drawing
Archived · Council Link
FIRST FLOOR SERVICES BUILDER WORK LAYOUT
Drawing
Not archived · Council Link
FIRST FLOOR SERVICES PLAN LAYOUT
Drawing
Not archived · Council Link
GROUND FLOOR SERVICES PLAN LAYOUT
Drawing
Not archived · Council Link
NOISE IMPACT ASSESSMENT
Associated Document
Not archived · Council Link
ODOUR CONTROL ASSESSMENT
Associated Document
Not archived · Council Link
OUTSIDE BIN SPECS
Associated Document
Not archived · Council Link
OUTSIDE TABLE AND CHAIRS PLANS
Associated Document
Not archived · Council Link
PLANNING STATEMENT
Planning Statement
Not archived · Council Link
PROPOSED BLOCK PLAN
Drawing
Not archived · Council Link
PROPOSED BOUNDARY TREATMENT
Drawing
Not archived · Council Link
PROPOSED BUILDING ELEVATIONS
Drawing
Not archived · Council Link
PROPOSED CYCLE STAND PLANS
Drawing
Not archived · Council Link
PROPOSED FENCE PLANS
Drawing
Not archived · Council Link
Drawing
Archived · Council Link
PROPOSED SECTIONS
Drawing
Not archived · Council Link
Drawing
Archived · Council Link
PROPOSED SURFACE FINISHES PLANS
Drawing
Not archived · Council Link
THE LOCATION PLAN
OS Extract
Not archived · Council Link

Take Action

Make your voice heard. Authorities need to hear from people who support new homes.

✉️ Write Email in Support View on Council Portal