← Back to Cardiff Council

Status

Registered Commercial
Received
21 Jan 2025
New dwellings
0

Full Proposal

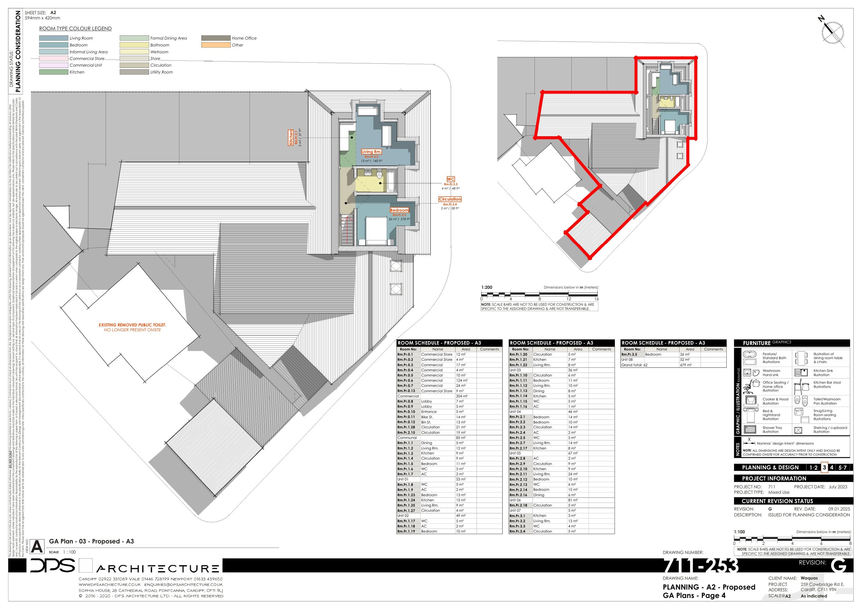
Renovation and extension of an existing commercial building and the creation of new apartments. Revised Commercial area to include for A1, A2 and A3.

Documents

APPLICATIONFORMREDACTED
Application Form
Not archived · Council Link
DESIGN STATEMENT
Supporting Documents
Not archived · Council Link
EXISTING ELEVATIONS
Plans/Drawings
Not archived · Council Link
EXISTING FLOOR PLANS - 1
Plans/Drawings
Not archived · Council Link
EXISTING FLOOR PLANS - 2
Plans/Drawings
Not archived · Council Link
EXISTING STREETSCENE ELEVATION
Plans/Drawings
Not archived · Council Link
FLOOD CONSEQUENCE ASSESSMENT
Flood Consequence Assessment
Not archived · Council Link
GREEN INFRASTRUCTURE STATEMENT
Supporting Documents
Not archived · Council Link
PROPOSED ELEVATIONS
Plans/Drawings
Not archived · Council Link
Plans/Drawings
Archived · Council Link
Plans/Drawings
Archived · Council Link
Plans/Drawings
Archived · Council Link
Plans/Drawings
Archived · Council Link
PROPOSED STREETSCENE ELEVATION
Plans/Drawings
Not archived · Council Link
Site Location Plan
Archived · Council Link

Take Action

Make your voice heard. Authorities need to hear from people who support new homes.

✉️ Write Email in Support View on Council Portal