← Back to Cardiff Council
Status
Registered
Commercial
Full Proposal
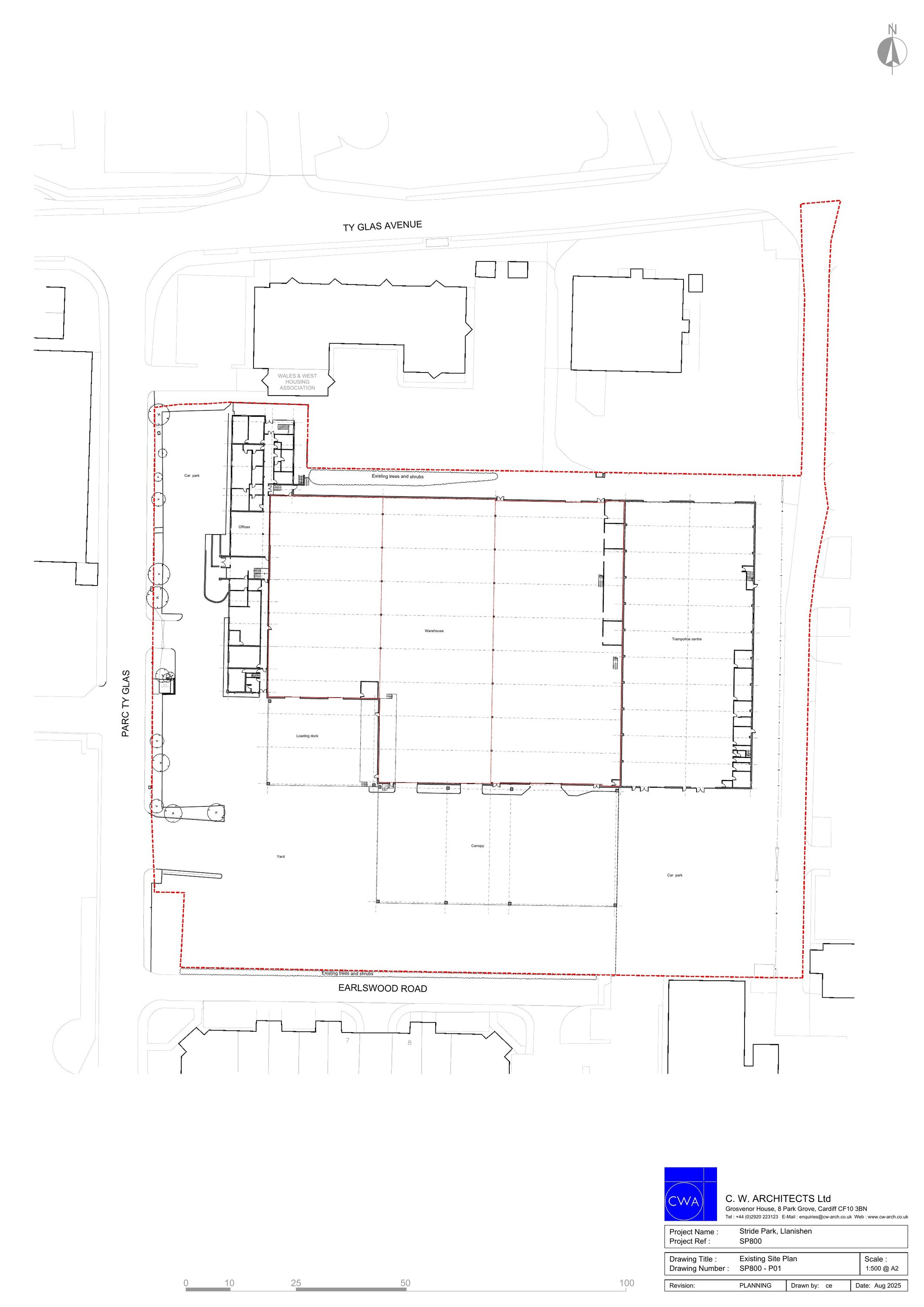
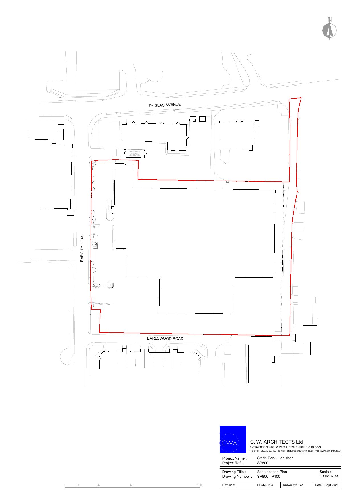
Demolition of the front office block and partial demolition of the warehouse. Partial extension and new-build to provide a mixed-use scheme comprising of B1, B2, B8 and D2 uses with associated landscaping, car park and yard space.
Documents
APPLICATIONFORMREDACTED
Application Form
DESIGN AND ACCESS STATEMENT (COMPRESSED)
Supporting Documents
EXISTING ELEVATIONS
Plans/Drawings
EXISTING ELEVATIONS
Plans/Drawings
EXISTING ELEVATIONS
Plans/Drawings
EXISTING FIRST FLOOR PLAN - PART 1
Plans/Drawings
EXISTING FIRST FLOOR PLAN - PART 2
Plans/Drawings
EXISTING FIRST FLOOR PLAN - WHOLE
Plans/Drawings
EXISTING GROUND FLOOR PLAN - PART 1
Plans/Drawings
EXISTING GROUND FLOOR PLAN - PART 2
Plans/Drawings
EXISTING GROUND FLOOR PLAN - PART 3
Plans/Drawings
EXISTING GROUND FLOOR PLAN - PART 4
Plans/Drawings
EXISTING GROUND FLOOR PLAN - WHOLE
Plans/Drawings
EXISTING ROOF PLAN
Plans/Drawings
EXISTING SECTION A-A
Plans/Drawings
EXISTING SECTION B-B
Plans/Drawings
FLOOD RISK ASSESSMENT
Supporting Documents
GREEN INFRASTRUCTURE STATEMENT
Supporting Documents
LANDSCAPE PROPOSALS
Plans/Drawings
PERIMETER HEDGE GROUND PREPARATION
Plans/Drawings
PLANT SCHEDULES
Plans/Drawings
PLANT SPECIFICATION
Plans/Drawings
PRE-APPLICATION CONSULTATION REPORT
Supporting Documents
PRELIMINARY ECOLOGICAL ASSESSMENT
Supporting Documents
PROPOSED ELEVATIONS
Plans/Drawings
PROPOSED ELEVATIONS
Plans/Drawings
PROPOSED ELEVATIONS
Plans/Drawings
PROPOSED ELEVATIONS
Plans/Drawings
PROPOSED FIRST FLOOR PLAN - PART 1
Plans/Drawings
PROPOSED FIRST FLOOR PLAN - PART 2
Plans/Drawings
PROPOSED FIRST FLOOR PLAN - WHOLE
Plans/Drawings
PROPOSED GROUND FLOOR PLAN - PART 1
Plans/Drawings
PROPOSED GROUND FLOOR PLAN - PART 2
Plans/Drawings
PROPOSED GROUND FLOOR PLAN - PART 3
Plans/Drawings
PROPOSED GROUND FLOOR PLAN - PART 4
Plans/Drawings
PROPOSED GROUND FLOOR PLAN - WHOLE
Plans/Drawings
PROPOSED ROOF PLAN
Plans/Drawings
PROPOSED SECTION A-A
Plans/Drawings
PROPOSED SECTION B-B
Plans/Drawings
TRANSPORT STATEMENT
Supporting Documents
TRANSPORT STATEMENT
Supporting Documents
TREE CONSTRAINTS PLAN
Plans/Drawings
TREE PIT IN RAIN GARDEN DETAIL
Plans/Drawings
TREE SURVEY
Supporting Documents
Take Action
Make your voice heard. Authorities need to hear from people who support new homes.