← Back to Cardiff Council

Status

Registered Demolition
Received
26 Sep 2025
New dwellings
0

Full Proposal

Partial demolition and replacement of existing dwelling.

Documents

APPLICATIONFORMREDACTED
Application Form
Not archived · Council Link
EXISTING CONTEXTUAL ELEVATION
Drawing
Not archived · Council Link
EXISTING ELEVATIONS - COLOURED
Drawing
Not archived · Council Link
EXISTING FLOOR PLANS
Drawing
Not archived · Council Link
EXISTING FRONT AND SIDE ELEVATIONS
Drawing
Not archived · Council Link
EXISTING REAR AND SIDE ELEVATIONS
Drawing
Not archived · Council Link
EXISTING ROOF PLAN
Drawing
Not archived · Council Link
Drawing
Archived · Council Link
FLOOD CONSEQUENCES ASSESSMENT
Flood Consequence Assessment
Not archived · Council Link
PROPOSED CONTEXTUAL ELEVATION
Drawing
Not archived · Council Link
PROPOSED DEMOLITION PLAN
Drawing
Not archived · Council Link
PROPOSED ELEVATIONS - COLOURED
Drawing
Not archived · Council Link
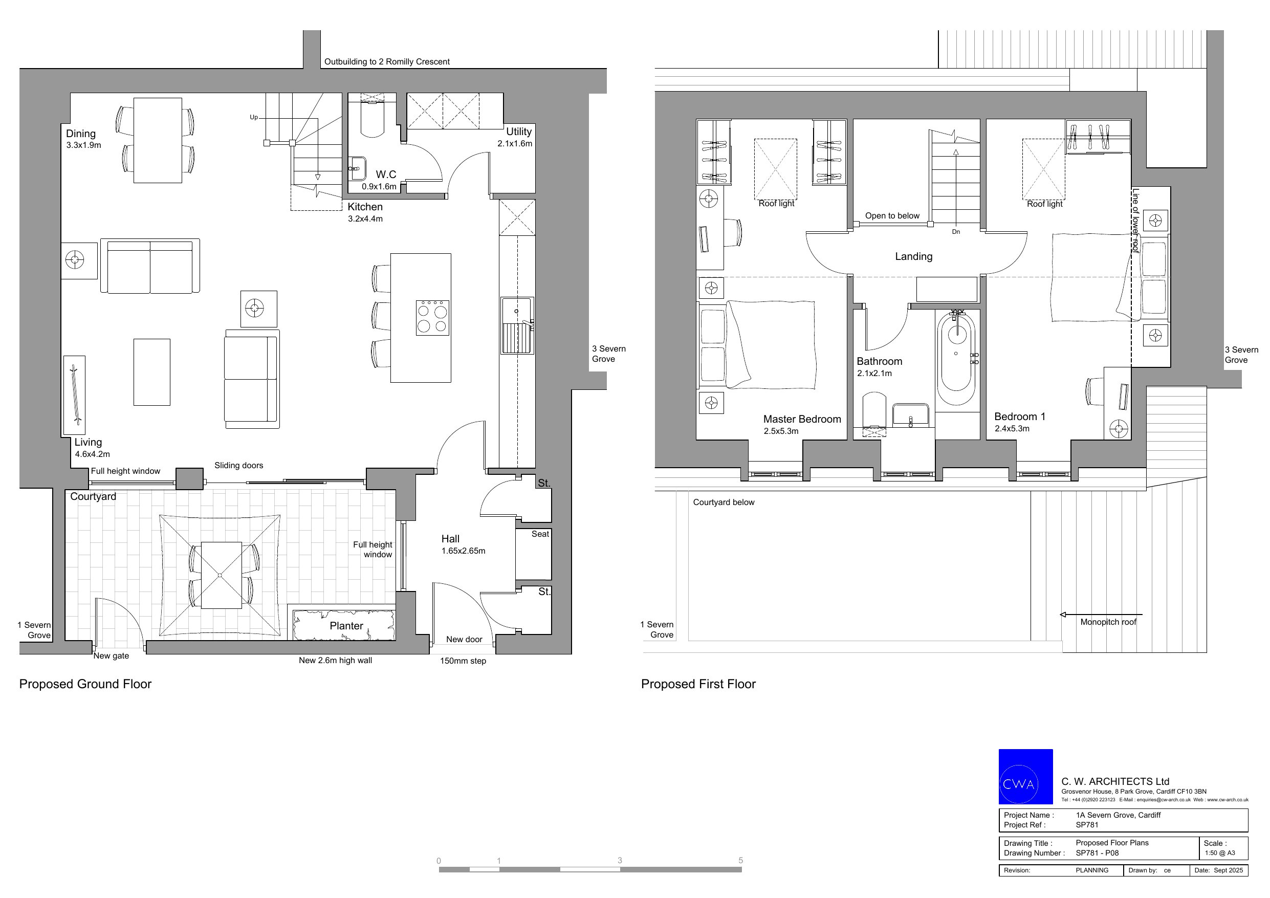
Drawing
Archived · Council Link
PROPOSED FRONT AND SIDE ELEVATIONS
Drawing
Not archived · Council Link
PROPOSED REAR AND SIDE ELEVATIONS
Drawing
Not archived · Council Link
PROPOSED ROOF PLAN
Drawing
Not archived · Council Link
PROPOSED SECTION A-A
Drawing
Not archived · Council Link
Drawing
Archived · Council Link
Site Location Plan
Archived · Council Link
SP781 - DESIGN AND ACCESS STATEMENT
Design and Access Statement
Not archived · Council Link
SP781 - FCA COVER LETTER
Correspondence
Not archived · Council Link
SP781 - HEIRTAGE IMPACT STATEMENT
Supporting Documents
Not archived · Council Link

Take Action

Make your voice heard. Authorities need to hear from people who support new homes.

✉️ Write Email in Support View on Council Portal