← Back to Cardiff Council

Status

Registered House extension
Received
10 Oct 2025
New dwellings
0

Full Proposal

Two storey rear extension to create two flats with external alterations to the property.

Documents

APPLICATIONFORMREDACTED
Application Form
Not archived · Council Link
DESIGN STATEMENT
Supporting Documents
Not archived · Council Link
EXISTING ELEVATION - A
Plans/Drawings
Not archived · Council Link
EXISTING ELEVATION - B
Plans/Drawings
Not archived · Council Link
EXISTING FIRST FLOOR PLAN
Plans/Drawings
Not archived · Council Link
EXISTING FRONT ELEVATION
Plans/Drawings
Not archived · Council Link
EXISTING GROUND FLOOR PLAN
Plans/Drawings
Not archived · Council Link
EXISTING REAR ELEVATION
Plans/Drawings
Not archived · Council Link
EXISTING SECOND FLOOR PLAN
Plans/Drawings
Not archived · Council Link
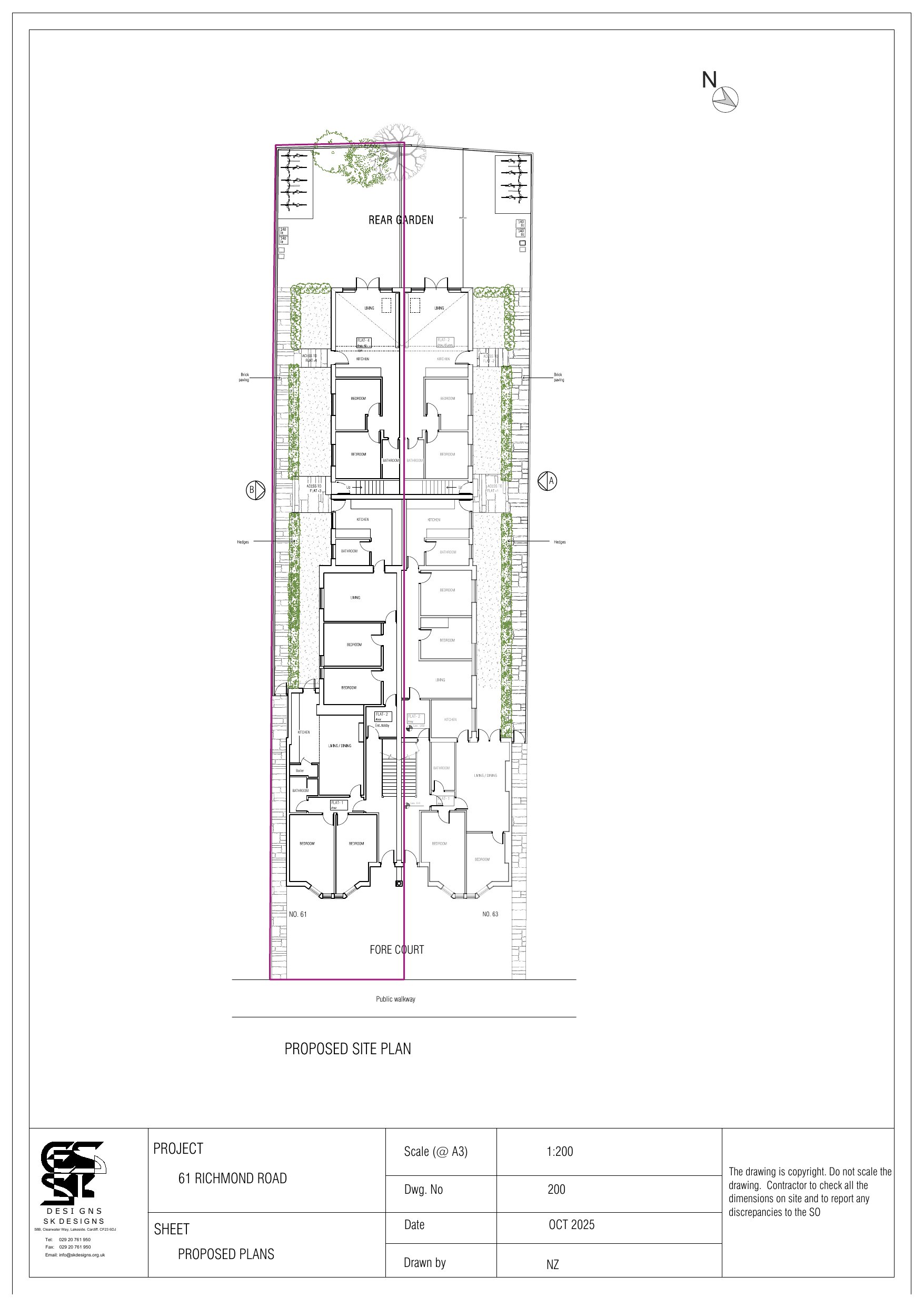
Plans/Drawings
Archived · Council Link
GREEN INFRASTRUCTURE STATEMENT
Supporting Documents
Not archived · Council Link
PROPOSED FIRST FLOOR PLAN
Plans/Drawings
Not archived · Council Link
PROPOSED FRONT ELEVATION
Plans/Drawings
Not archived · Council Link
PROPOSED GROUND FLOOR PLAN
Plans/Drawings
Not archived · Council Link
PROPOSED REAR ELEVATION
Plans/Drawings
Not archived · Council Link
PROPOSED ROOF PLAN
Plans/Drawings
Not archived · Council Link
PROPOSED SIDE ELEVATION
Plans/Drawings
Not archived · Council Link
Plans/Drawings
Archived · Council Link
Site Location Plan
Archived · Council Link

Take Action

Make your voice heard. Authorities need to hear from people who support new homes.

✉️ Write Email in Support View on Council Portal