← Back to Cardiff Council

Status

Registered New housing
Received
15 Oct 2025
New dwellings
1

Full Proposal

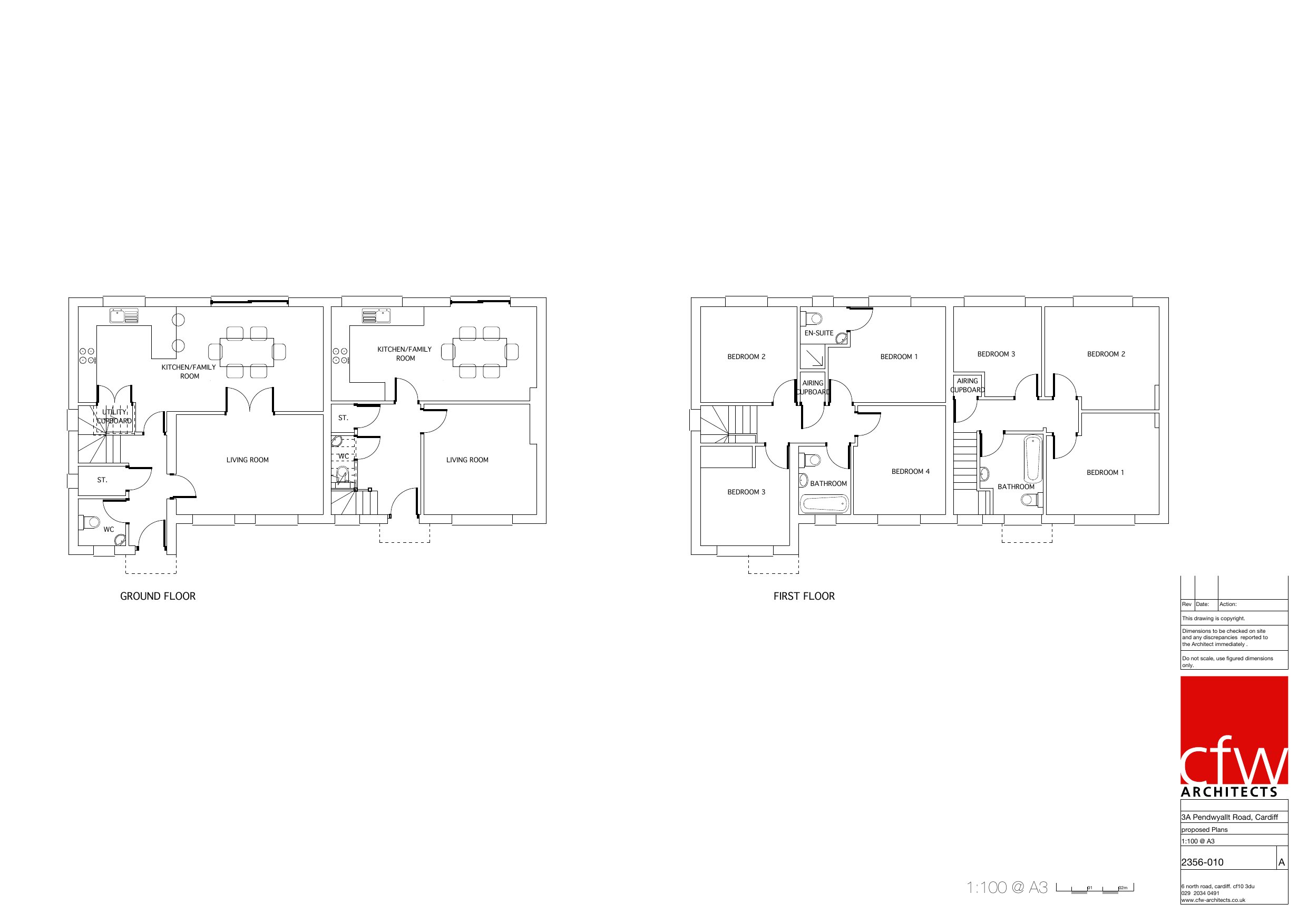
Separation of existing dwelling house to create two semi-detached properties, demolition of existing garage, creation of new first floor side extension and associated external works.

Documents

APPLICATIONFORMREDACTED
Application Form
Not archived · Council Link
EXISTING ELEVATIONS
Plans/Drawings
Not archived · Council Link
EXISTING FLOOR PLANS
Plans/Drawings
Not archived · Council Link
Plans/Drawings
Archived · Council Link
OBJECTION-JANICE HUGHES
Objection Comment
Not archived · Council Link
PROPOSED ELEVATION
Plans/Drawings
Not archived · Council Link
Plans/Drawings
Archived · Council Link
Superseded
Archived · Council Link
Site Location Plan
Archived · Council Link

Take Action

Make your voice heard. Authorities need to hear from people who support new homes.

✉️ Write Email in Support View on Council Portal