← Back to Cardiff Council

Status

Registered House extension
Received
15 Oct 2025
New dwellings
0

Full Proposal

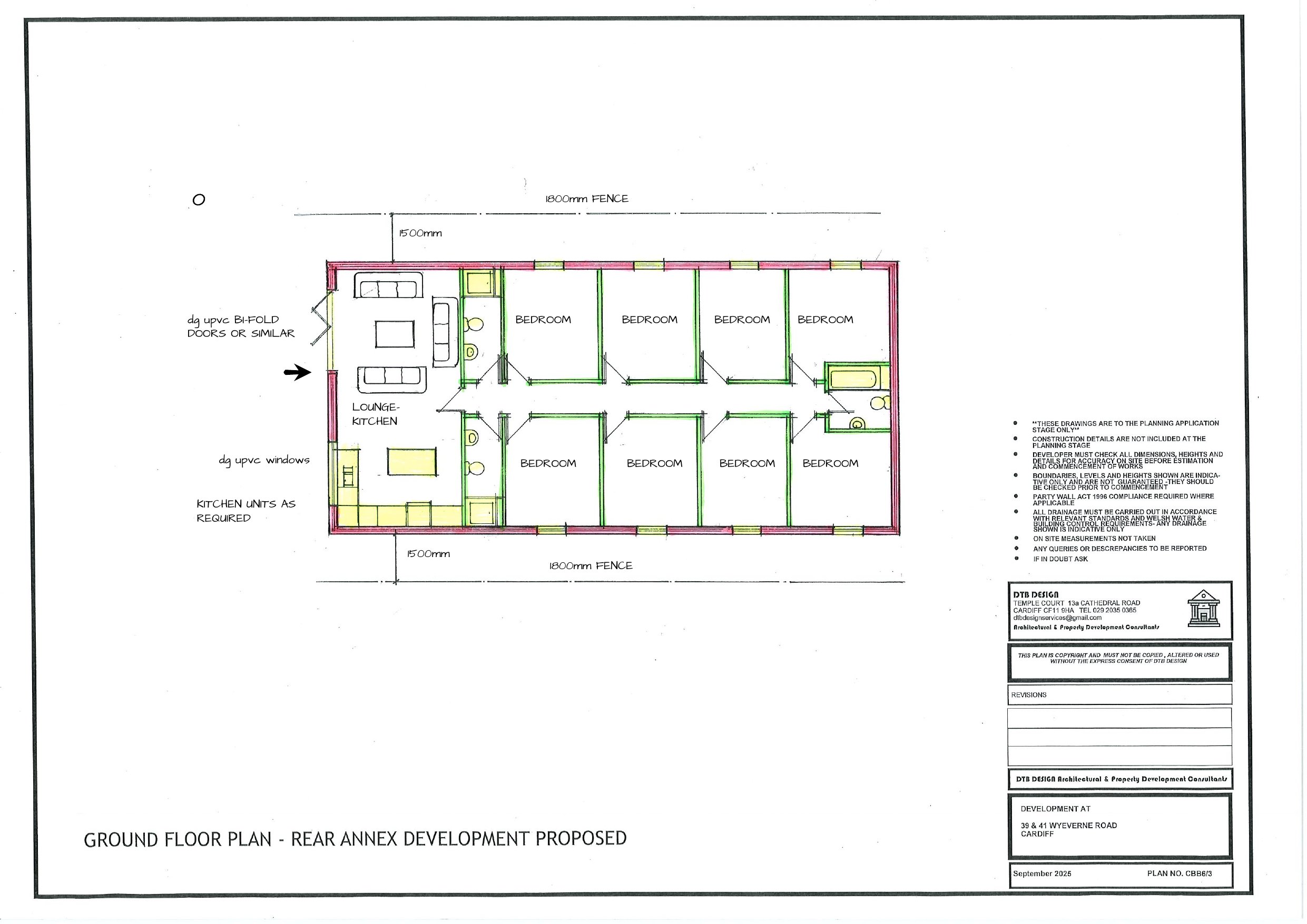
Erection of detached building to house additional bedrooms associated with the existing Sui Generis House in Multiple Occupation at 39 Wyeverne Road.

Documents

APPLICATIONFORMREDACTED
Application Form
Not archived · Council Link
DESIGN STATEMENT
Supporting Documents
Not archived · Council Link
EXISTING FLOOR PLANS
Plans/Drawings
Not archived · Council Link
Plans/Drawings
Archived · Council Link
GREEN INFRASTRUCTURE STATEMENT
Supporting Documents
Not archived · Council Link
Plans/Drawings
Archived · Council Link
PROPOSED SITE LAYOUT
Plans/Drawings
Not archived · Council Link
Site Location Plan
Archived · Council Link

Take Action

Make your voice heard. Authorities need to hear from people who support new homes.

✉️ Write Email in Support View on Council Portal