← Back to Cardiff Council

Status

Registered Change of use
Received
05 Nov 2025
New dwellings
1

Full Proposal

Conversion of existing office space to single residential unit.

Documents

APPLICATIONFORMREDACTED
Application Form
Not archived · Council Link
BLOCK PLAN EXISTING AND PROPOSED
Superseded
Not archived · Council Link
BLOCK PLANS
Amended Plans
Not archived · Council Link
CYCLE SHELTER DETAILS
Additional Information
Not archived · Council Link
DESIGN STATEMENT
Supporting Documents
Not archived · Council Link
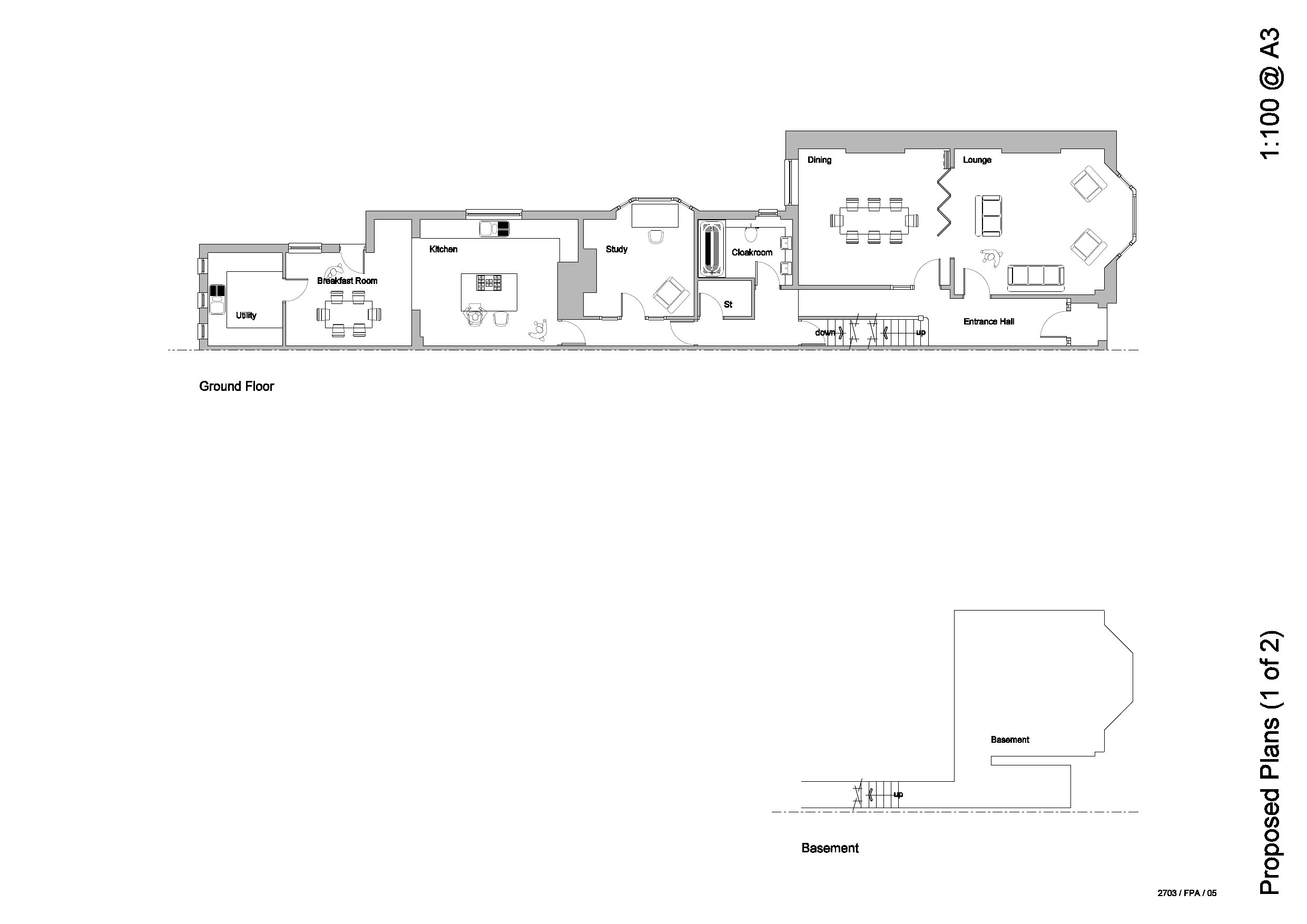
EXISTING FLOOR PLANS - 1
Plans/Drawings
Not archived · Council Link
EXISTING FLOOR PLANS - 2
Plans/Drawings
Not archived · Council Link
GI STATEMENT
Supporting Documents
Not archived · Council Link
Plans/Drawings
Archived · Council Link
Plans/Drawings
Archived · Council Link
Site Location Plan
Archived · Council Link

Take Action

Make your voice heard. Authorities need to hear from people who support new homes.

✉️ Write Email in Support View on Council Portal