25/02756/FUL
Cardiff Council · IDOX
Status
Registered
Industrial
Received
25 Nov 2025
New dwellings
0
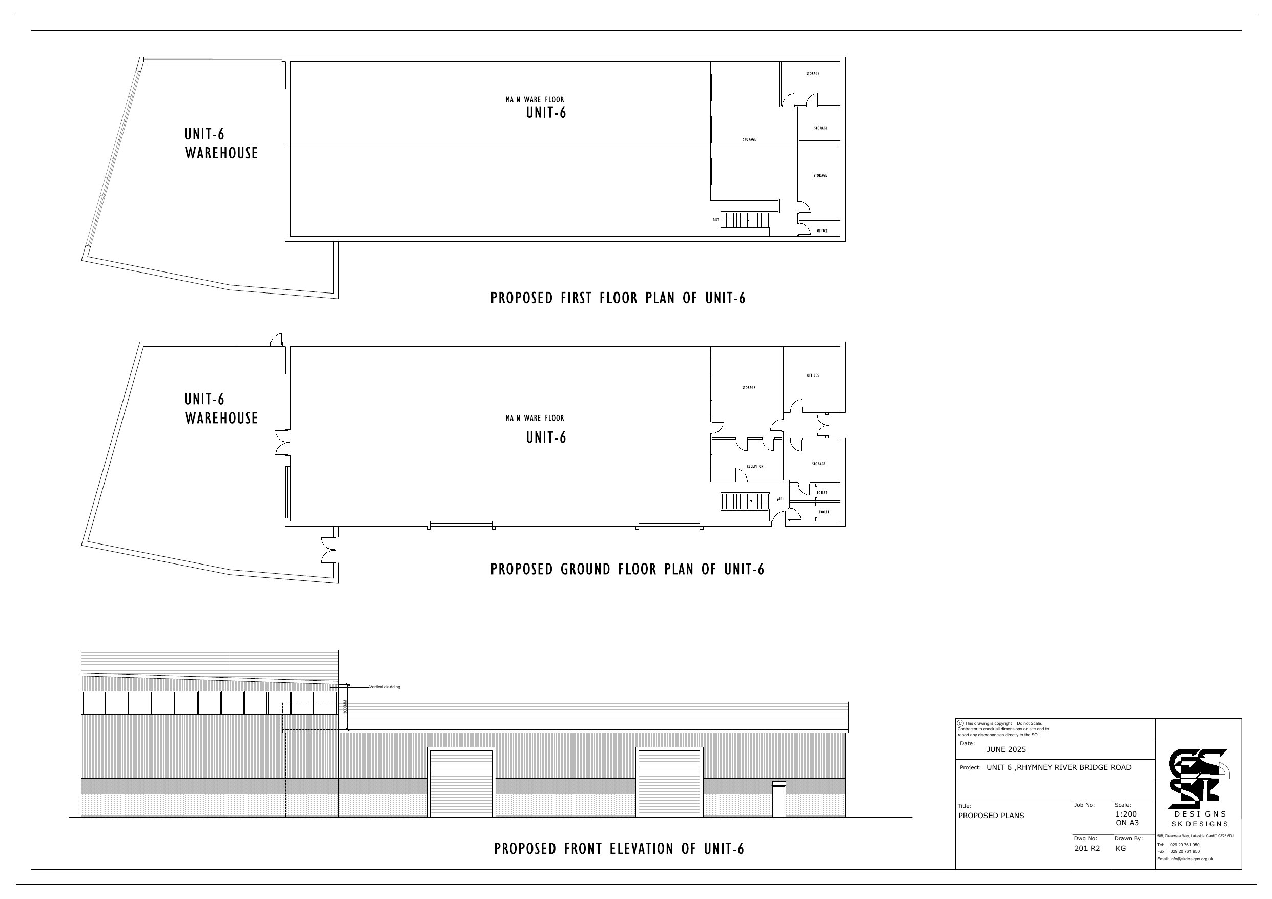
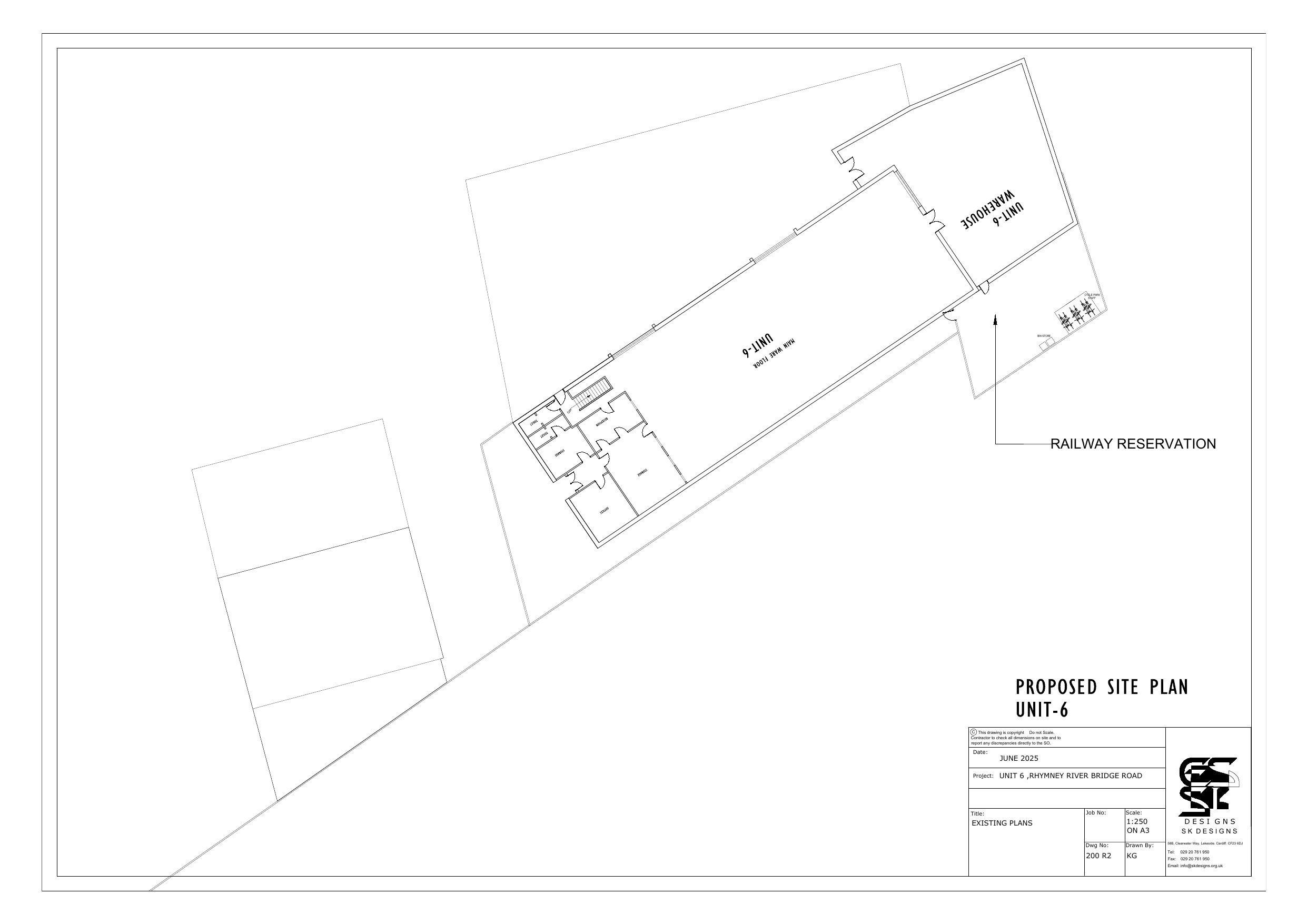
Full Proposal
Rear extension to warehouse.
Documents
Take Action
Make your voice heard. Authorities need to hear from people who support new homes.