← Back to Cardiff Council

Status

Registered Change of use
Received
22 Dec 2025
New dwellings
0

Full Proposal

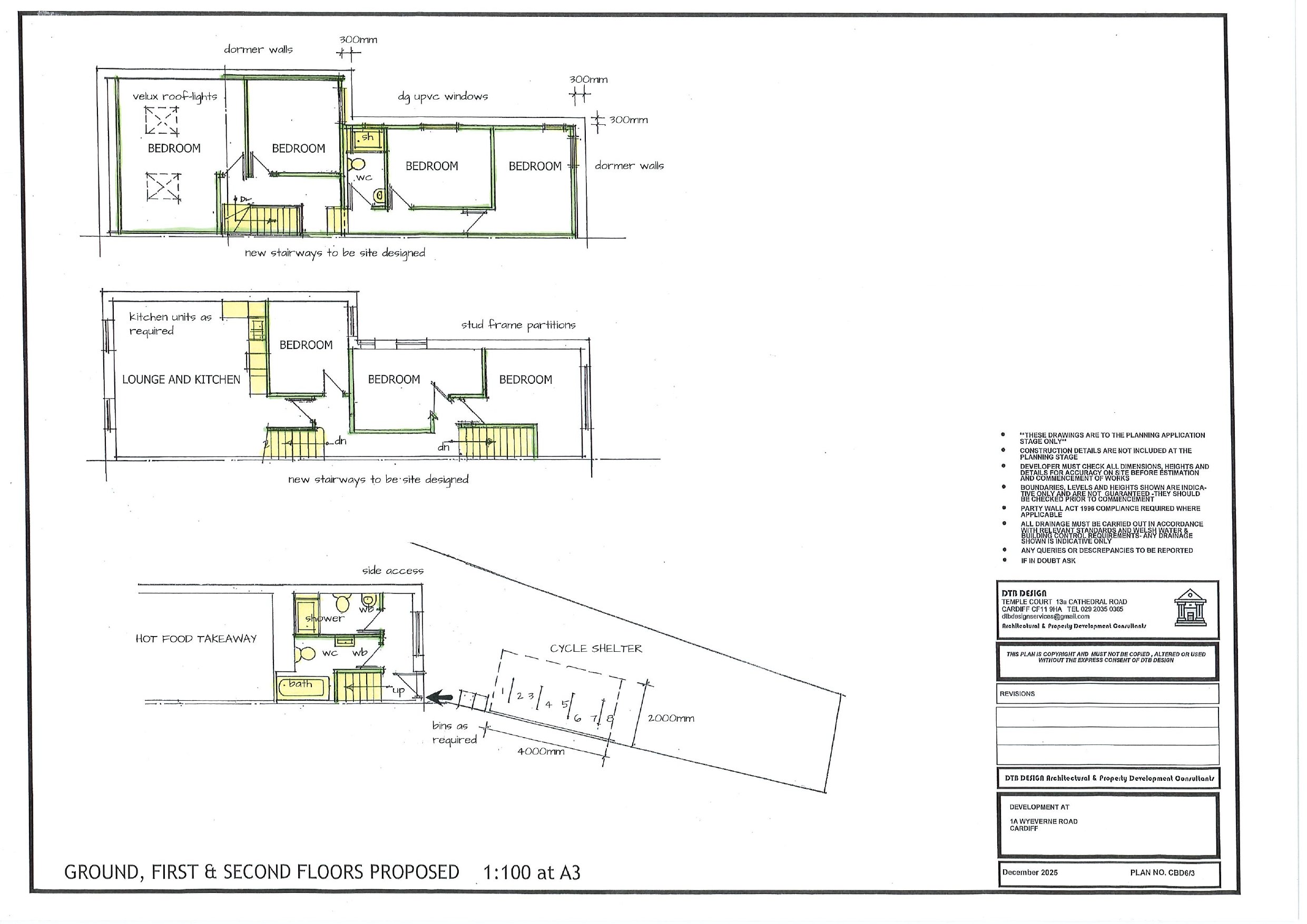
Conversion from a Class C4 House in Multiple Occupation to Large Sui Generis House in Multiple Occupation with rear and side dormer roof extensions.

Documents

APPLICATIONFORMREDACTED
Application Form
Not archived · Council Link
CONCERNS-CLLRS MERRY, WEAVER & MACKIE
Concerns
Not archived · Council Link
DESIGN STATEMENT
Supporting Documents
Not archived · Council Link
EXISTING FLOOR PLANS & ELEVATIONS
Plans/Drawings
Not archived · Council Link
GREEN INFRASTRUCTURE STATEMENT
Supporting Documents
Not archived · Council Link
HMO LICENCE
Supporting Documents
Not archived · Council Link
Plans/Drawings
Archived · Council Link
Site Location Plan
Archived · Council Link
Plans/Drawings
Archived · Council Link

Take Action

Make your voice heard. Authorities need to hear from people who support new homes.

✉️ Write Email in Support View on Council Portal