← Back to Cardiff Council

Status

Registered New housing
Received
26 days ago
New dwellings
1

Full Proposal

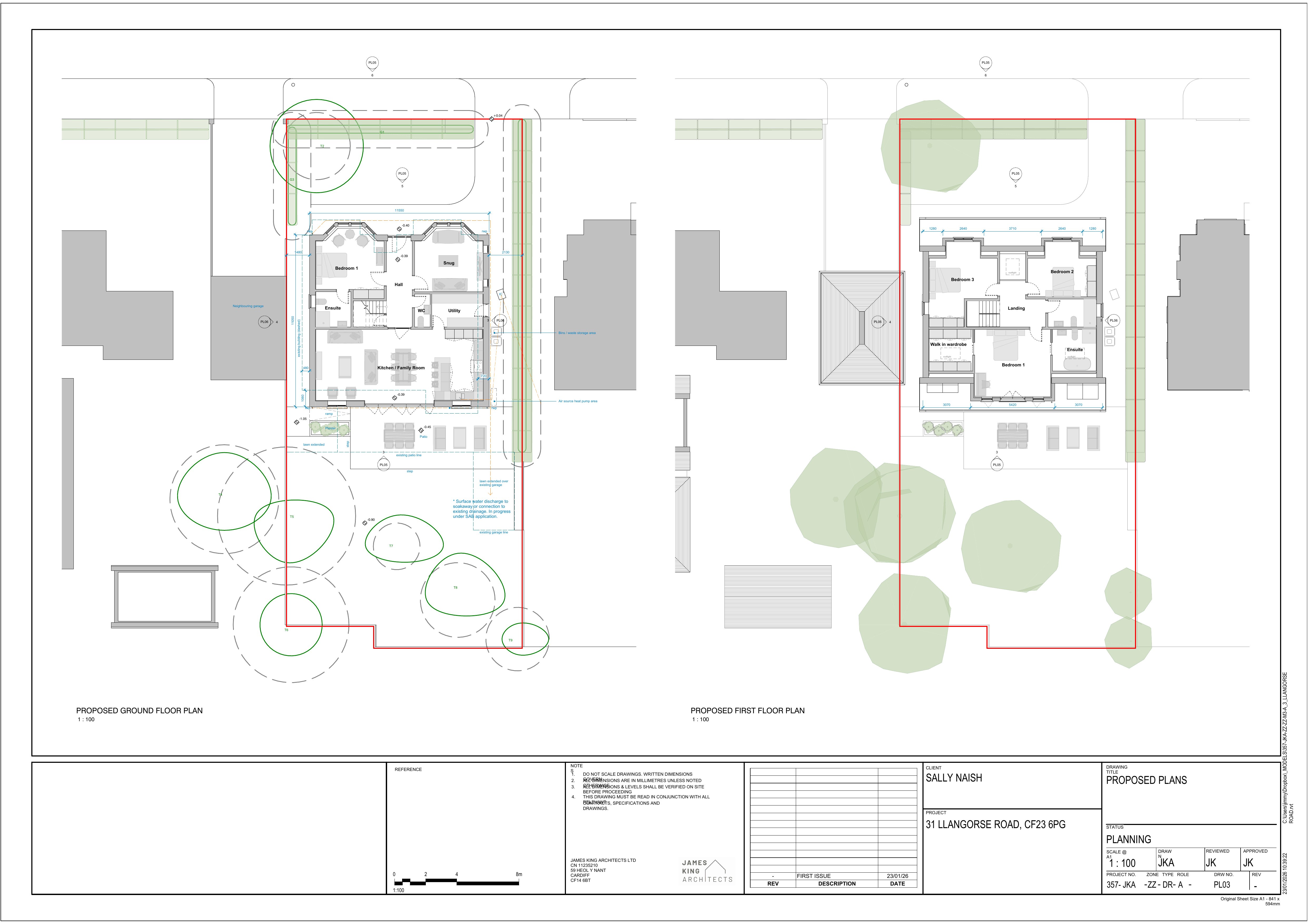
Demolition of existing bungalow and new build dwelling on site.

Documents

APPLICATIONFORMREDACTED
Application Form
Not archived · Council Link
DESIGN AND ACCESS STATEMENT
Design and Access Statement
Not archived · Council Link
EXISTING AND PROPOSED FRONT AND REAR ELEVATIONS
Drawing
Not archived · Council Link
EXISTING AND PROPOSED ROOF PLANS
Drawing
Not archived · Council Link
EXISTING AND PROPOSED SIDE ELEVATIONS
Drawing
Not archived · Council Link
EXISTING AND PROPOSED VISUALS
Drawing
Not archived · Council Link
EXISTING PLANS
Drawing
Not archived · Council Link
GREEN INFRASTRUCTURE STATEMENT
Supporting Documents
Not archived · Council Link
Drawing
Archived · Council Link
Site Location Plan
Archived · Council Link
TREE CONSTRAINTS PLAN
Drawing
Not archived · Council Link
TREE SURVEY
Supporting Documents
Not archived · Council Link

Take Action

Make your voice heard. Authorities need to hear from people who support new homes.

✉️ Write Email in Support View on Council Portal