← Back to Cardiff Council

Status

Registered Change of use
Received
25 days ago
New dwellings
2

Full Proposal

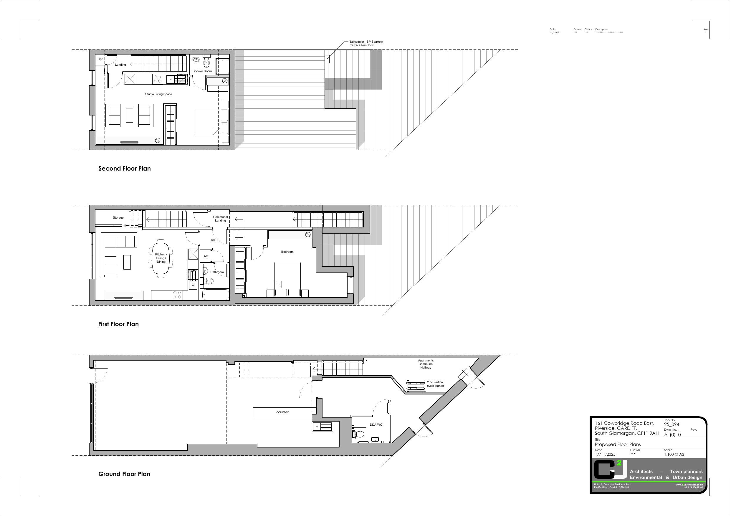
Change of use of first and second floor from use class A3 to two C3 self contained flats with associated works.

Documents

APPLICATIONFORMREDACTED
Application Form
Not archived · Council Link
DESIGN AND ACCESS STATEMENT V.2
Design and Access Statement
Not archived · Council Link
EXISTING ELEVATIONS
Drawing
Not archived · Council Link
EXISTING FLOOR PLANS
Drawing
Not archived · Council Link
EXISTING SITE AND LOCATION PLANS
Site Location Plan
Not archived · Council Link
GREEN INFRASTRUCTURE STATEMENT- BIODIVERSITY ENHANCEMENT
Supporting Documents
Not archived · Council Link
PROPOSED ELEVATIONS
Drawing
Not archived · Council Link
Drawing
Archived · Council Link
Drawing
Archived · Council Link

Take Action

Make your voice heard. Authorities need to hear from people who support new homes.

✉️ Write Email in Support View on Council Portal