← Back to Cardiff Council

Status

Registered Change of use
Received
26 days ago
New dwellings
0

Full Proposal

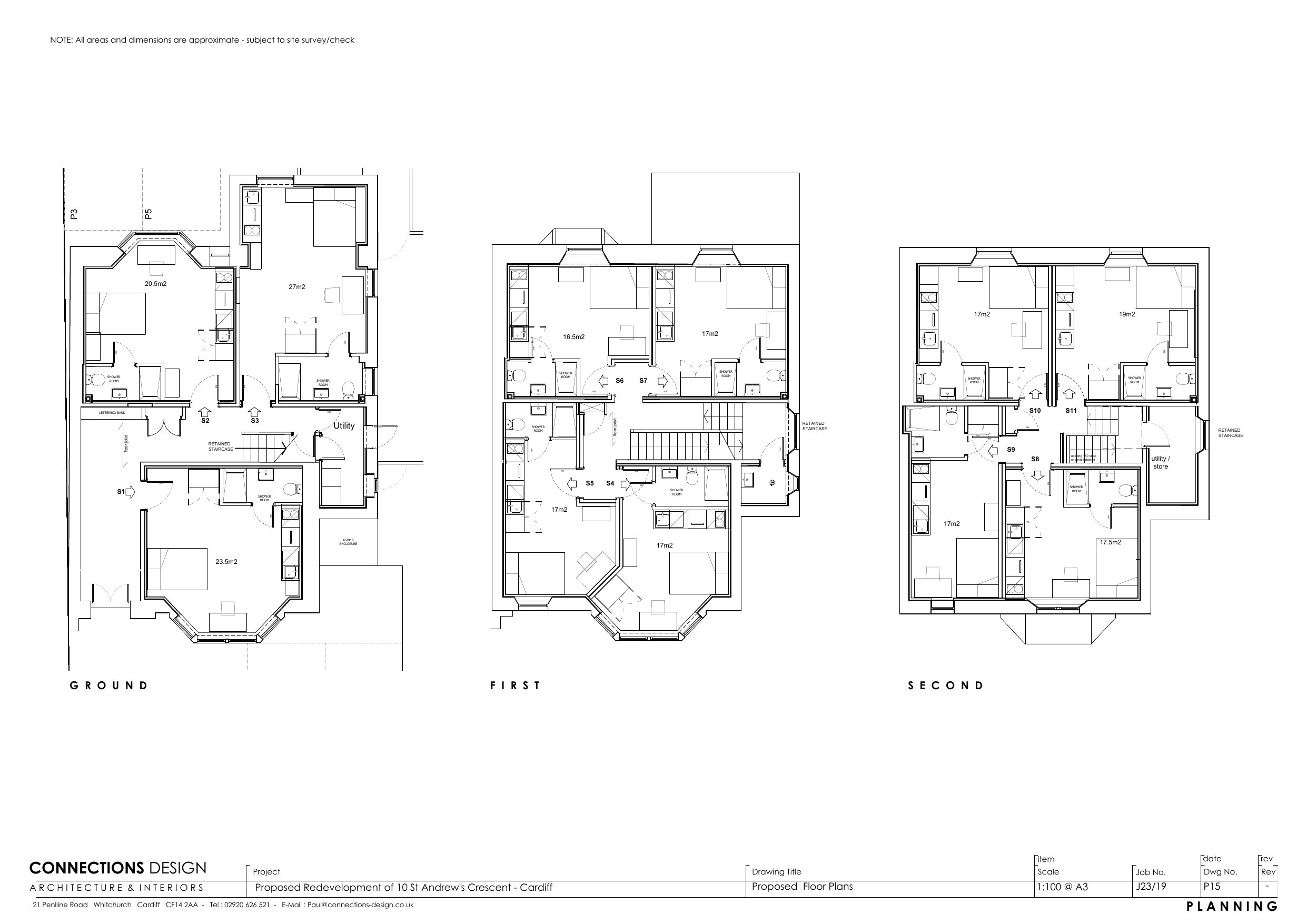
Change of use of ground floor from offices to student accommodation with minor elevational changes.

Documents

APPLICATIONFORMREDACTED
Application Form
Not archived · Council Link
BIKE-REFUSE STORAGE PLAN
Drawing
Not archived · Council Link
EXISTING ELEVATIONS
Drawing
Not archived · Council Link
EXISTING FLOOR PLANS
Drawing
Not archived · Council Link
Drawing
Archived · Council Link
MARKETING REPORT
Supporting Documents
Not archived · Council Link
OS & BLOCK PLANS
Site Location Plan
Not archived · Council Link
PLANNING STATEMENT & GREEN INFRASTRUCTURE ASSESSMENT
Supporting Documents
Not archived · Council Link
PROPOSED ELEVATIONS
Drawing
Not archived · Council Link
Drawing
Archived · Council Link

Take Action

Make your voice heard. Authorities need to hear from people who support new homes.

✉️ Write Email in Support View on Council Portal