← Back to Carlisle City Council (Legacy)

Status

Registered New housing
Received
09 Apr 2025
New dwellings
2

Summary

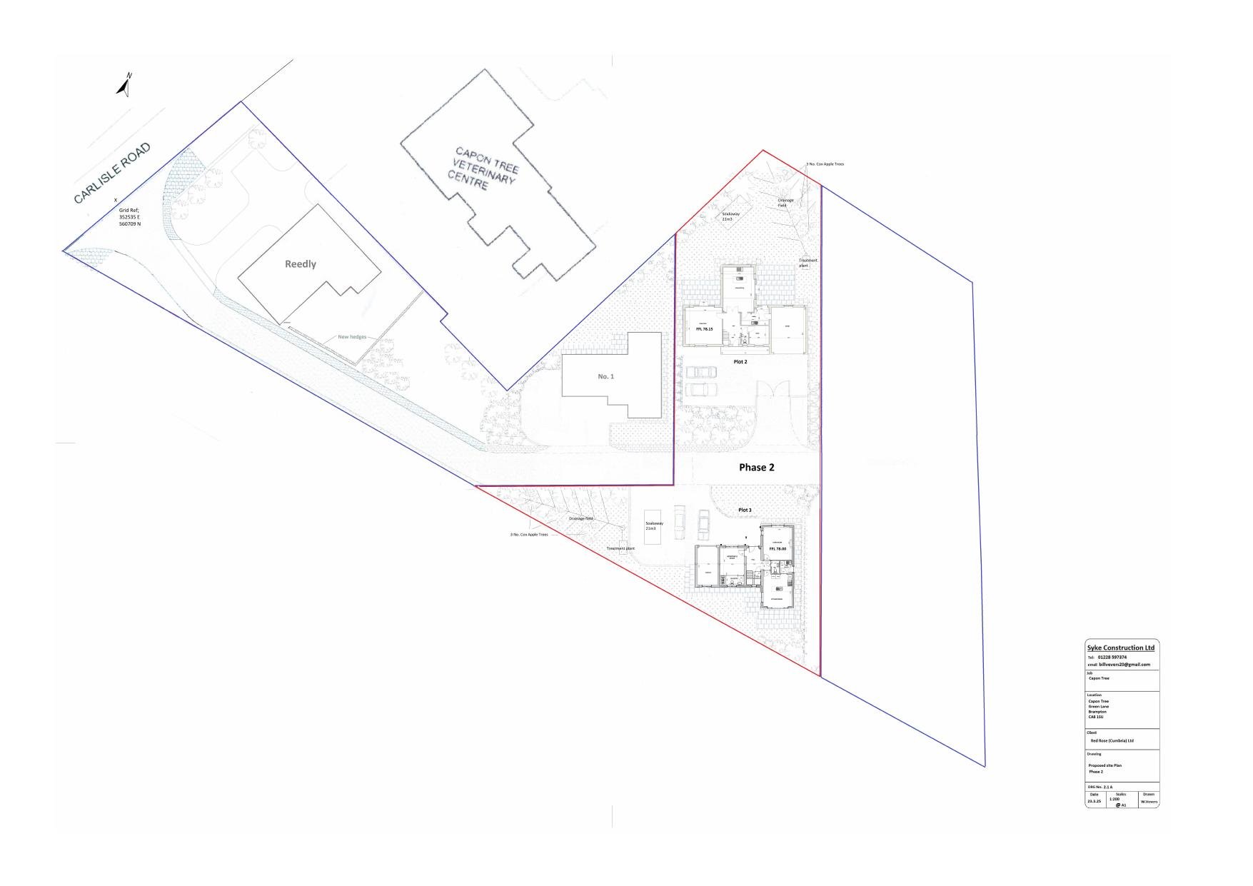
Construction of two dwellings and access road.

Full Proposal

Erection Of 2no. Dwellings (Plots 2 & 3) And Access Road

Documents

0002 lead ecologist response 24062025
Consultee Comment
Not archived · Council Link
0003 natural england response 22082025
Consultee Comment
Not archived · Council Link
0003 natural england response 25042025
Consultee Comment
Not archived · Council Link
0005 united utilities 23042025
Consultee Comment
Not archived · Council Link
04 ground floor plan plot 2 09042025
Drawing
Not archived · Council Link
05 first floor plan plot 2 09042025
Drawing
Not archived · Council Link
06 elevations plot 2 09042025
Drawing
Not archived · Council Link
07 plot 3 ground floor plan 09042025
Drawing
Not archived · Council Link
08 plot 3 first floor plan 09042025
Drawing
Not archived · Council Link
09 plot 3 elevations 09042025
Drawing
Not archived · Council Link
Amended 01 location plan 29042024
Drawing
Not archived · Council Link
Amended biodiversity phase 2 29042024
BackGround Papers
Not archived · Council Link
Amended heritage statement 22042025
BackGround Papers
Not archived · Council Link
Application form 09042025
Application Form
Not archived · Council Link
Nutrient neutrality mitigation phase 2 09042025
BackGround Papers
Not archived · Council Link
Site notice
Other
Not archived · Council Link
Site notice 15.04.25
Other
Not archived · Council Link
Superseded 01 location plan 09042025
Drawing
Not archived · Council Link
Superseded biodiversity capon tree brampton phase 2 09042025
BackGround Papers
Not archived · Council Link
Superseded heritage statement 11042025
BackGround Papers
Not archived · Council Link

Take Action

Make your voice heard. Authorities need to hear from people who support new homes.

✉️ Write Email in Support View on Council Portal