← Back to Carlisle City Council (Legacy)

Status

Awaiting decision Change of use
Received
11 Jul 2025
New dwellings
10

Summary

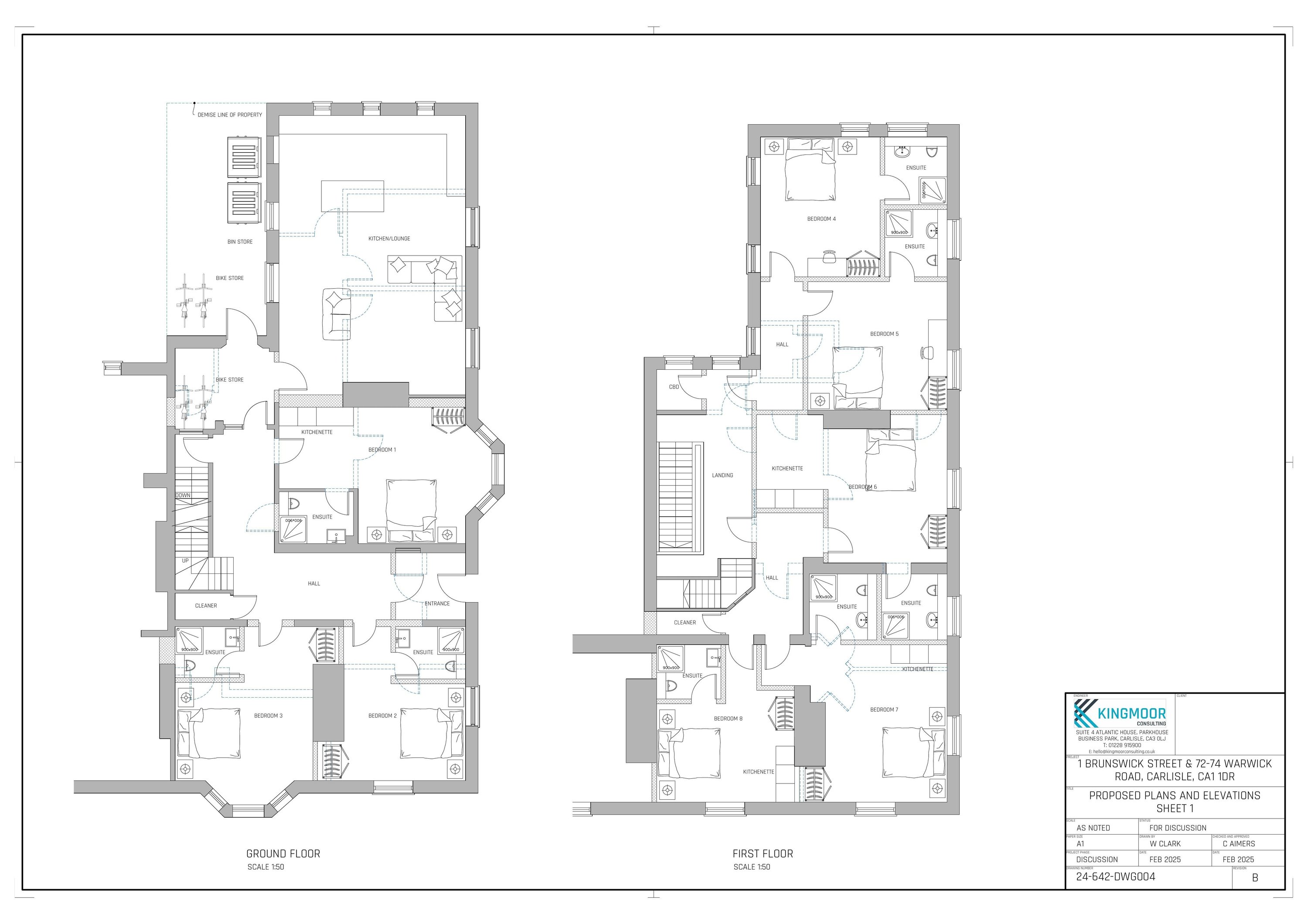
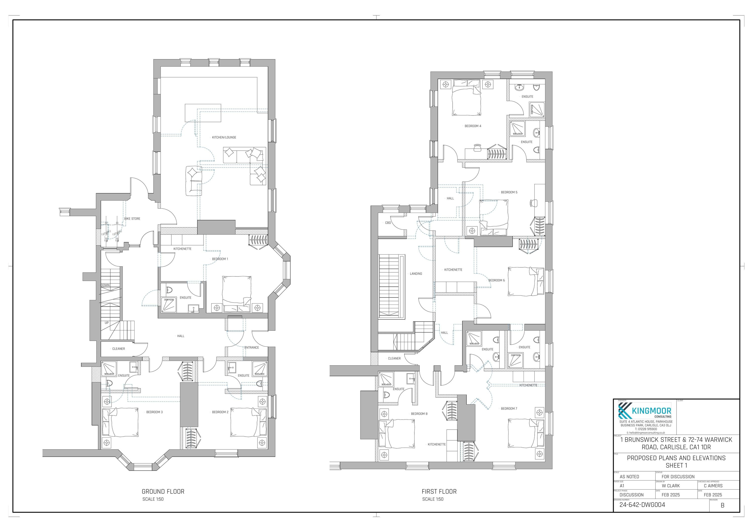
Change of use from doctors surgery to a 10-bedroom House in Multiple Occupation (HMO).

Full Proposal

Change Of Use From Doctors Surgery (Class E) To 10no. Bedroom House Of Multiple Occupancy (Sui Ge...

Documents

0003 carlisle and district civic trust response 07082025
Consultee Comment
Not archived · Council Link
Amended block and location plan 23072025
Drawing
Not archived · Council Link
Amended brunswick house nn calculator 08092025
Form Data
Not archived · Council Link
Amended heritage statement 11082025
BackGround Papers
Not archived · Council Link
Amended nutrient report 11082025
BackGround Papers
Not archived · Council Link
Amended planning statement 11082025
BackGround Papers
Not archived · Council Link
Amended proposed heritage plan 11082025
Drawing
Not archived · Council Link
Amended proposed heritage plan 2 11082025
Drawing
Not archived · Council Link
Amended ptp 58 lingyclose nn calculator 08092025
Form Data
Not archived · Council Link
Amended septic tank 58 lingyclose nn calculator 08092025
Form Data
Not archived · Council Link
Applicationformredacted 14072025
Application Form
Not archived · Council Link
Existing elevations 14072025
Drawing
Not archived · Council Link
Existing ground and first floor plans 14072025
Drawing
Not archived · Council Link
Existing second floor and roof plans 2 14072024
Drawing
Not archived · Council Link
Ptp certificate 081025
BackGround Papers
Not archived · Council Link
Site notice 24.07.25
Other
Not archived · Council Link
Superseded brunswick house nn metric 11082025
Form Data
Not archived · Council Link
Superseded existing septic tank 58 lingy close nn metric 11082025
Form Data
Not archived · Council Link
Superseded heritage statement 14072025
BackGround Papers
Not archived · Council Link
Superseded nutrient report 14072025
BackGround Papers
Not archived · Council Link
Superseded planning statement 14072025
BackGround Papers
Not archived · Council Link
Superseded proposed heritage plan 14072025
Drawing
Not archived · Council Link
Superseded proposed heritage plan 2 14072025
Drawing
Not archived · Council Link
Superseded proposed ptp 58 lingy close nn metric 11082025
Form Data
Not archived · Council Link

Take Action

Make your voice heard. Authorities need to hear from people who support new homes.

✉️ Write Email in Support View on Council Portal