← Back to Carlisle City Council (Legacy)

Status

Registered New housing
Received
27 Aug 2025
New dwellings
1

Full Proposal

Erection of 1no. Self Build Dwelling (Outline)

Documents

0007 ca5 6lj response 10092025
Public Comment
Not archived · Council Link
01 location plan 28082025
Drawing
Not archived · Council Link
02 block plan as existing 28082025
Drawing
Not archived · Council Link
03 block plan as proposed 28082025
Drawing
Not archived · Council Link
06 access and visibility as proposed 28082025
Drawing
Not archived · Council Link
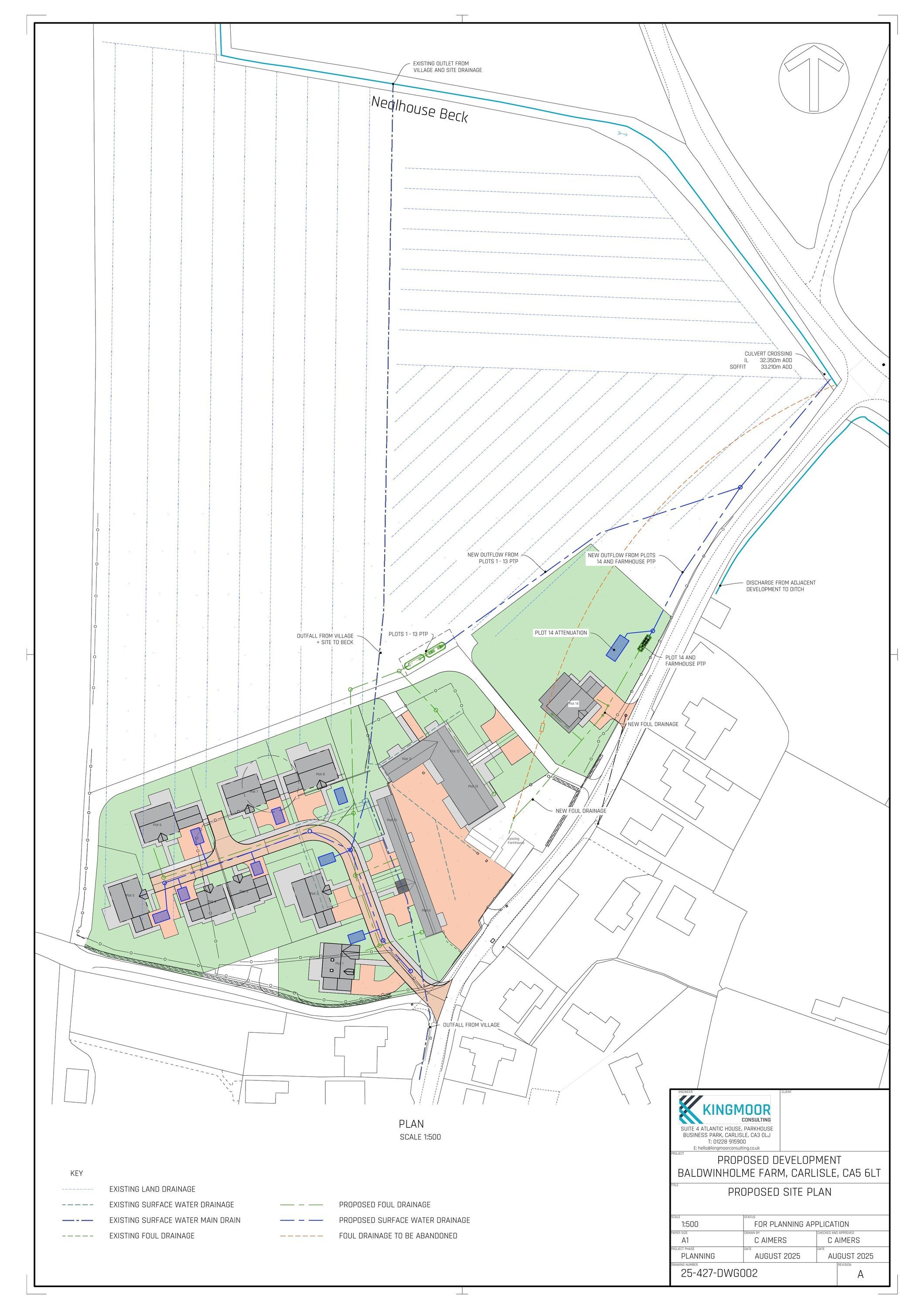
08 existing drainage 28082025
Drawing
Not archived · Council Link
09 site drainage 28082025
Drawing
Not archived · Council Link
7 day report 28082025
BackGround Papers
Not archived · Council Link
Application form 28082025
Application Form
Not archived · Council Link
Baseline habitat map 28082025
Drawing
Not archived · Council Link
Bat survey report 28082025
BackGround Papers
Not archived · Council Link
Bng metric 28082025
BackGround Papers
Not archived · Council Link
Contamination report 01092025
BackGround Papers
Not archived · Council Link
Design and access statement 28082025
BackGround Papers
Not archived · Council Link
Drainage strategy inc. fra 28082025
BackGround Papers
Not archived · Council Link
Post development map 28082025
Drawing
Not archived · Council Link
Preliminary ecological assessment 28082025
BackGround Papers
Not archived · Council Link
Site notice 03.09.25
Other
Not archived · Council Link

Take Action

Make your voice heard. Authorities need to hear from people who support new homes.

✉️ Write Email in Support View on Council Portal