← Back to Carlisle City Council (Legacy)

Status

Registered Change of use
Received
26 days ago
New dwellings
0

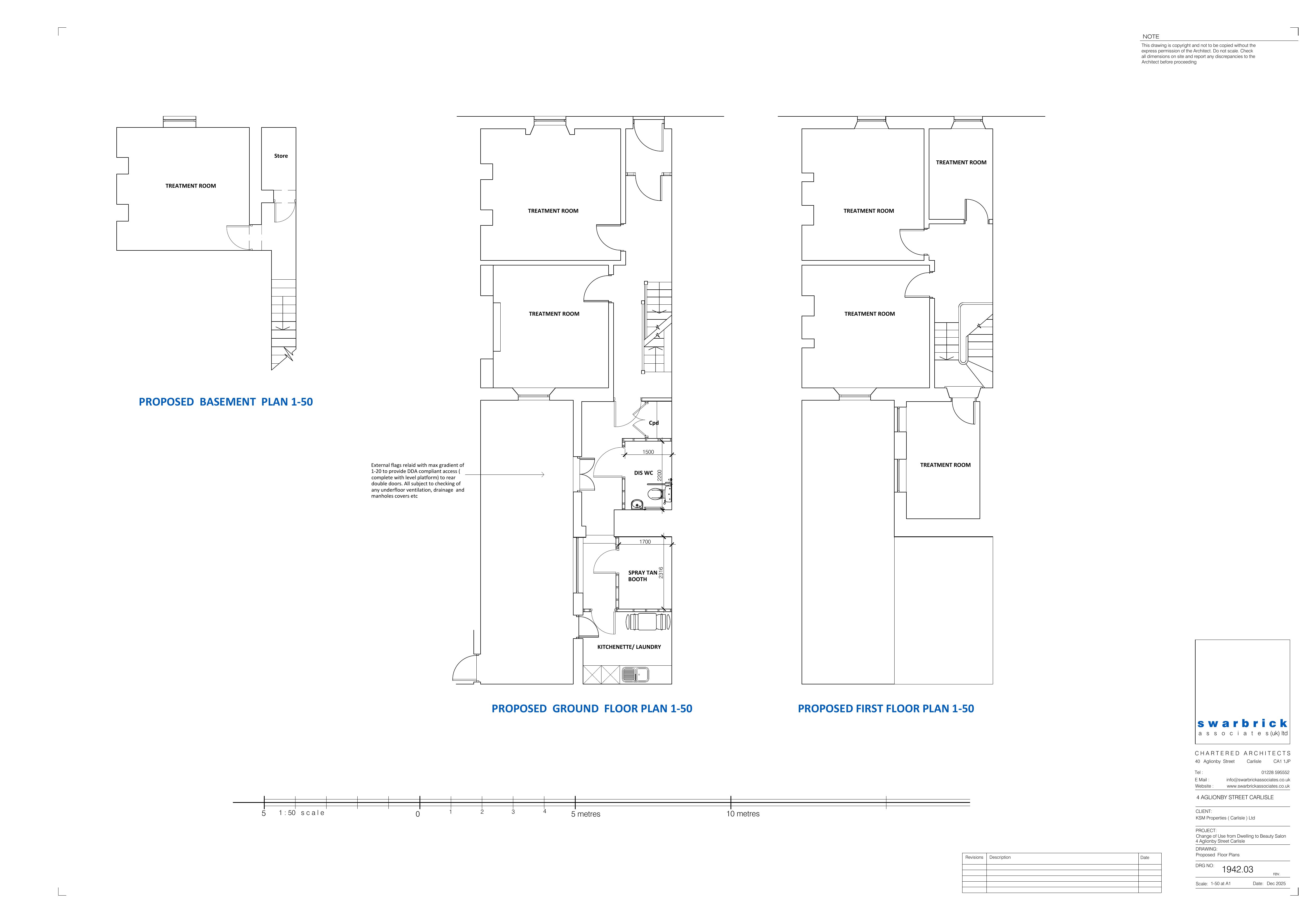
Full Proposal

Change Of Use From Dwelling To Beauty Salon

Documents

0001 highways 29012026
Consultee Comment
Not archived · Council Link
01 as existing floor plans 27012026
Drawing
Not archived · Council Link
Application form 27012026
Application Form
Not archived · Council Link
Design and access statement 27012026
BackGround Papers
Not archived · Council Link
Heritage statement 28012026
BackGround Papers
Not archived · Council Link
Site notice
Other
Not archived · Council Link

Take Action

Make your voice heard. Authorities need to hear from people who support new homes.

✉️ Write Email in Support View on Council Portal