← Back to Cheltenham Borough Council

Status

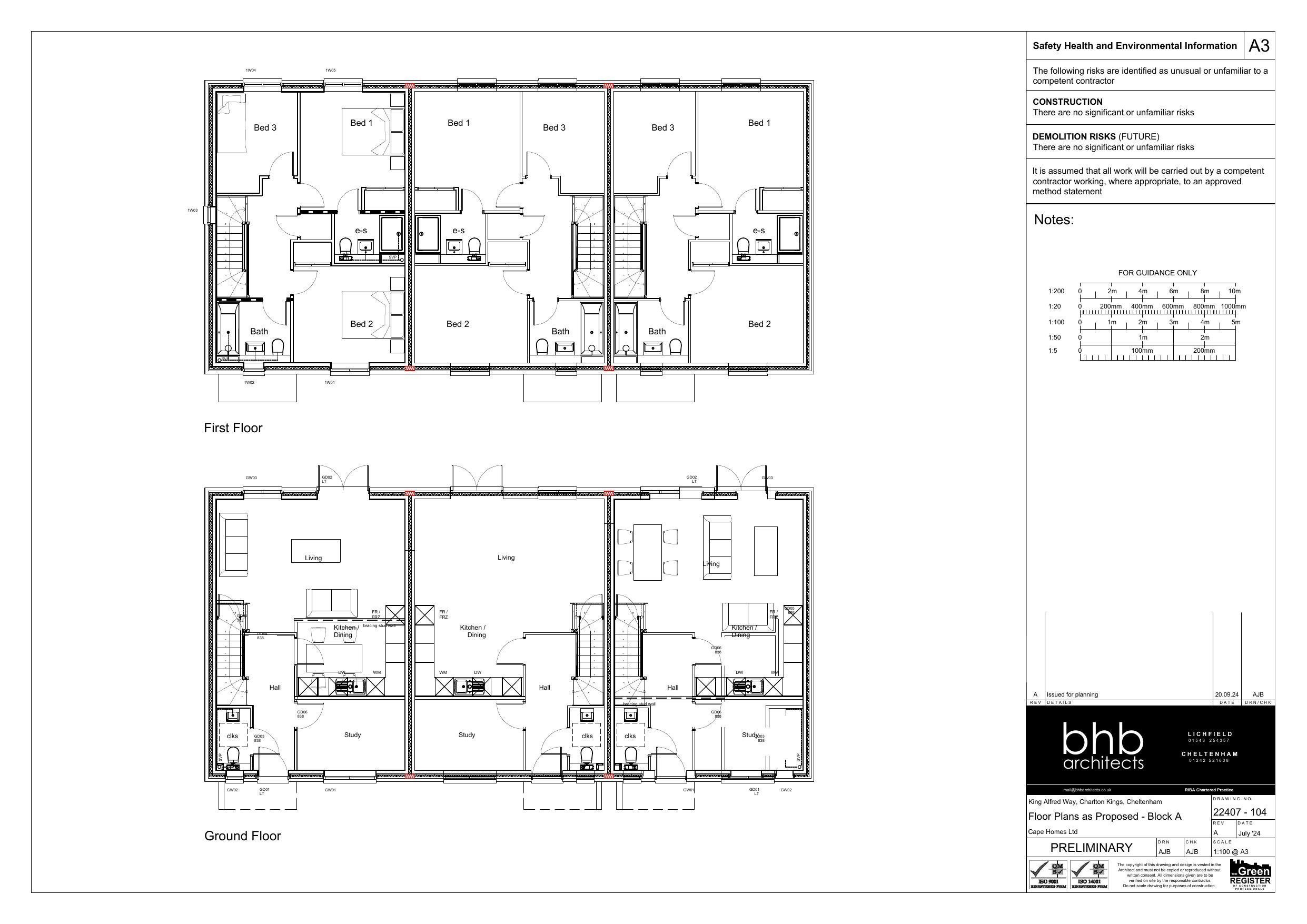
Permit New housing
Received
11 Oct 2024
New dwellings
7

Full Proposal

Erection of 7 No. dwellings off King Alfred Way following demolition of existing buildings and associated works.

Documents

Application form
Application Form
Not archived · Council Link
Ashp details - 1
Other
Not archived · Council Link
Ashp details - 2
Other
Not archived · Council Link
Baseline habitat plan
Superseded Documents
Not archived · Council Link
Biodiversity metric calculation tool
Superseded Documents
Not archived · Council Link
Cbc ecologist
Consultee Comment
Not archived · Council Link
Cheltenham architect panel review
Consultee Comment
Not archived · Council Link
Cil form
BackGround Papers
Not archived · Council Link
Cil form assumpiton of liability
BackGround Papers
Not archived · Council Link
Construction management plan
Superseded Documents
Not archived · Council Link
Decision notice
Decision Notice
Not archived · Council Link
Elevations 2 block b rev b
Approved Drawing
Not archived · Council Link
Existing business relocation diagram
Drawing
Not archived · Council Link
Gcc highways
Consultee Comment
Not archived · Council Link
Gcc highways response
Consultee Comment
Not archived · Council Link
Material details
Approved Documents
Not archived · Council Link
Officer report
Report
Not archived · Council Link
Planning statement
Report
Not archived · Council Link
Preliminary bat survey
Other
Not archived · Council Link
Proposed block plan
Superseded Documents
Not archived · Council Link
Proposed elevations 1 block b rev b
Approved Drawing
Not archived · Council Link
Proposed elevations 2 block a rev b
Approved Drawing
Not archived · Council Link
Approved Drawing
Archived · Council Link
Superseded Documents
Archived · Council Link
Approved Drawing
Archived · Council Link
Proposed front and rear elevations - block a
Superseded Documents
Not archived · Council Link
Proposed front and side elevations - block b
Superseded Documents
Not archived · Council Link
Proposed rear and side elevations - block b
Superseded Documents
Not archived · Council Link
Proposed side elevations - block a
Superseded Documents
Not archived · Council Link
Revised biodiversity metric calculation tool
BackGround Papers
Not archived · Council Link
Revised biodiversity metric calculation tool
Superseded Documents
Not archived · Council Link
Revised construction management plan
Revised Documents
Not archived · Council Link
Revised construction management plan & waste management
Superseded Documents
Not archived · Council Link
Revised proposed block plan
Approved Drawing
Not archived · Council Link
Revised proposed front and rear elevations - block a
Approved Drawing
Not archived · Council Link
Revised proposed site layout plan
Approved Drawing
Not archived · Council Link
Superseded Documents
Archived · Council Link
Revised proposed site sections
Approved Drawing
Not archived · Council Link
Section - proposed
Superseded Documents
Not archived · Council Link
Site layout as proposed
Superseded Documents
Not archived · Council Link
Approved Drawing
Archived · Council Link
Site waste management plan
Report
Not archived · Council Link
Site/block plan - existing and elevations
Drawing
Not archived · Council Link
Site/block plan - existing elevations
Drawing
Not archived · Council Link
Sustainability appraisal
Report
Not archived · Council Link
Technical note - drainage strategy
Report
Not archived · Council Link
Transport assessment
Report
Not archived · Council Link
Tree survey
Report
Not archived · Council Link
Ukhab baseline habitat plan
Drawing
Not archived · Council Link

Take Action

Make your voice heard. Authorities need to hear from people who support new homes.

✉️ Write Email in Support View on Council Portal