← Back to Cheltenham Borough Council

Status

Permit House extension
Received
04 Dec 2024
New dwellings
0

Full Proposal

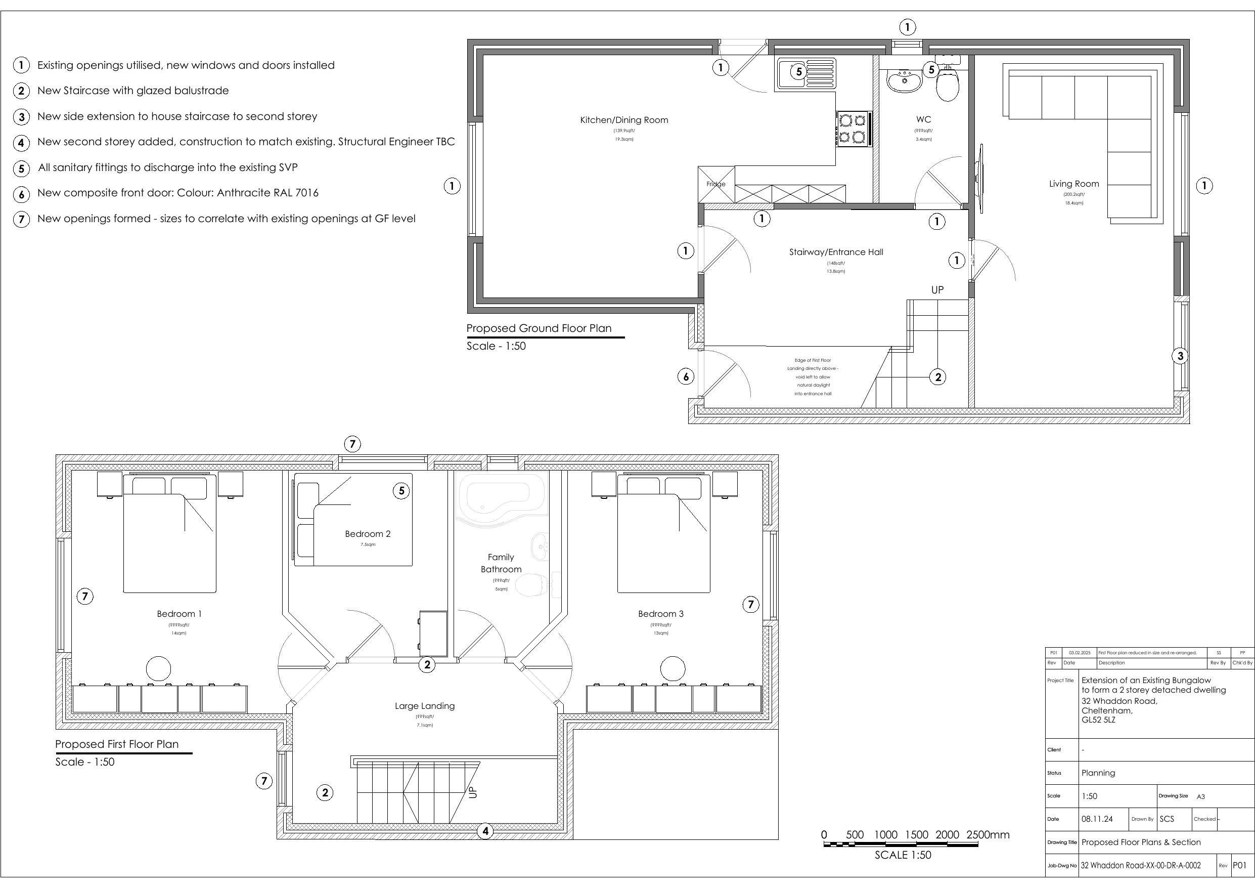
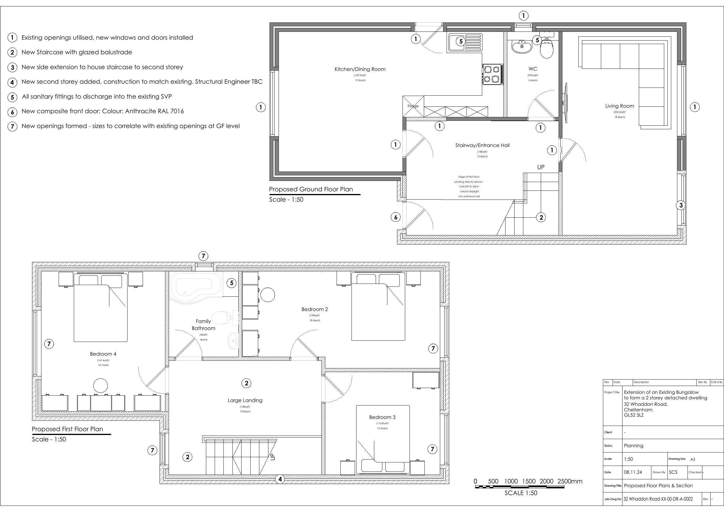
Alterations and extension to convert existing bungalow into a two storey dwelling.

Documents

Application form
Application Form
Not archived · Council Link
Biodiversity metric calculation tool
BackGround Papers
Not archived · Council Link
Covering letter
BackGround Papers
Not archived · Council Link
Decision Notice
Decision Notice
Not archived · Council Link
Existing elevations
Drawing
Not archived · Council Link
Existing floor plan and section
Drawing
Not archived · Council Link
Drawing
Archived · Council Link
Officer report
Report
Not archived · Council Link
Parking provision - details
BackGround Papers
Not archived · Council Link
Proposed elevations
Superseded Documents
Not archived · Council Link
Proposed elevations
Approved Drawing
Not archived · Council Link
Superseded Documents
Archived · Council Link
Revised Drawing
Archived · Council Link
Proposed section 1
Superseded Documents
Not archived · Council Link
Proposed section 1
Approved Drawing
Not archived · Council Link
Proposed section 2
Superseded Documents
Not archived · Council Link
Proposed section 2
Approved Drawing
Not archived · Council Link
Approved Drawing
Archived · Council Link
Superseded Documents
Archived · Council Link
Approved Drawing
Archived · Council Link

Take Action

Make your voice heard. Authorities need to hear from people who support new homes.

✉️ Write Email in Support View on Council Portal