← Back to Cheltenham Borough Council

Status

Unknown Change of use
Received
10 Jan 2025
New dwellings
8

Summary

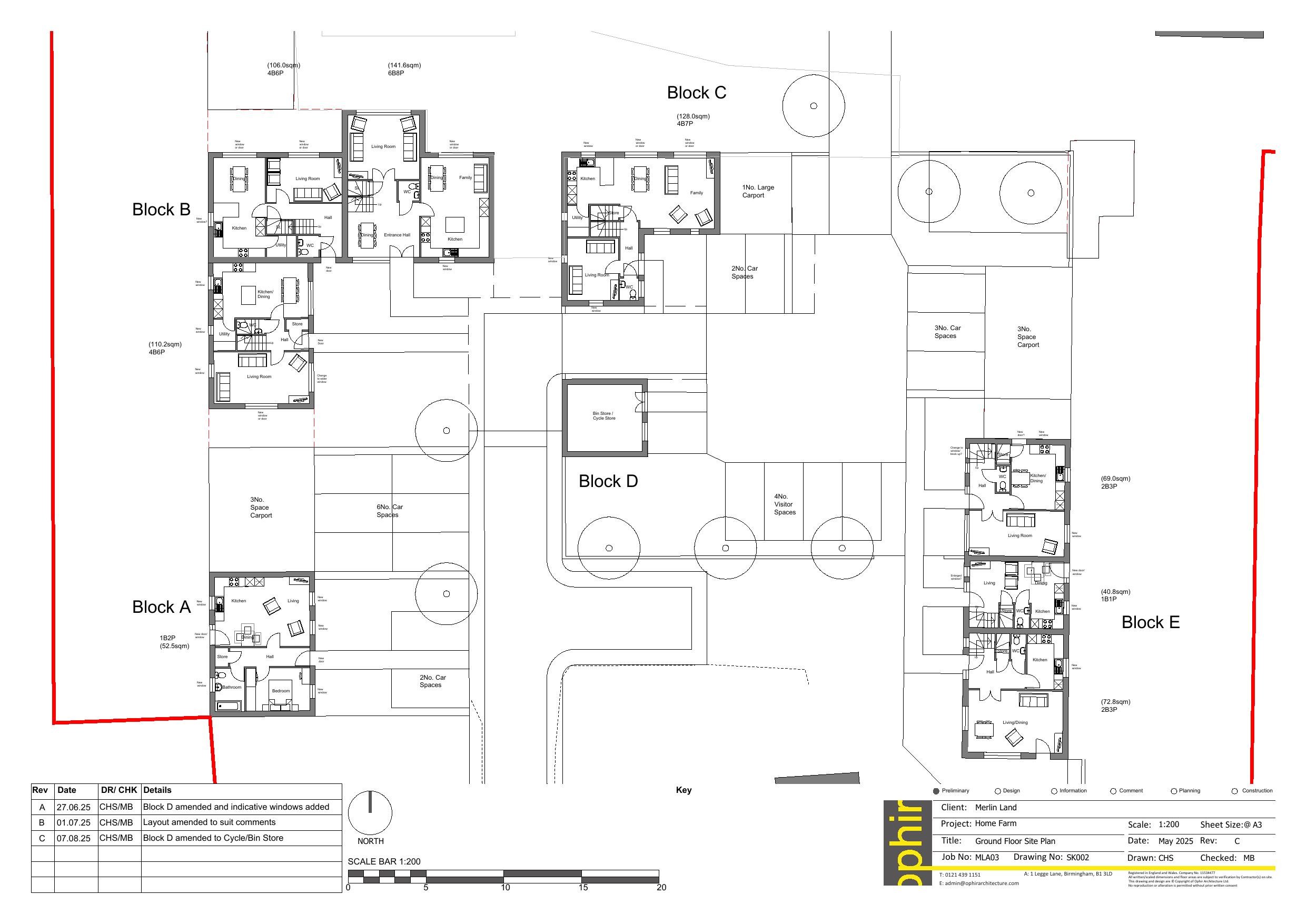
Conversion of farm buildings to form eight dwellings, with some demolitions.

Full Proposal

The proposal is for a change of use of some of the buildings within the current farmstead to C3 residential use under part Q Permitted Development Rights, the proposal would comprise the demolition of some ancillary farm storage buildings and the conversion to form eight dwellings from the existing buildings.

Documents

Additional report_unit 1_class q
Report
Not archived · Council Link
Additional report_unit 2_class q
Report
Not archived · Council Link
Additional report_unit 3_class q
Report
Not archived · Council Link
Additional report_unit 4_class q
Report
Not archived · Council Link
Additional report_unit 5_class q
Report
Not archived · Council Link
Additional report_unit 6_class q
Report
Not archived · Council Link
Aerial view plan
Drawing
Not archived · Council Link
Contaminated land phase 1 assessment
Other
Not archived · Council Link
Decision Notice
Decision Notice
Not archived · Council Link
Elevations block b
Drawing
Not archived · Council Link
Elevations block c
Drawing
Not archived · Council Link
Existing elevations
Drawing
Not archived · Council Link
Existing elevations
Drawing
Not archived · Council Link
Existing first floor plans
Drawing
Not archived · Council Link
Floor plans block b
Superseded Documents
Not archived · Council Link
Floor plans block b
Revised Drawing
Not archived · Council Link
Floor plans block c
Revised Drawing
Not archived · Council Link
Floor plans plans block c
Superseded Documents
Not archived · Council Link
Gcc highways response
Consultee Comment
Not archived · Council Link
Superseded Documents
Archived · Council Link
Revised Drawing
Archived · Council Link
Measured building
Drawing
Not archived · Council Link
Officer report
Report
Not archived · Council Link
Plans & elevations block d
Revised Drawing
Not archived · Council Link
Plans and elevations block /a
Drawing
Not archived · Council Link
Plans and elevations block d
Superseded Documents
Not archived · Council Link
Plans and elevations block e
Drawing
Not archived · Council Link
Superseded Documents
Archived · Council Link
Revised Drawing
Archived · Council Link
Revised application form
Application Form
Not archived · Council Link
Schedule of works
BackGround Papers
Not archived · Council Link
Superseded Documents
Archived · Council Link
Topographical survey
Drawing
Not archived · Council Link

Take Action

Make your voice heard. Authorities need to hear from people who support new homes.

✉️ Write Email in Support View on Council Portal