← Back to Cheltenham Borough Council
Status
Grant
Listed building
Summary
Listed building alterations to create two two-bedroom flats above retained ground-floor shops.
Full Proposal
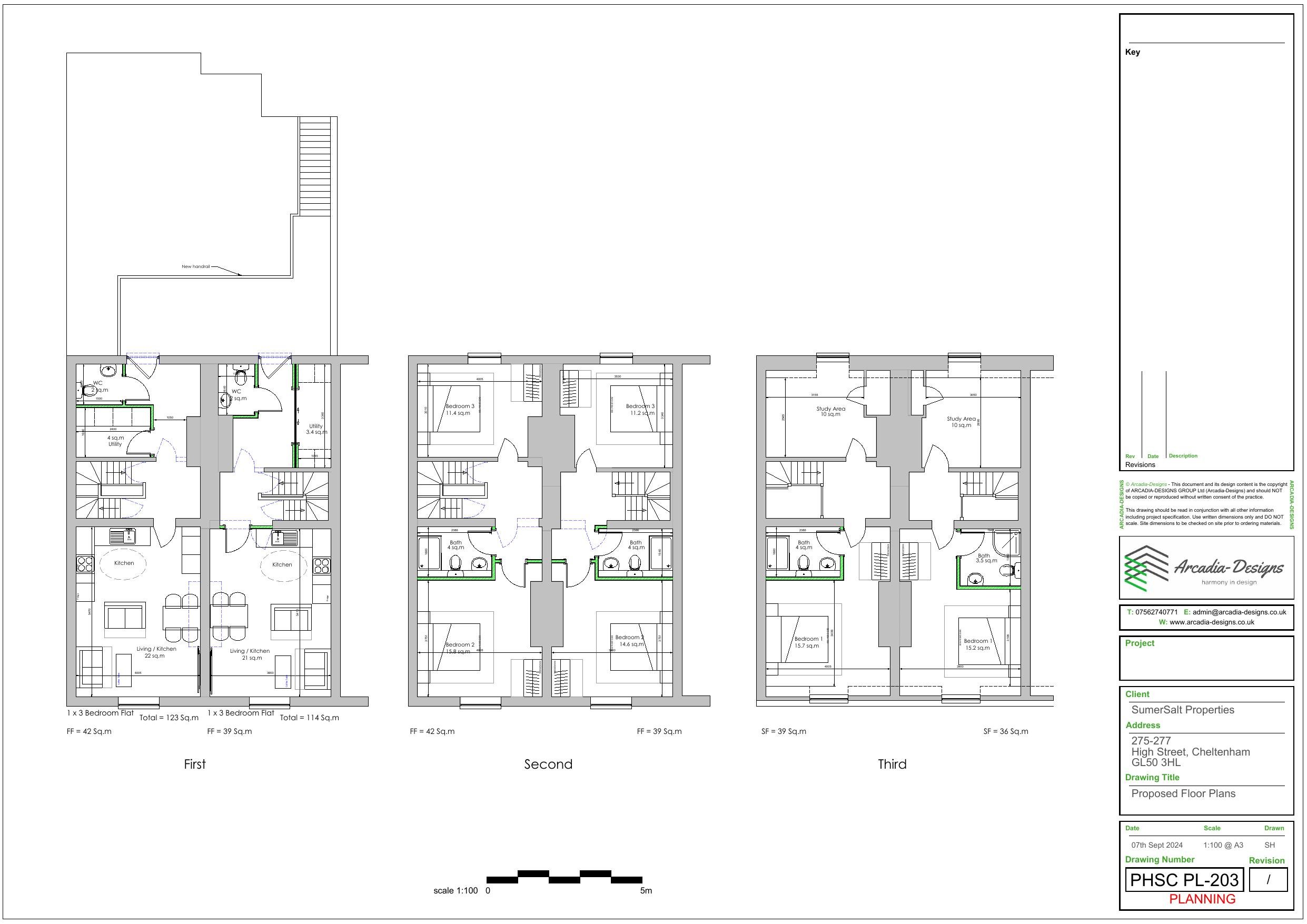
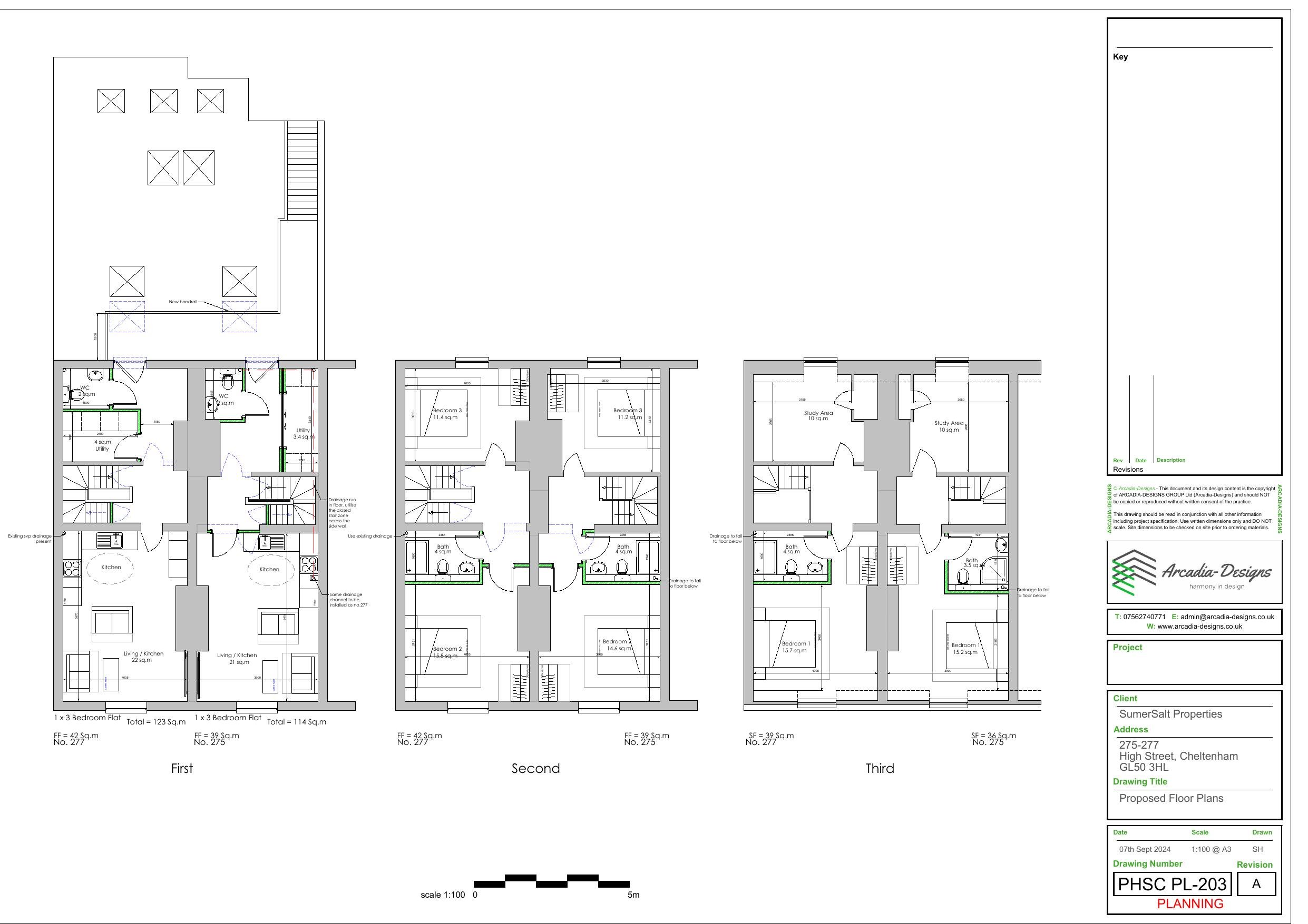
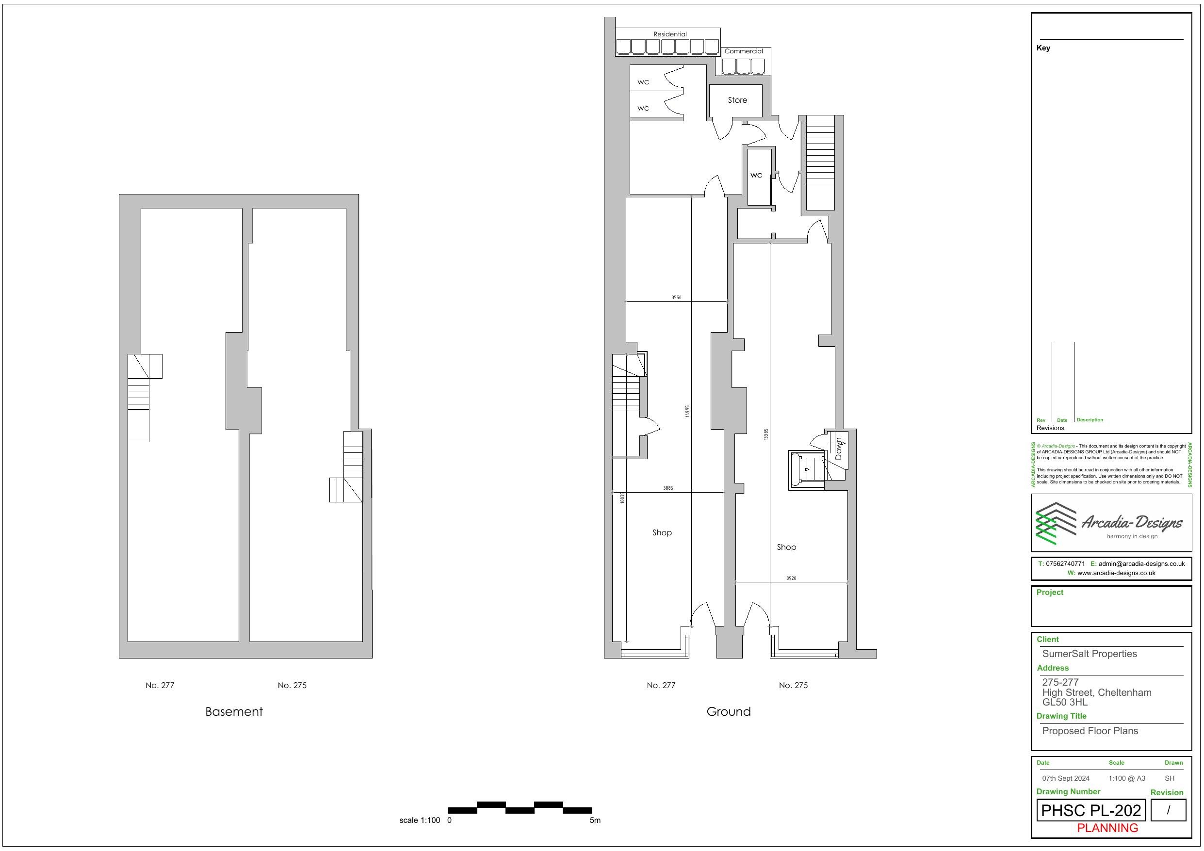
Internal and external alterations to create 2no. two bedroom flats on the first, second and third floors, plus retention of the ground floor shops at 275-277 High Street.
Documents
Additional plan bin and cycle plan
Superseded Documents
Application form
Application Form
Decision Notice
Decision Notice
Existing elevations
Drawing
Existing elevations
Drawing
Existing elevations
Drawing
Existing floor plans
Superseded Documents
Existing floor plans
Superseded Documents
Heritage impact assessment
BackGround Papers
Location and block plan
Superseded Documents
Planning & design and access statement
BackGround Papers
Proposed elevations
Approved Documents
Proposed elevations
Approved Documents
Proposed elevations
Superseded Documents
Revised bin and cycle plan
Approved Documents
Revised existing floor plans
Revised Drawing
Revised existing floor plans
Revised Drawing
Revised location and block plan
Superseded Documents
Revised proposed elevations
Approved Documents
Revised proposed elevations
Superseded Documents
Revised site location and block plan
Approved Documents
Take Action
Make your voice heard. Authorities need to hear from people who support new homes.