← Back to Cheltenham Borough Council

Status

Permit Change of use
Received
08 Apr 2025
New dwellings
0

Summary

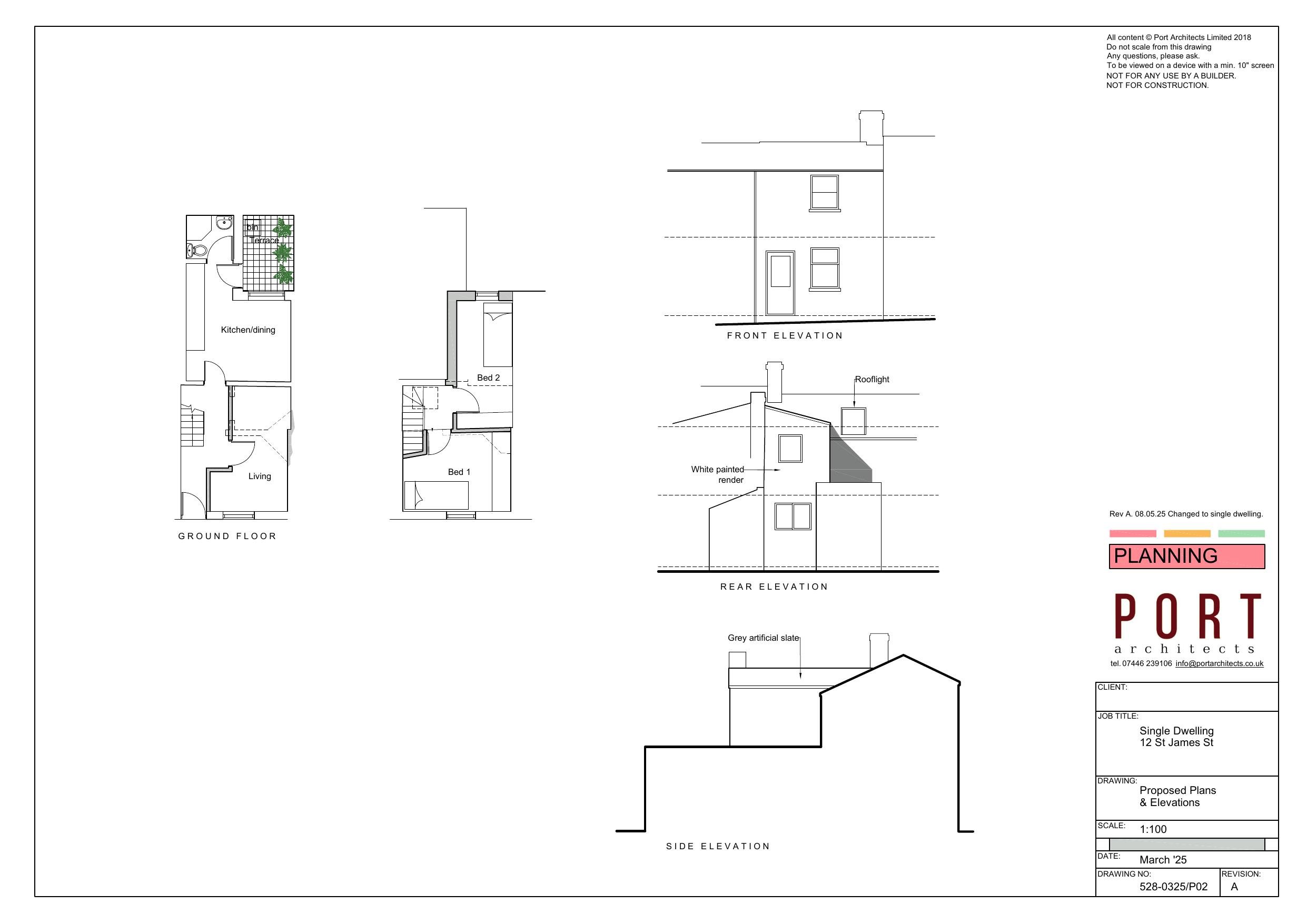
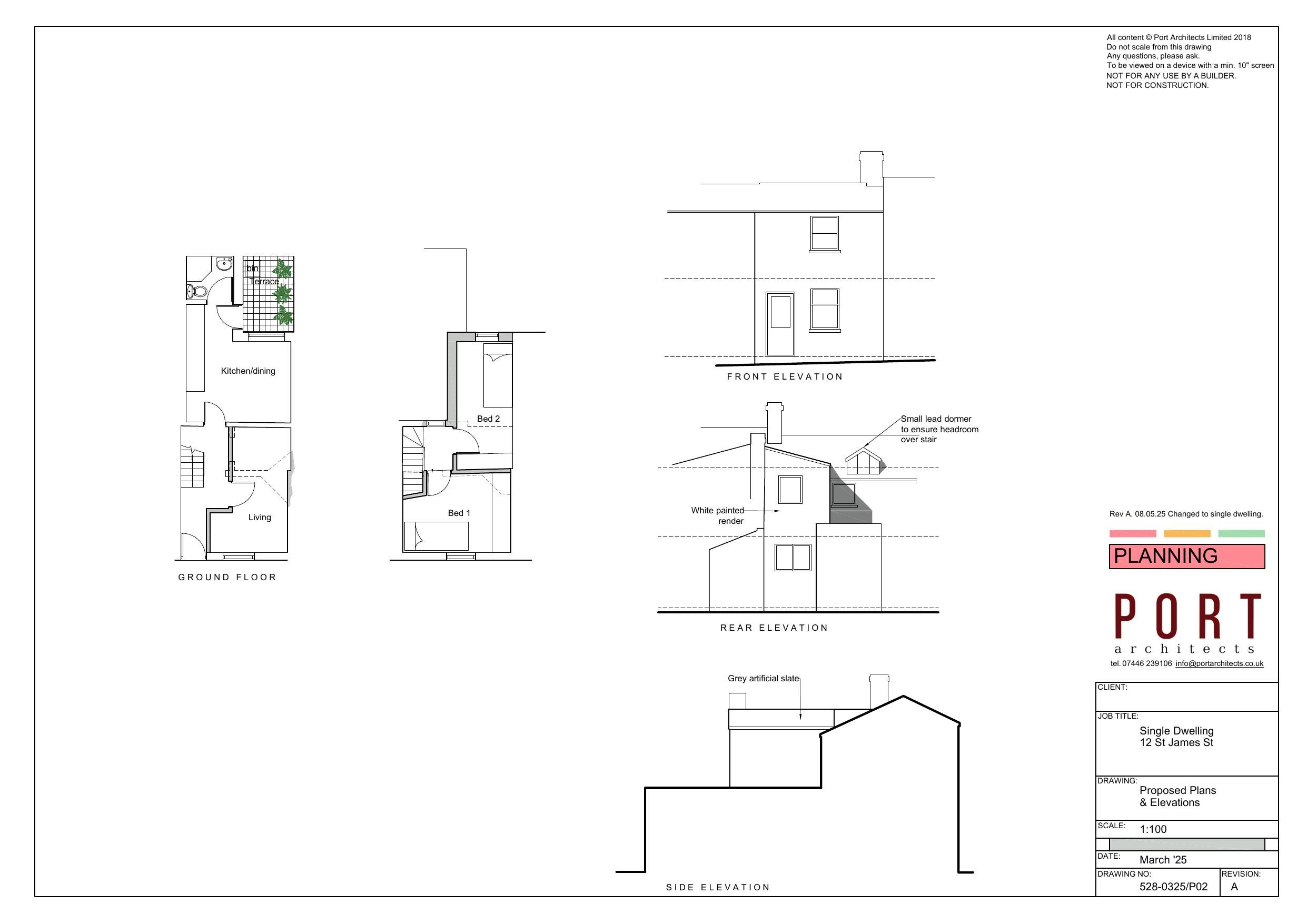
Convert offices (Class E) into a single dwellinghouse with first-floor rear extension and fenestration alterations.

Full Proposal

Conversion of offices (Class E) into a single dwellinghouse (Class C3), erection of first floor rear extension, plus fenestration alterations.

Documents

Application form
Application Form
Not archived · Council Link
Architects panel response
Consultee Comment
Not archived · Council Link
Bio diversity report
Consultee Comment
Not archived · Council Link
Completed s106/unilateral undertaking/sac mitigation
BackGround Papers
Not archived · Council Link
Decision Notice
Decision Notice
Not archived · Council Link
Design and access statement
BackGround Papers
Not archived · Council Link
Existing plans and elevations
Drawing
Not archived · Council Link
Gcc highways response
Consultee Comment
Not archived · Council Link
Location and block plan
Superseded Documents
Not archived · Council Link
Approved Drawing
Archived · Council Link
Superseded Documents
Archived · Council Link
Superseded Documents
Archived · Council Link
Superseded Documents
Archived · Council Link
Approved Drawing
Archived · Council Link
Site notice posted 11.04.25
Site Notice
Not archived · Council Link
Sustainability statement
BackGround Papers
Not archived · Council Link

Take Action

Make your voice heard. Authorities need to hear from people who support new homes.

✉️ Write Email in Support View on Council Portal