← Back to Cheltenham Borough Council

Status

Permit Other
Received
07 May 2025
New dwellings
0

Summary

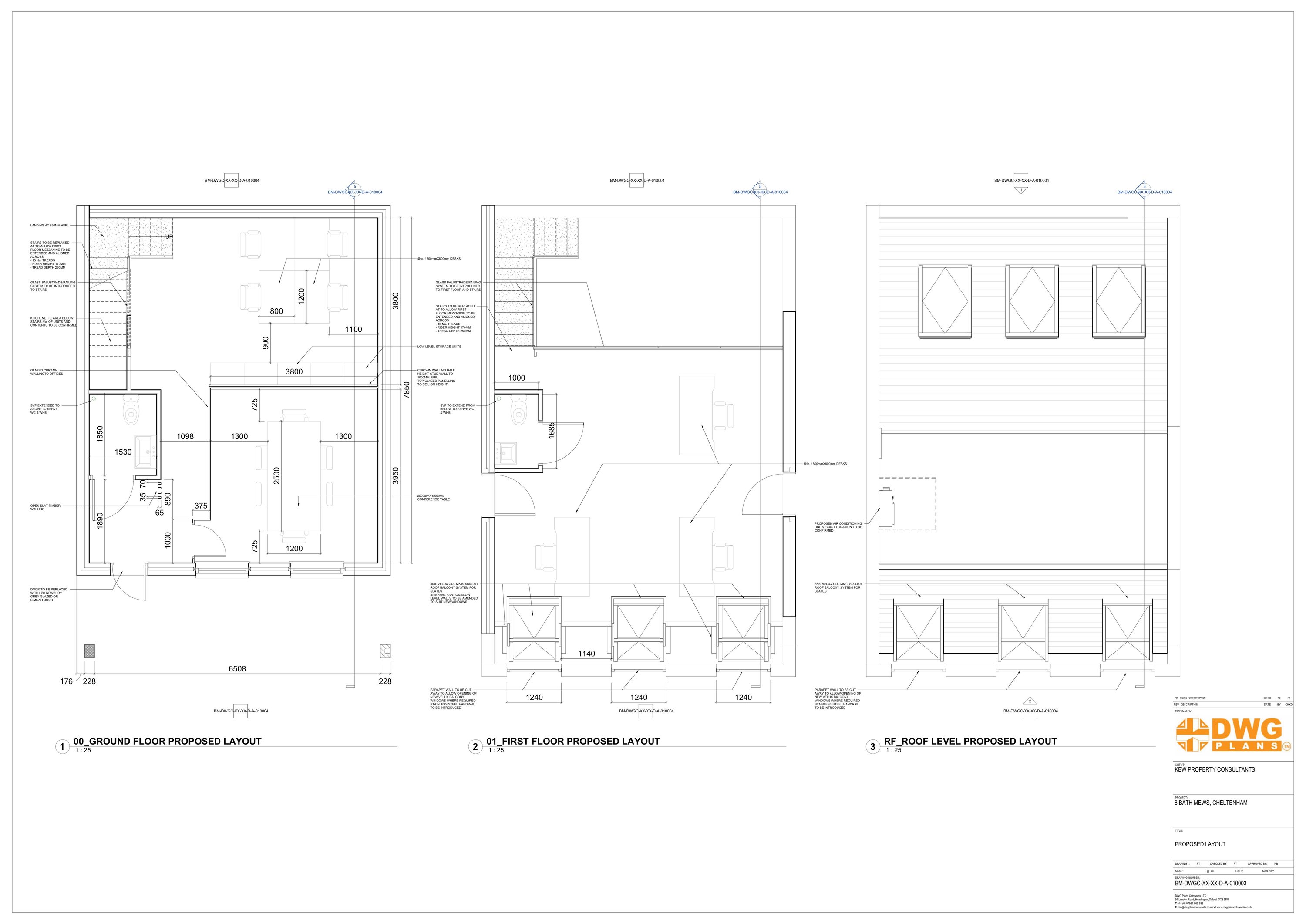
External alterations: larger first-floor balcony rooflights, replace ground-floor door/windows, install roof-mounted condenser units.

Full Proposal

External alterations to front elevation to form larger balcony rooflights at first floor level, replacement door and windows at ground floor level, installation of condenser units on the flat section of the mansard roof.

Documents

Amendment : application form
Application Form
Not archived · Council Link
Application form
Superseded Documents
Not archived · Council Link
Block plan
Drawing
Not archived · Council Link
Decision Notice
Decision Notice
Not archived · Council Link
Design and access statement
BackGround Papers
Not archived · Council Link
Existing floor plans
Superseded Documents
Not archived · Council Link
Existing sections and elevations
Superseded Documents
Not archived · Council Link
Gcer comment
Consultee Comment
Not archived · Council Link
Officer report
Report
Not archived · Council Link
Superseded Documents
Archived · Council Link
Proposed sections and elevations
Superseded Documents
Not archived · Council Link
Revised existing elevations and sections
Revised Drawing
Not archived · Council Link
Revised existing floor plans
Revised Drawing
Not archived · Council Link
Revised proposed elevations and sections
Approved Drawing
Not archived · Council Link
Approved Drawing
Archived · Council Link
Approved Drawing
Archived · Council Link
Site notice
Site Notice
Not archived · Council Link
Superseded Documents
Archived · Council Link

Take Action

Make your voice heard. Authorities need to hear from people who support new homes.

✉️ Write Email in Support View on Council Portal