← Back to Cheltenham Borough Council

Status

Permit House extension
Received
03 Nov 2025
New dwellings
0

Full Proposal

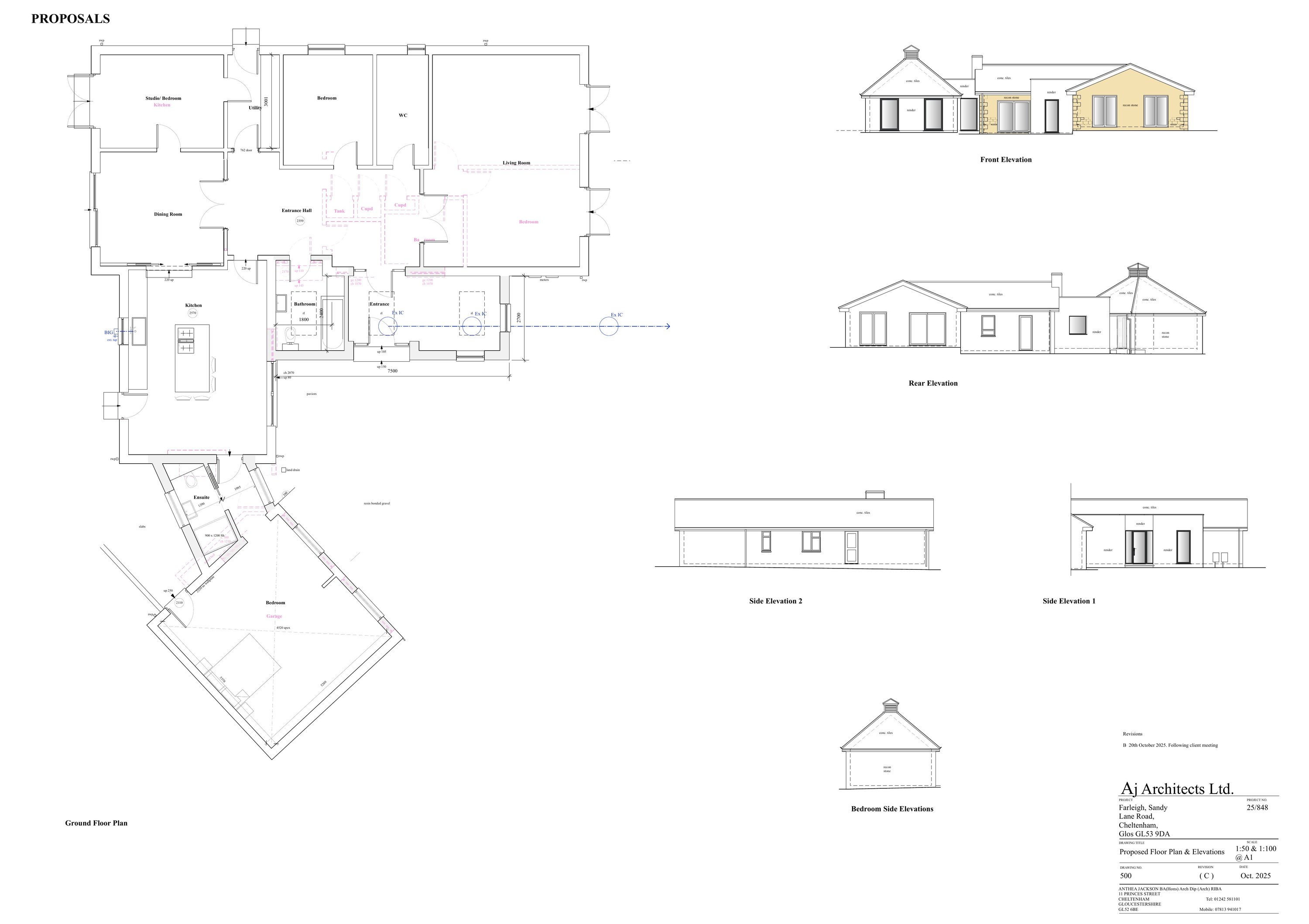
Single storey side extension, garage conversion with single storey side link to main dwelling and external alterations.

Documents

Application form
Application Form
Not archived · Council Link
Decision notice
Decision Notice
Not archived · Council Link
Existing plans
Drawing
Not archived · Council Link
Officer report
Report
Not archived · Council Link
Planning and sustainability statement
Report
Not archived · Council Link
Approved Drawing
Archived · Council Link
Approved Drawing
Archived · Council Link

Take Action

Make your voice heard. Authorities need to hear from people who support new homes.

✉️ Write Email in Support View on Council Portal