← Back to Cheltenham Borough Council

Status

Permit Change of use
Received
05 Nov 2025
New dwellings
1

Full Proposal

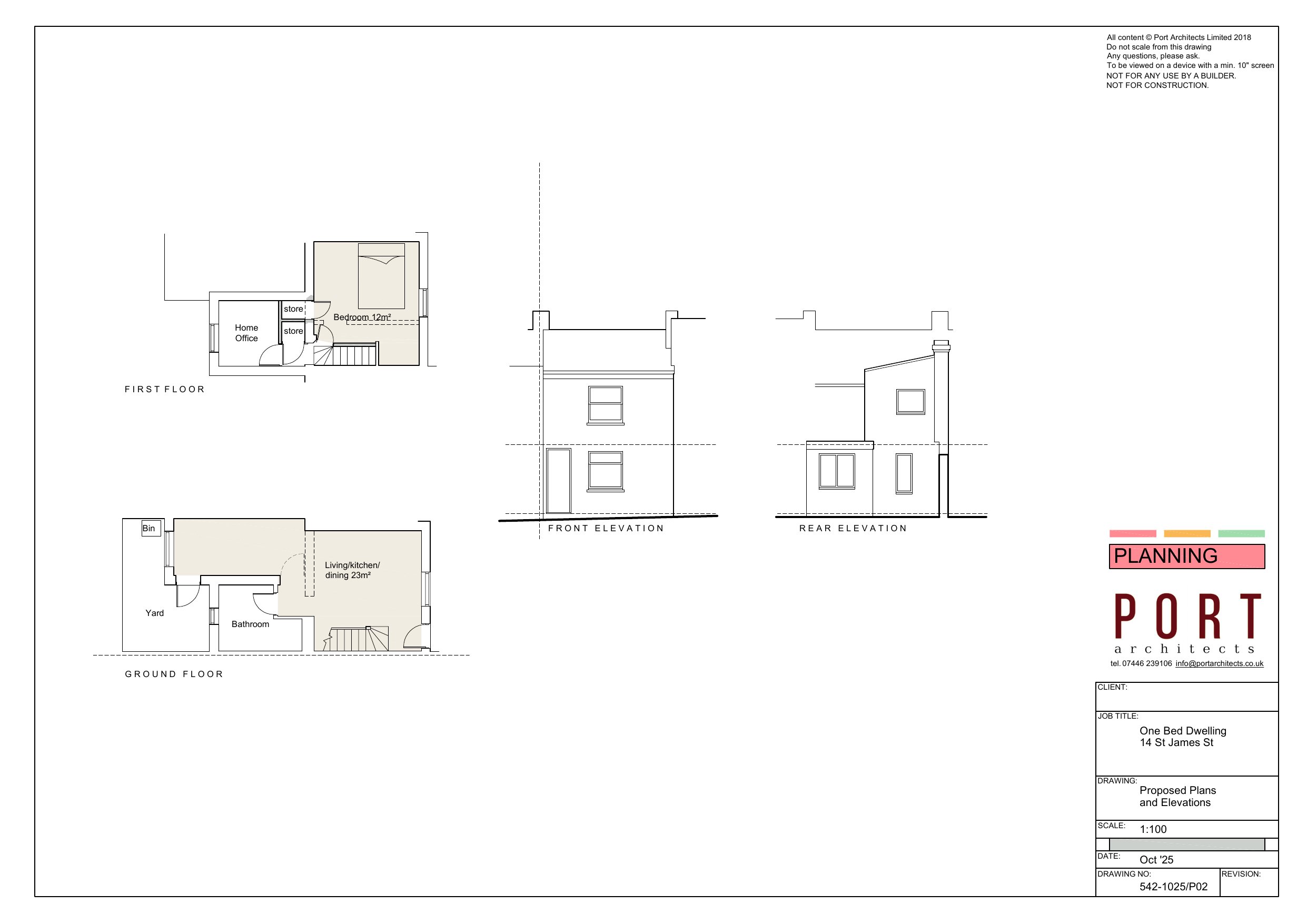
Change of use from commercial (Class E) to a one bedroom dwelling (Class C3) (Retrospective)

Documents

Application form
Application Form
Not archived · Council Link
Community infrastructure levy (cil) - form 1: cil additional informat
BackGround Papers
Not archived · Council Link
Decision notice
Decision Notice
Not archived · Council Link
Design and access statement
BackGround Papers
Not archived · Council Link
Existing plans and elevations
Drawing
Not archived · Council Link
Existing plans and elevations
Superseded Documents
Not archived · Council Link
Extension of time agreement
Correspondence
Not archived · Council Link
Gcc highways response
Consultee Comment
Not archived · Council Link
Officer report
Report
Not archived · Council Link
Superseded Documents
Archived · Council Link
Approved Drawing
Archived · Council Link
Site & location plan
Approved Drawing
Not archived · Council Link
Site & location plan
Superseded Documents
Not archived · Council Link
Unilateral undertaking
BackGround Papers
Not archived · Council Link

Take Action

Make your voice heard. Authorities need to hear from people who support new homes.

✉️ Write Email in Support View on Council Portal