← Back to Cheltenham Borough Council
25/02049/FUL
Cheltenham Borough Council · IDOX
Status
Pending Consideration
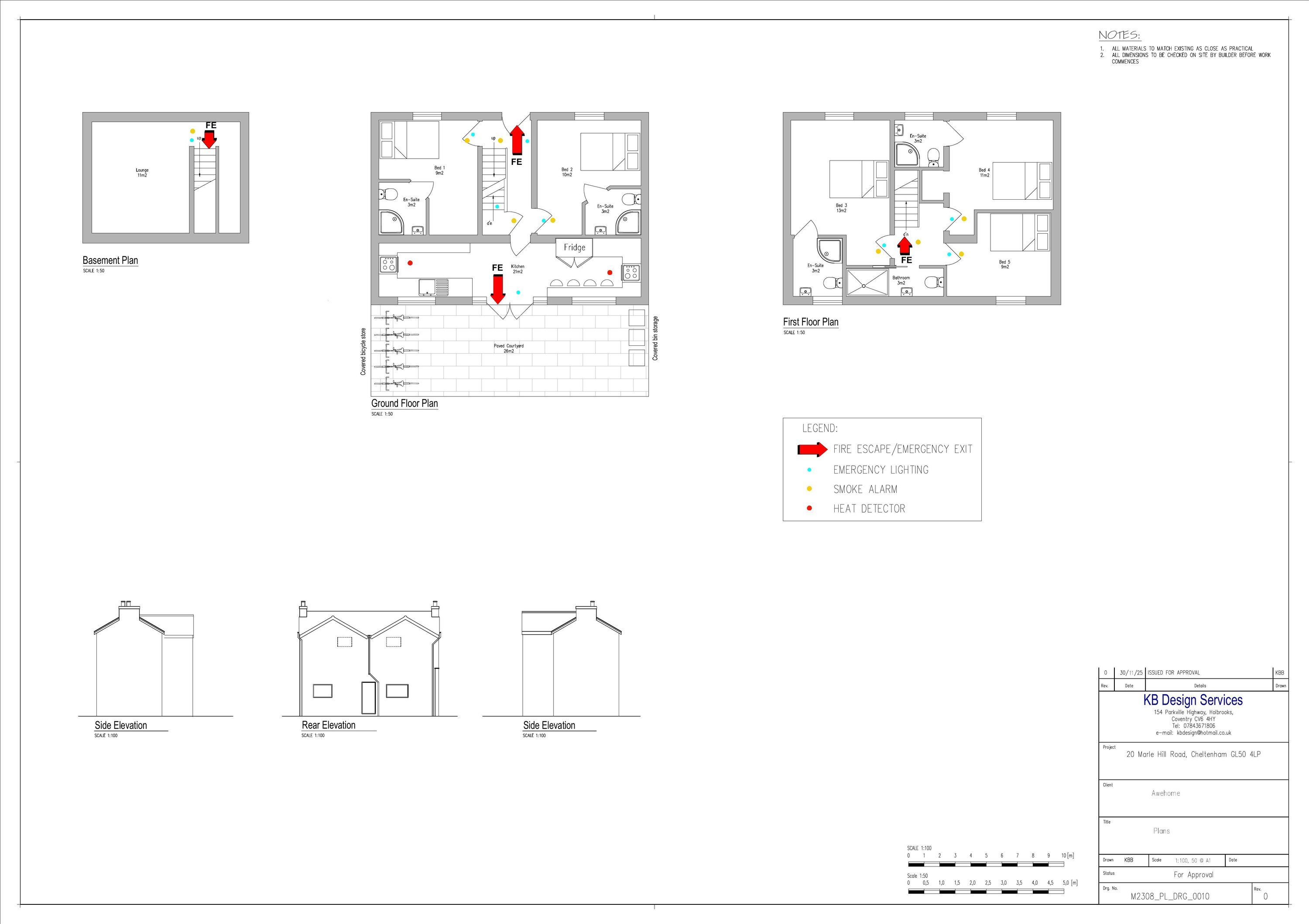
Change of use
Received
22 Dec 2025
New dwellings
0
Full Proposal
Change of use class from C3 to C4 five bedroom house of multiple occupation.
Documents
Take Action
Make your voice heard. Authorities need to hear from people who support new homes.