← Back to Cheltenham Borough Council

Status

Pending Consideration New housing
Received
Last month
New dwellings
1

Full Proposal

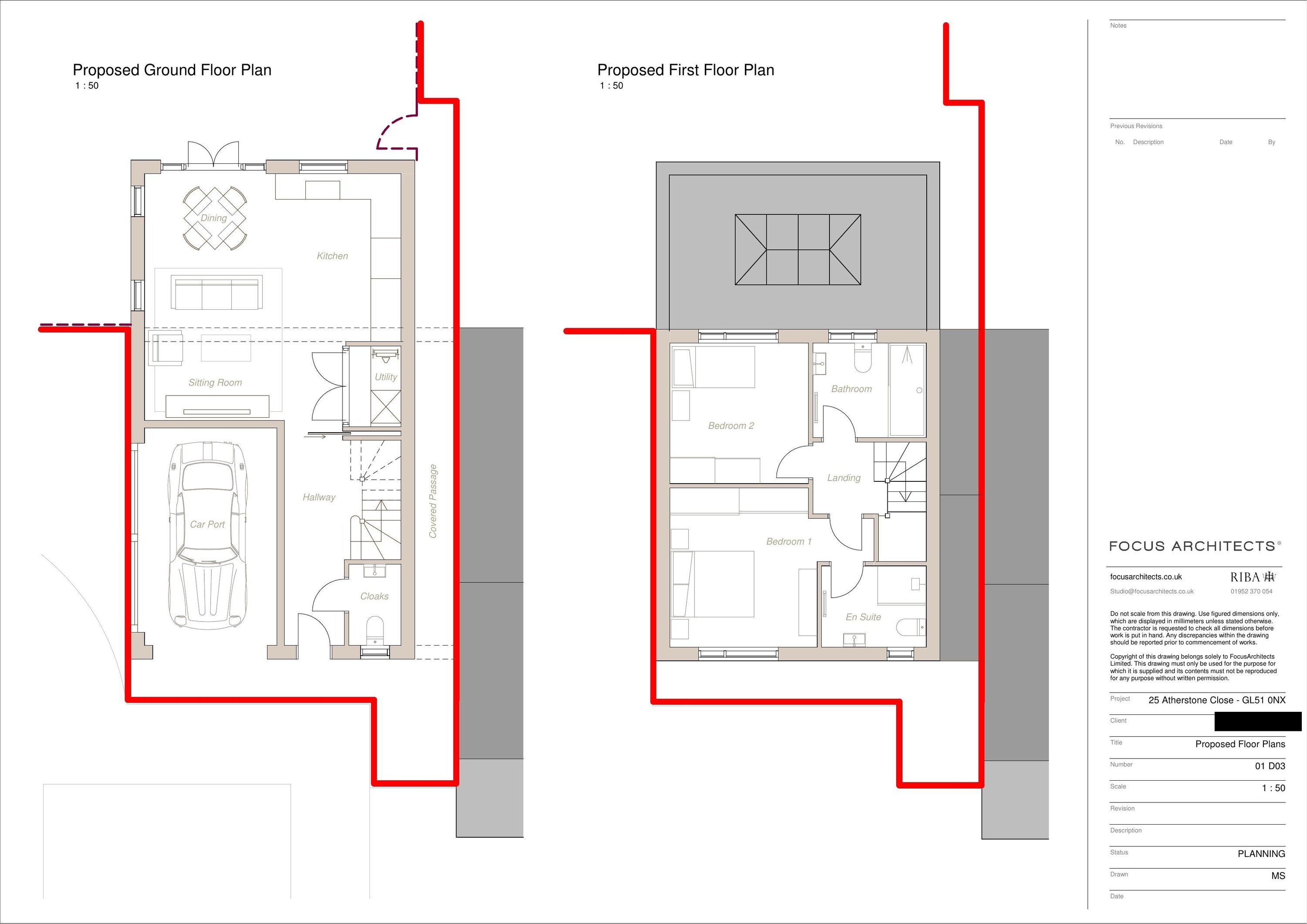
Erection of 2 bedroom semi-detached dwelling on land adjacent 25 Atherstone Close

Documents

Application form
Application Form
Not archived · Council Link
Biodiversity net gain assessment
Report
Not archived · Council Link
Drainage strategy
Report
Not archived · Council Link
Preliminary ecological appraisal
Report
Not archived · Council Link
Proposed block plan
Drawing
Not archived · Council Link
Proposed elevations
Drawing
Not archived · Council Link
Drawing
Archived · Council Link
Proposed iso
Drawing
Not archived · Council Link
OS Extract
Archived · Council Link
Statutory biodiversity metric
BackGround Papers
Not archived · Council Link
Sustainable construction checklist
BackGround Papers
Not archived · Council Link

Take Action

Make your voice heard. Authorities need to hear from people who support new homes.

✉️ Write Email in Support View on Council Portal