← Back to Cheshire West and Chester Council

Status

Awaiting decision House extension
Received
28 Jul 2025
New dwellings
0

Full Proposal

Two storey side extension and alterations to existing dwelling including render and roof lights

Documents

Application Form
Application Form
Not archived · Council Link
DEMOLITION PLAN
Drawing
Not archived · Council Link
EXISTING ELEVATIONS
Drawing
Not archived · Council Link
EXISTING FLOORPLANS
Drawing
Not archived · Council Link
Document
Archived · Council Link
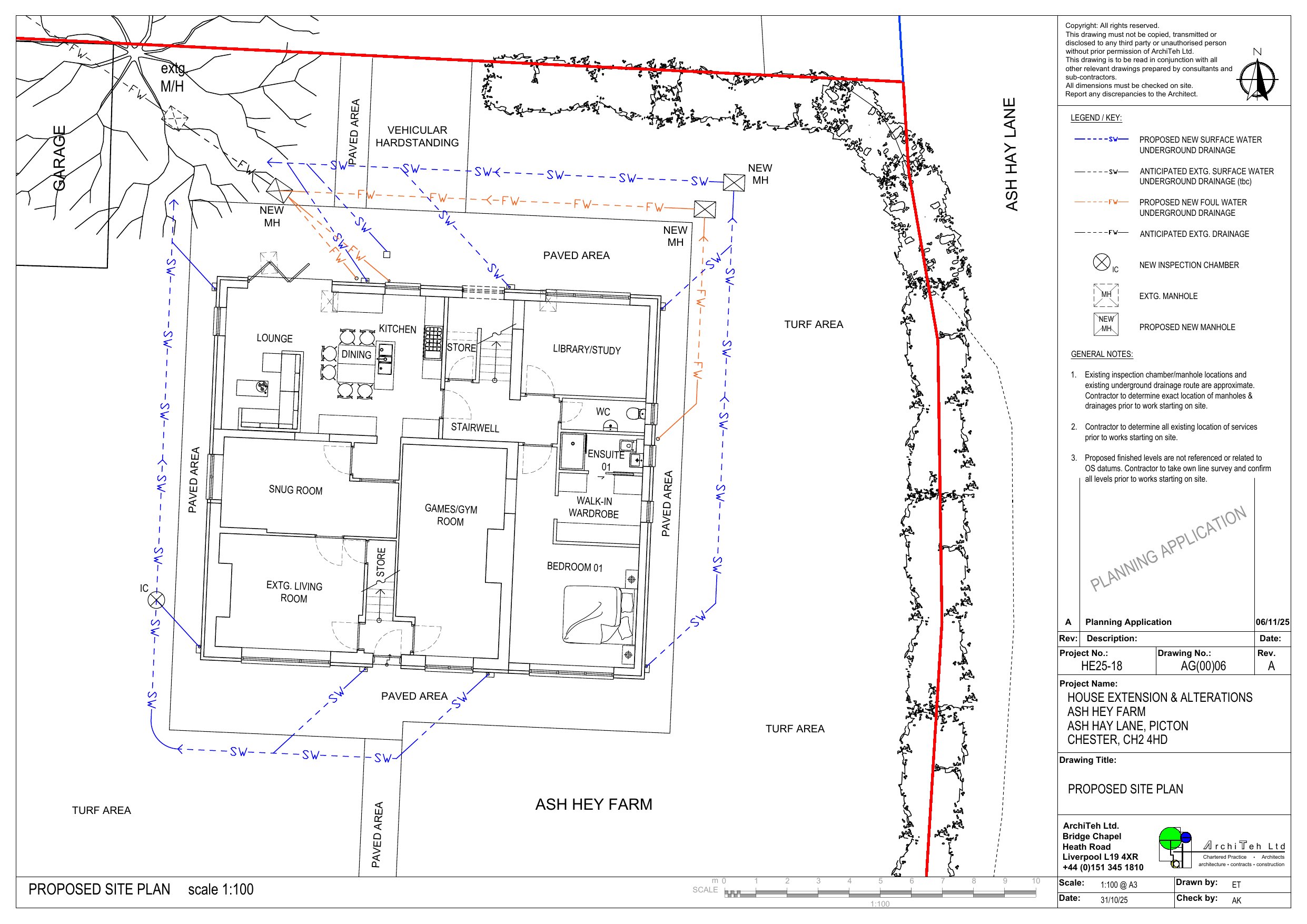
LOCATION PLAN
Document
Not archived · Council Link
Photo
Photo
Not archived · Council Link
Photo
Photo
Not archived · Council Link
PROPOSED ELEVATIONS
Revised Drawing
Not archived · Council Link
PROPOSED ELEVATIONS
Revised Drawing
Not archived · Council Link
PROPOSED ELEVATIONS
Drawing
Not archived · Council Link
Revised Drawing
Archived · Council Link
Revised Drawing
Archived · Council Link
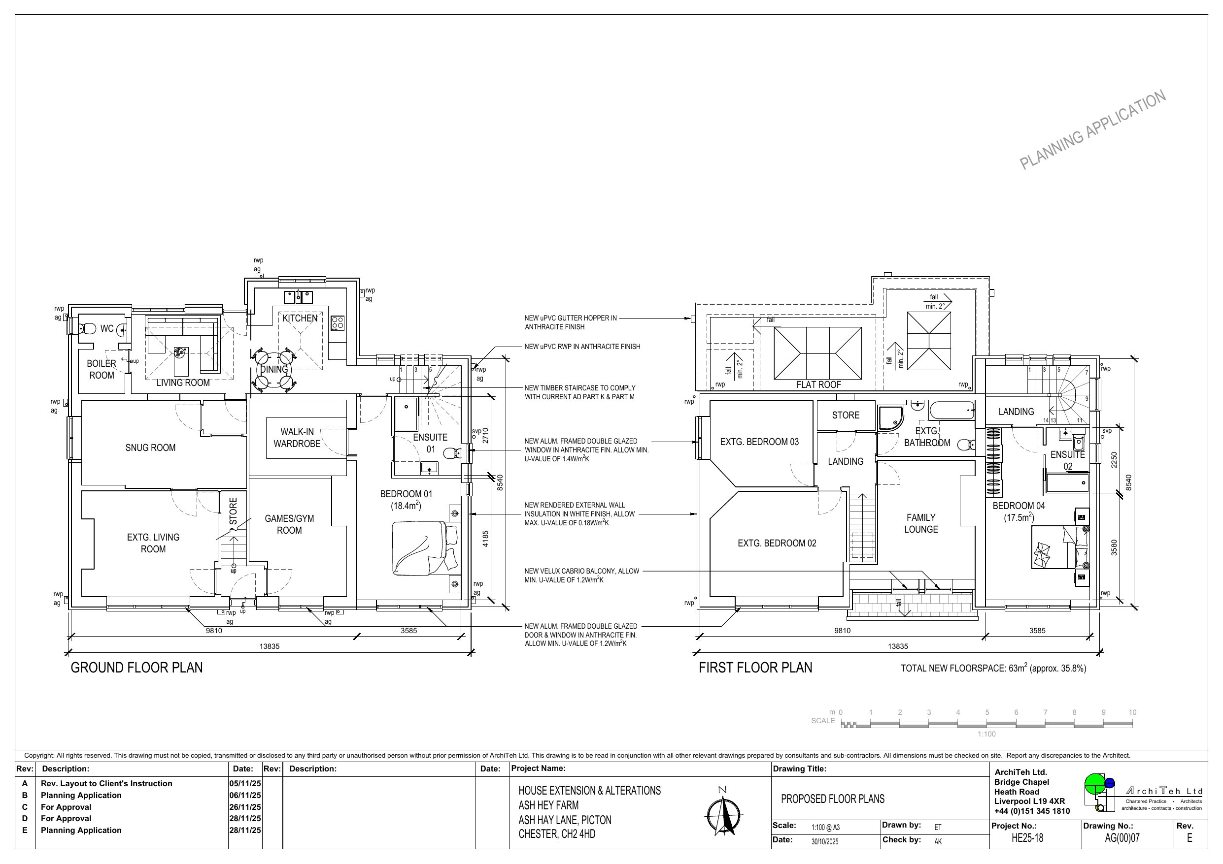
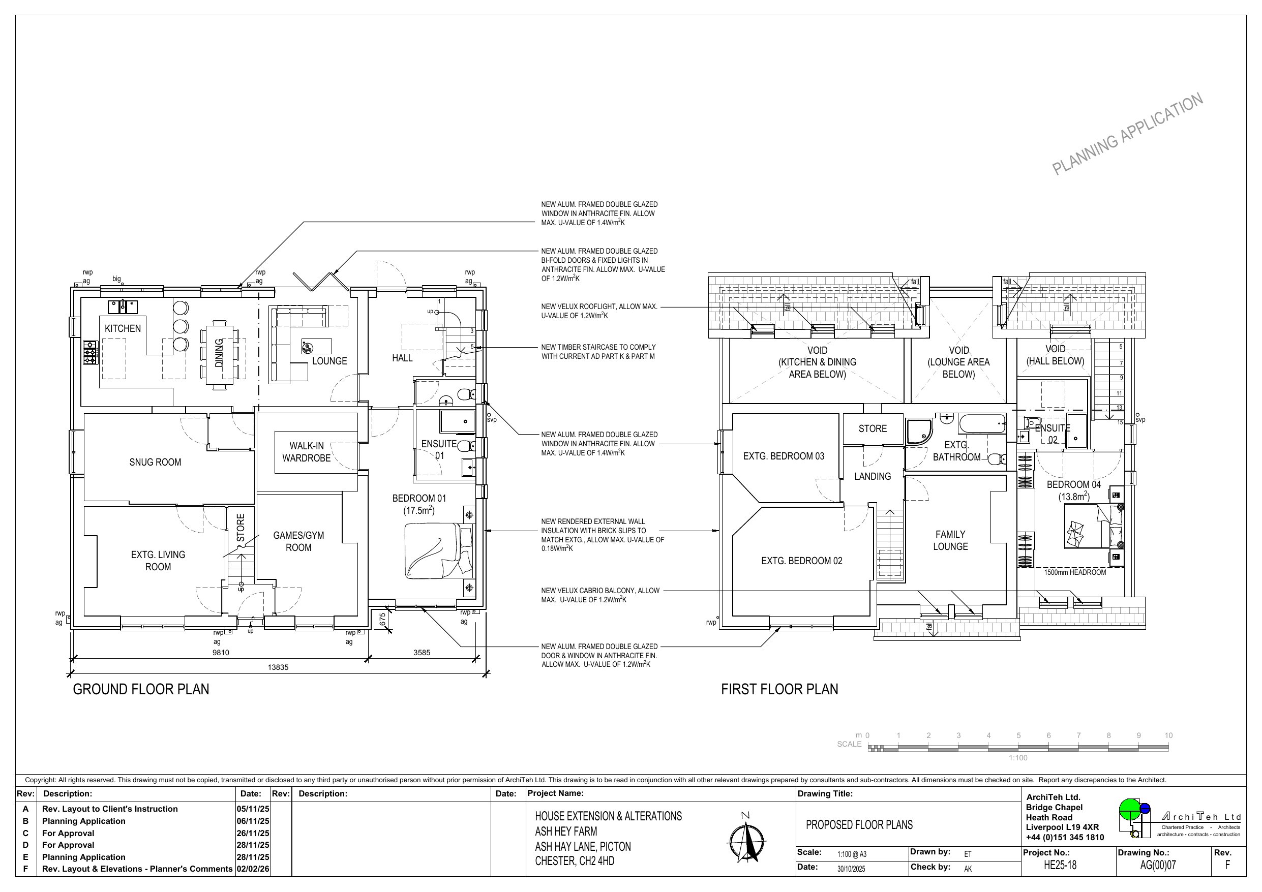
PROPOSED FLOORPLAN - FIRST
Drawing
Not archived · Council Link
PROPOSED ROOF PLAN
Revised Drawing
Not archived · Council Link
PROPOSED ROOF PLAN
Drawing
Not archived · Council Link
PROPOSED ROOF PLANS
Revised Drawing
Not archived · Council Link
Revised Drawing
Archived · Council Link
Drawing
Archived · Council Link
Revised Drawing
Archived · Council Link
Site Notice
Site Notice
Not archived · Council Link
Site Notice
Site Notice
Not archived · Council Link
STRUCTURAL REPORT
Document
Not archived · Council Link

Take Action

Make your voice heard. Authorities need to hear from people who support new homes.

✉️ Write Email in Support View on Council Portal