← Back to Cheshire West and Chester Council

Status

Awaiting decision New housing
Received
05 Sep 2025
New dwellings
1

Full Proposal

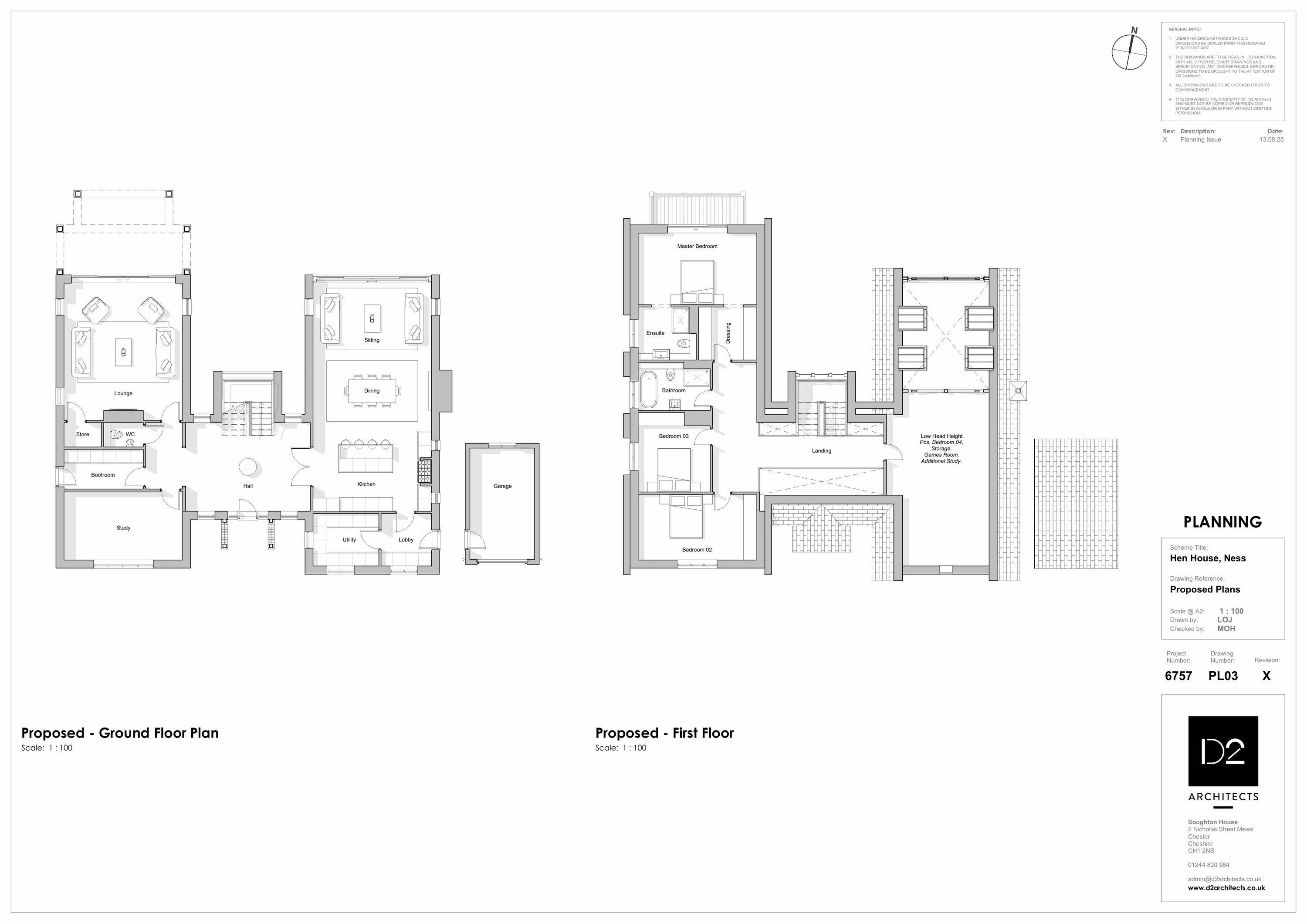
Erection of a detached dwelling off Haddon Lane

Documents

APPLICATION FORM - WITHOUT PERSONAL DATA
Application Form
Not archived · Council Link
DRAWING ISSUE SHEET
Drawing
Not archived · Council Link
Drawing
Archived · Council Link
NATURAL ENGLAND ANNEX A
Consultee Comment
Not archived · Council Link
NATURAL ENGLAND RESPONSE
Consultee Comment
Not archived · Council Link
PLANNING STATEMENT
Document
Not archived · Council Link
PROPOSED ELEVATIONS
Drawing
Not archived · Council Link
Drawing
Archived · Council Link
PROPOSED LOCATION PLAN
Drawing
Not archived · Council Link
Drawing
Archived · Council Link
THE LOCATION PLAN
Drawing
Not archived · Council Link
TREE SURVEY
Document
Not archived · Council Link
View associated documents
External Link
Not archived · Council Link

Take Action

Make your voice heard. Authorities need to hear from people who support new homes.

✉️ Write Email in Support View on Council Portal