← Back to Cheshire West and Chester Council

Status

Awaiting decision Change of use
Received
28 Oct 2025
New dwellings
0

Summary

Touring caravan site converted to static caravan site.

Full Proposal

Conversion of a touring caravan site into a static caravan site, along with the demolition of a shower block, erection of a new laundry building, alterations to the office building and other associated works

Documents

1 GRANGE COTTAGES MIDDLEWICH ROAD
Public Comment
Not archived · Council Link
10 BELLARD DRIVE
Public Comment
Not archived · Council Link
15 PARK CRESCENT
Public Comment
Not archived · Council Link
3 BIRCH DRIVE
Public Comment
Not archived · Council Link
45 WATERSEDGE
Public Comment
Not archived · Council Link
6 CURZON COURT
Public Comment
Not archived · Council Link
74 LIGHTFOOT STREET
Public Comment
Not archived · Council Link
74 LIGHTFOOT STREET
Public Comment
Not archived · Council Link
ABBOTSFIELD ABBEY LANE
Public Comment
Not archived · Council Link
ACCESS ROAD SOAKAWAY CATCHMENT PLAN
Drawing
Not archived · Council Link
ALVANLEY FARM
Public Comment
Not archived · Council Link
Application Form
Application Form
Not archived · Council Link
BAT REPORT
Document
Not archived · Council Link
BIODIVERSITY METRIC
Document
Not archived · Council Link
BLACKBANK WOOD FARM
Public Comment
Not archived · Council Link
BLACKBANK WOOD FARM
Public Comment
Not archived · Council Link
BLACKBANK WOOD FARM
Public Comment
Not archived · Council Link
BLACKBANK WOOD FARM MIDDLEWICH ROAD
Public Comment
Not archived · Council Link
BLACKBANK WOOD FARM MIDDLEWICH ROAD
Public Comment
Not archived · Council Link
BLANKBANK WOOD FARM
Public Comment
Not archived · Council Link
BLUEBELL COTTAGE OTTERSBANK FARM FISHPOOL ROAD
Public Comment
Not archived · Council Link
CONDITION ASSESSMENT - POST-DEVELOPMENT
Document
Not archived · Council Link
CONDITION ASSESSMENT - PRE-DEVELOPMENT
Document
Not archived · Council Link
DESIGN, ACCESS AND PLANNING STATEMENT
Document
Not archived · Council Link
DRAINAGE STRATEGY
Document
Not archived · Council Link
EXISTING PLAN AND ELEVATIONS
Drawing
Not archived · Council Link
Drawing
Archived · Council Link
HALF WAY TREE ABBEY LANE
Public Comment
Not archived · Council Link
INFILTRATION TESTING REPORT
Document
Not archived · Council Link
LLFA
Consultee Comment
Not archived · Council Link
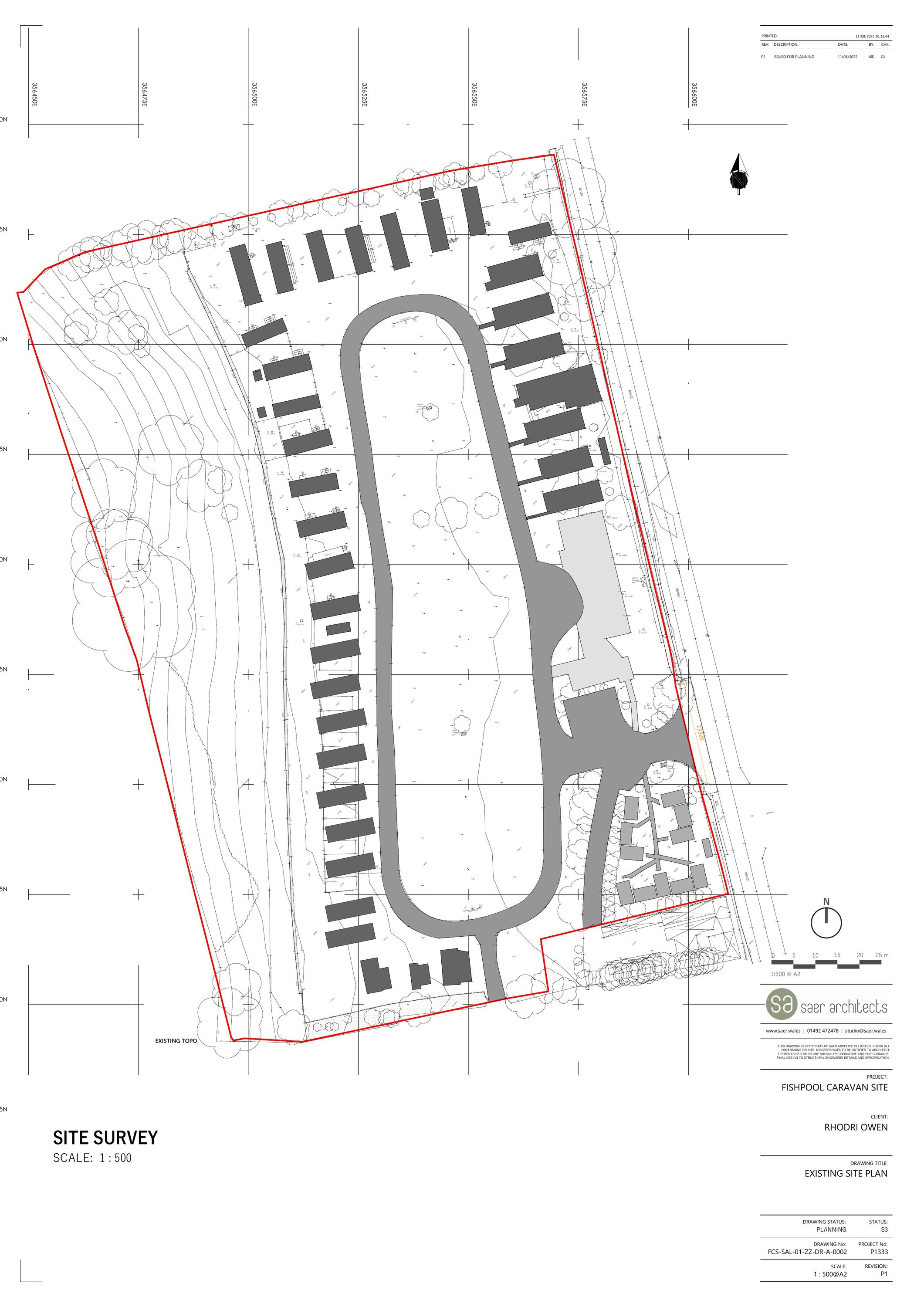
LOCATION PLAN
Drawing
Not archived · Council Link
OLD FISHPOOL FARM FISH POOL ROAD
Public Comment
Not archived · Council Link
OLD FISHPOOL FARM FISHPOOL ROAD
Public Comment
Not archived · Council Link
PRELIMINARY ECOLOGICAL APPRAISAL
Document
Not archived · Council Link
PROPOSED AREAS PLAN
Drawing
Not archived · Council Link
PROPOSED DRAINAGE LAYOUT
Drawing
Not archived · Council Link
PROPOSED LANDSCAPE PLAN
Drawing
Not archived · Council Link
PROPOSED PLAN AND ELEVATIONS - LAUNDRY
Drawing
Not archived · Council Link
PROPOSED PLAN AND ELEVATIONS - OFFICE
Drawing
Not archived · Council Link
Drawing
Archived · Council Link
PUBLIC COMMENT
Public Comment
Not archived · Council Link
PUBLIC COMMENT
Public Comment
Not archived · Council Link
PUBLIC COMMENT
Public Comment
Not archived · Council Link
PUBLIC COMMENT
Public Comment
Not archived · Council Link
PUBLIC COMMENT
Public Comment
Not archived · Council Link
PUBLIC COMMENT
Public Comment
Not archived · Council Link
PUBLIC COMMENT
Public Comment
Not archived · Council Link
PUBLIC COMMENT
Public Comment
Not archived · Council Link
ROSE COTTAGE SANDYMERE
Public Comment
Not archived · Council Link
SHOWER BLOCK TO BE DEMOLISHED
Photo
Not archived · Council Link
STAND HOUSE RACECOURSE LANE
Public Comment
Not archived · Council Link
TRAIL PIT LOCATION PLAN
Drawing
Not archived · Council Link
UNITED UTILITIES
Consultee Comment
Not archived · Council Link
WOOD VIEW BLAKEMERE LANE
Public Comment
Not archived · Council Link
WOOD VIEW COTTAGE
Public Comment
Not archived · Council Link

Take Action

Make your voice heard. Authorities need to hear from people who support new homes.

✉️ Write Email in Support View on Council Portal