← Back to Cheshire West and Chester Council

Status

Awaiting decision New housing
Received
19 Dec 2025
New dwellings
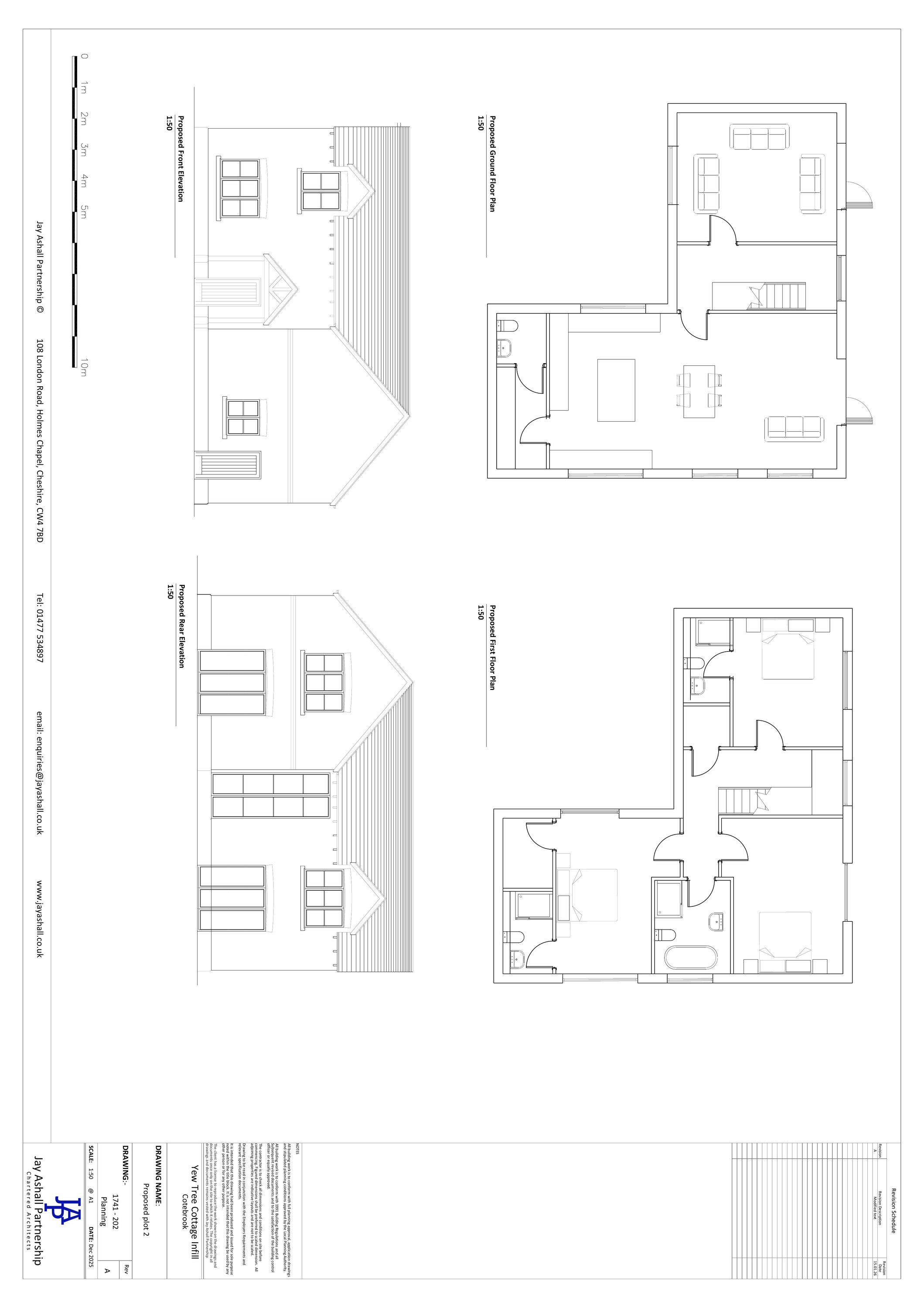
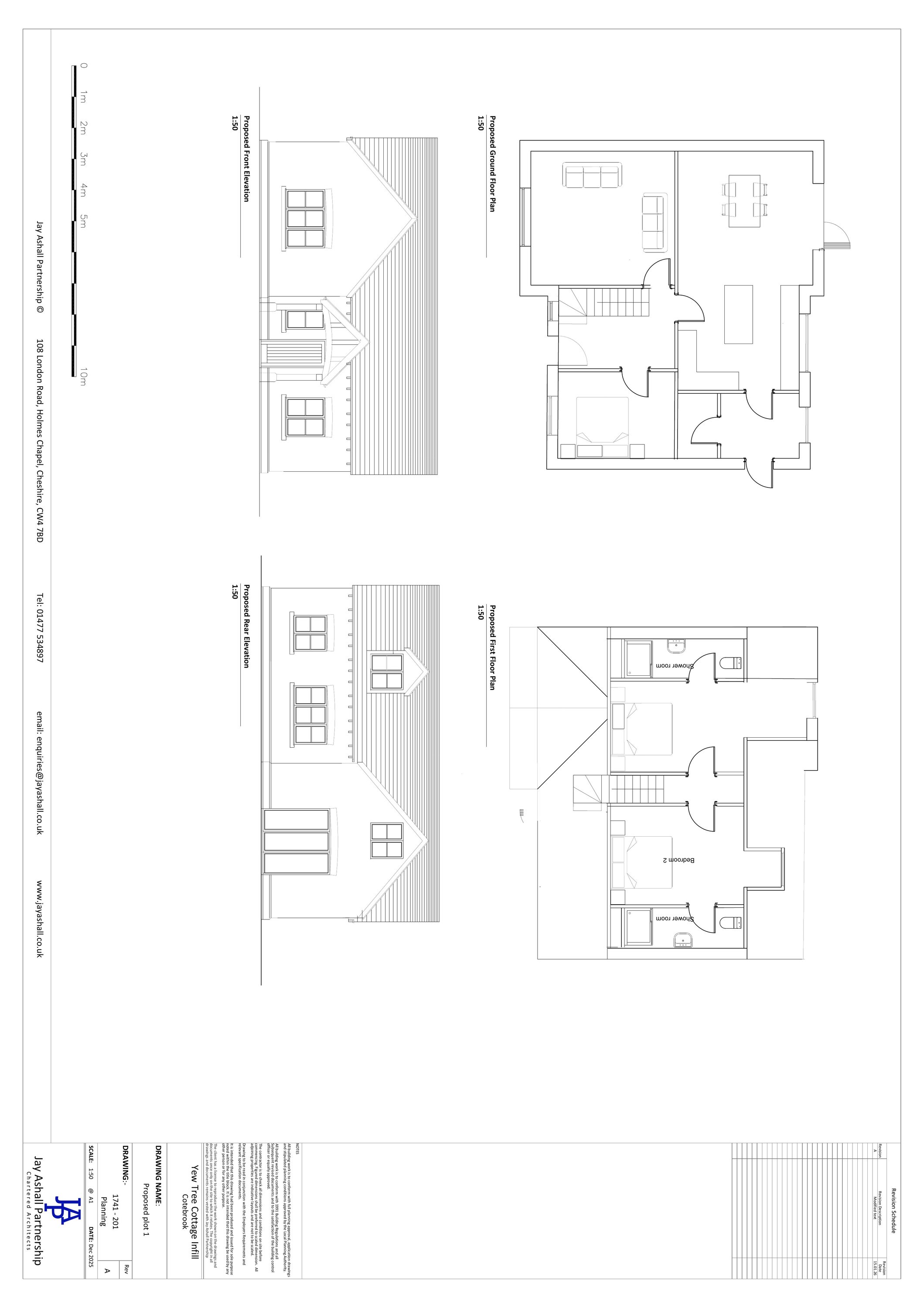
2

Full Proposal

Construction of 2no dwellings

Documents

APPLICATION FORM - WITHOUT PERSONAL DATA
Application Form
Not archived · Council Link
DESIGN AND ACCESS STATEMENT
Document
Not archived · Council Link
MARK DOODES PLANNING ON BEHALF OF RESIDENTS
Public Comment
Not archived · Council Link
Drawing
Archived · Council Link
PROPOSED STREET SCENE
Drawing
Not archived · Council Link
THE LOCATION PLAN
Drawing
Not archived · Council Link

Take Action

Make your voice heard. Authorities need to hear from people who support new homes.

✉️ Write Email in Support View on Council Portal